EasyManua.ls Logo

Volvo EC360B - Page 172

Volvo EC360B
339 pages
Print Icon
To Next Page IconTo Next Page
To Next Page IconTo Next Page
To Previous Page IconTo Previous Page
To Previous Page IconTo Previous Page
Loading...
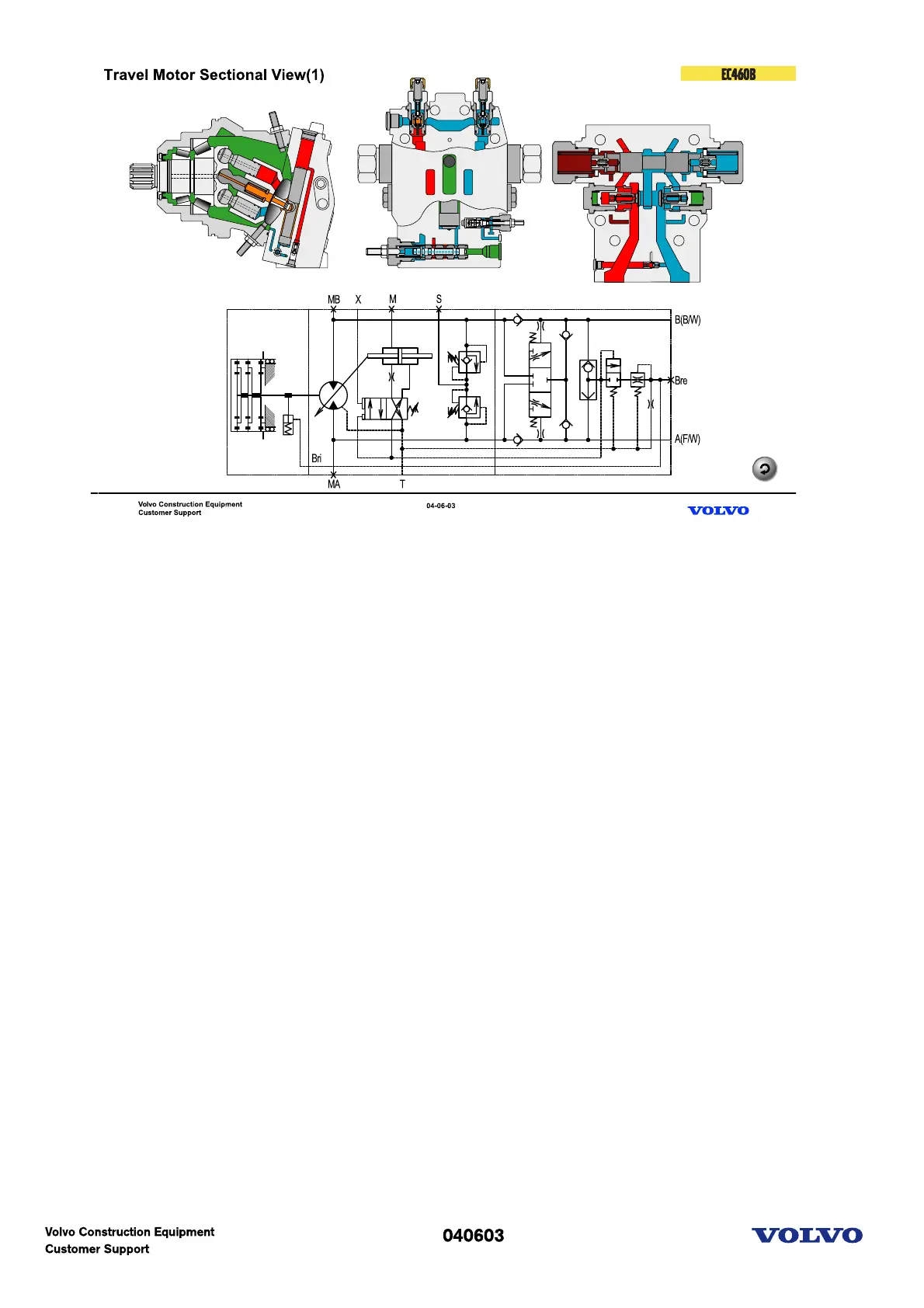
Sectional view(1)
When you click the component on the circuit diagram, you can see the location of correspondent
component.
Picture text:

Related product manuals