EasyManua.ls Logo

Volvo EC360B - Page 230

Volvo EC360B
339 pages
Print Icon
To Next Page IconTo Next Page
To Next Page IconTo Next Page
To Previous Page IconTo Previous Page
To Previous Page IconTo Previous Page
Loading...
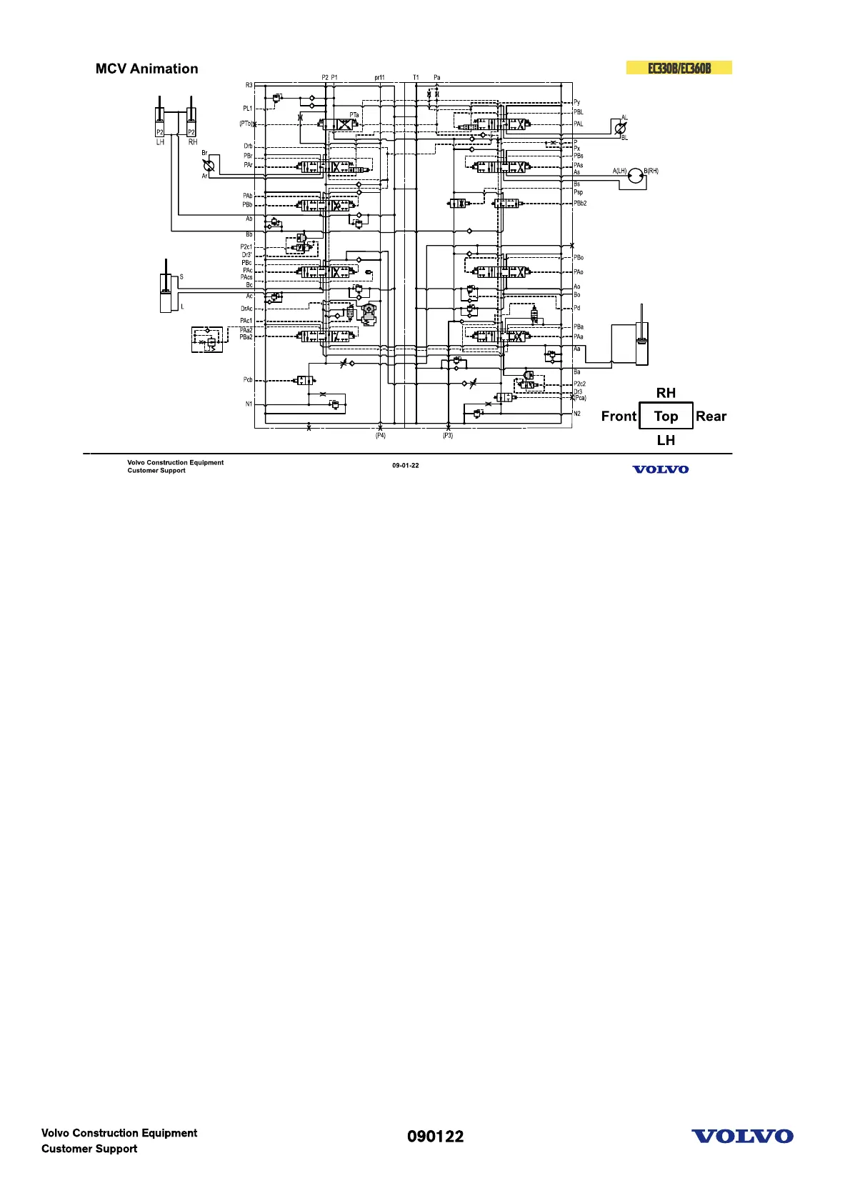
Main Control Valve
Push the component in the circuit diagram with mouse then you can see the location of that components
or disassembled components and section view.
Picture text:

Related product manuals