EasyManua.ls Logo

Volvo EC360B - Page 246

Volvo EC360B
339 pages
Print Icon
To Next Page IconTo Next Page
To Next Page IconTo Next Page
To Previous Page IconTo Previous Page
To Previous Page IconTo Previous Page
Loading...
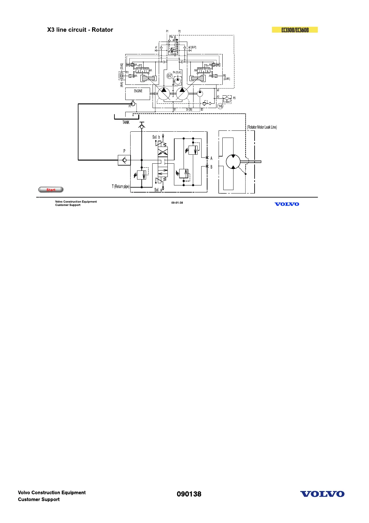
Rotator circuit
This is X3 option.
X3 option is composed of gear pump at PTO, rotator valve and additional case drain line for motor. This is
operated using LH joystick button.
Picture text:

Related product manuals