EasyManua.ls Logo

Volvo EC460B - Engine Start and Stop Circuit

Volvo EC460B
339 pages
Print Icon
To Next Page IconTo Next Page
To Next Page IconTo Next Page
To Previous Page IconTo Previous Page
To Previous Page IconTo Previous Page
Loading...
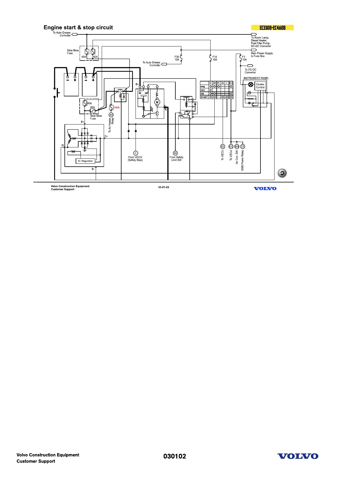
Engine start and stop circuit
If battery disconnection switch is off position, we cannot use the whole of electric system.
When master switch (Battery disconnection switch) is ON, we can use Room lamp, diesel heater, fuel filler
pump, DC-DC converter, Auto greasing system without the key.
When the start switch is ON position,
BR signal turn on the battery relay. From now, we can supply the power to the whole of electric system.
ACC signal send ON signal to VECU, air-conditioner and energize EMS power relay. And Power supplied to
instrument panel pass through the charge- warning lamp and goes to alternator terminal D and
magnetizes the field coil.
When the start switch is START position,
R2 signal goes to V-ECU to inform the key position and C signal activate safety start relay so power from
battery can drive the starter. From this, alternator can produce electric power. W signal from alternator
indicates engine status to the instrument panel IC.
Start inter-Lock function
If safety start relay has some level of signal from alternator or safety lever, it cannot have ground
connection to activate this relay.
There are two diodes that are related with battery relay.
One is used for time delay function of VECU during the stop condition.
The other is used to protect electric system from electrical surge.
Picture text:

Related product manuals