EasyManua.ls Logo

Volvo EC460B - Page 87

Volvo EC460B
339 pages
Print Icon
To Next Page IconTo Next Page
To Next Page IconTo Next Page
To Previous Page IconTo Previous Page
To Previous Page IconTo Previous Page
Loading...
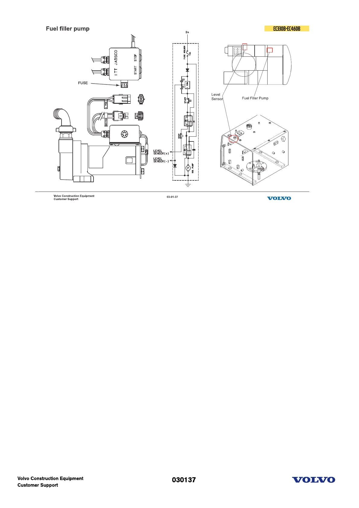
Fuel filler pump
This shows the 50LPM pump with level sensor.
This has automatic stop function when fuel level reach to maximum.
Picture text:

Related product manuals