EasyManua.ls Logo

Wacker Neuson G 2.5A

Wacker Neuson G 2.5A
96 pages
To Next Page IconTo Next Page
To Next Page IconTo Next Page
To Previous Page IconTo Previous Page
To Previous Page IconTo Previous Page
Loading...
G 3.7A;G/GS 5.6A;GS 8.5V;GS 9.7V Portable Generator Repair
wc_tx000208gb.fm 80
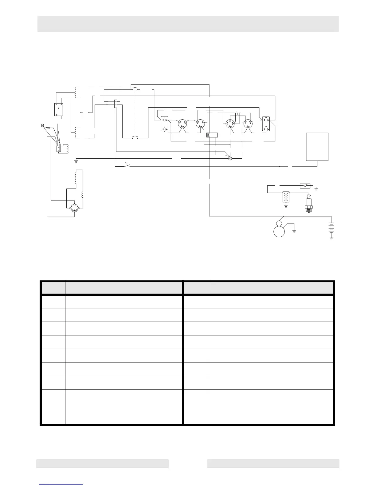
6.34 Generator Wiring Schematic (GS 8.5V and GS 9.7V Models)
GS 8.5V and GS 9.7V, Rev. 103 and above
Ref. Description Ref. Description
1. Automatic voltage regulator 10. Engine module
2. Rotor winding 11. Oil level switch
3. Main stator winding 12. Coil
4. 120V, 20A GFI receptacle 13. Spark plug
5. 120V, 30A twist-lock receptacle 14. Battery
6. 240V, 20A receptacle 15. Starter
7. 120V/240V, 30A receptacle 16. Choke
8. 120V, 20A twist-lock receptacle 17. Auxiliary stator winding
9. Hour meter 18. Resistor 390 Ohms 50W
(GS 9.7 only)
w c _ g r 0 0 0 5 6 7
L I N E
L I N E
O NO F F
1
2
L 2
F 2
S T A B .
F 1
L 1
V O L T A G E
3
Z 1
Z 3
Z 2
R R
W
W
F 1
F 2
B
R
L L
L L
Z 1
Z 3Z 2
R / W
R / G
G / Y
W / G R / B
G / Y
R / Y
W / Y
B / R
G / Y
G / Y
R / G R
W / B
W / B
G / Y
G / Y
W / R
G / Y
W / R
B / W
B / Y
B
L
B G
1
2
3
4
3
5
6
9
7 8
4
1 1
1 0
1 2 1 3
1 4
1 5
1 6
1 7
B
B
1 8
G / Y
W / O

Table of Contents

Other manuals for Wacker Neuson G 2.5A

Related product manuals