EasyManua.ls Logo

Wacker Neuson GS 9.7V - Generator Wiring Schematic (G 3.7 A, G 5.6 A, and GS 5.6 A Models)

Wacker Neuson GS 9.7V
96 pages
Print Icon
To Next Page IconTo Next Page
To Next Page IconTo Next Page
To Previous Page IconTo Previous Page
To Previous Page IconTo Previous Page
Loading...
Portable Generator Repair G 3.7A;G/GS 5.6A;GS 8.5V;GS 9.7V
wc_tx000208gb.fm 77
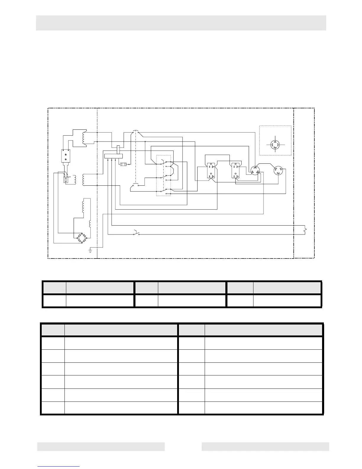
6.32 Generator Wiring Schematic (G 3.7A, G 5.6A, and GS 5.6A
Models)
(G 3.7A S/N 718901707 and higher)
(G 5.6A S/N 719101533 and higher)
(GS 5.6A S/N 719101173 and higher)
Ref. Description Ref. Description Ref. Description
A Generator B Control Box C Engine
Ref. Description Ref. Description
1. Main Stator Winding 7. Auto Idle
2. Automatic Voltage Regulator 8. 1 Amp Fuse
3. Rotor Winding 9. Auto Idle Switch
4. Main Stator Winding 10. 120/240V 30A Kit*
5. Auxiliary Stator Winding 11. Electromagnet
6. Choke
*W/B (Extra wire included in kit. Terminate at 120V 30A receptacle.)
w c _ g r 0 0 0 5 5 6
G / W
R / W
B / W
B / W
G / W
2
G / R
G / Y
R / W
L / Y
W / O r
1
L / G
B / R
G / L
W / R
R / Y
1
3
2
1 2 0 / 2 4 0 V
W / G
R / L
5
4
7
8
9
R / G
B / G
G / Y
R / B
B / O r
6
B / L
R
W
R
W
1
2
4
3
2
L 2
B
F 2
S T A B .
R
F 1
V O L T A G E
L 1
L
L
3
4
F 1
Z 1
B r
Z 1
Z 3
Z 3
Z 2
Z 2
L / B
l
B / Y
1 2 0 V A C
2 0 A
1 2 0 V A C
2 0 A
1 2 0 V A C
3 0 A
2 4 0 V A C
2 0 A
F 2
W / Y
W / L
B r
A
1
2
3 4
5
6
7
8
9
O
B
1 0
C
1 1

Table of Contents

Related product manuals