EasyManua.ls Logo

Webasto Thermo 90

Webasto Thermo 90
28 pages
To Next Page IconTo Next Page
To Next Page IconTo Next Page
To Previous Page IconTo Previous Page
To Previous Page IconTo Previous Page
Loading...
2
8
11
101
12
7
4
H3
P2
H1
H6
3030 8585
8686 8787
87a87a
K5K3
br
br
br
rt
rt
br gn/ws
rt/bl
ge
sw
rt
ws/bl
vi
bl
vi/bl
gr
gn
or
or
58
15
12
2
4
58
15
F2 F3
X6
F1
bl
br
30
30
31
31
sw
rt
sw
sw
rt
ws
A2
11 6
12
2
2
3
1
0
710
32
1
1
4
58
11
9
9
4
3
71568
10
212
M2
M3
M1
br
br
bl
239
8657
112
11 10 4
sw
br
X1
X12 (ST 2)
X3
X5
X13
(ST 3)
X11
(ST 1)
Y1
vi
vi
gr
gr
gn
gn
B3
B4
B1 B2
A1
E
M
M
M
X5
X6
ϑϑ
X13 (ST 3)
1
12
2
11
3
10
4
9
5
8
6
7
X1
1
1
2
2
X11 (ST 1) X12 (ST 2)
ge
B1
B3
B2
E
X1
M1
M2
21
X3
S8
6
9
3
12
1
11
3
9
5
7
1
11
3
9
5
7
1
2
S9
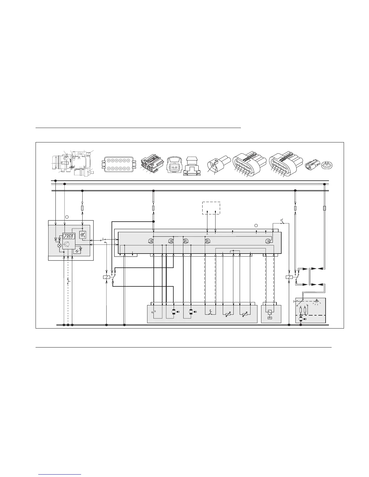
Fig. 19: System Diagram Thermo 90 S, 12 and 24V, with Digital Timer (standard) and circulating pump, for legende refer to page 10 and 11
Thermo 90 / Thermo 90 S
15

Other manuals for Webasto Thermo 90

Related product manuals