EasyManua.ls Logo

Western Airconditioning Epsilon Echos+ 9 - Page 34

Western Airconditioning Epsilon Echos+ 9
40 pages
Print Icon
To Next Page IconTo Next Page
To Next Page IconTo Next Page
To Previous Page IconTo Previous Page
To Previous Page IconTo Previous Page
Loading...
Epsilon Echos +
34
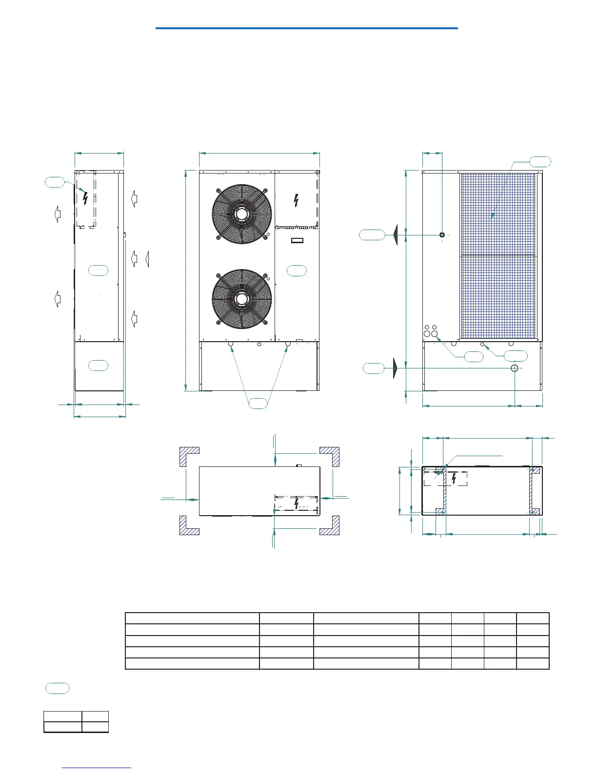
Dimensional diagram Epsilon Echos+
9-15 1PS
C413209 - A
"A"
CLEARENCES
G1
G2
G4
G3
FOOTPRINT
372
376
1699
926
1026 499,5
151,5
O
9HOLES
155 690 75
2033020
370
80
640
80
20100
300
300
600
900
VIEW FROM "A"
Pm
Es
174
Ep
Rp
Lh
Rp
Uin
Uout
Cdh *
NOTE
ONLY ON HP VERSION
(ø18 mm)
Cdh *
Uin Uout
G 1" F G 1" M
Rp
708,5
213,5
10 16
398
Denomination - Dimensional Drawing Drawing Rev.
DraftsmanDate
Scale
Checked by
di
Sheet
N.
of
Replace draw. Replaced by draw.
Weight [kg]
DIM.DRAWING EPSILON ECHOS PLUS 9-15 1PS
C413209/
A
BARBETTA
1
/
/
1
TURRI16/11/121:20
/
Code
MTE 56 rev. 04 date: 07/04/11
Reserved property, reproduction prohibited accordin to existent
laws.Copyright.
Rev.
MODEL WEIGHT(Kg) OPERATING WEIGHT(Kg) G1(Kg) G2(Kg) G3(Kg) G4(Kg)
EPSILON ECHOS PLUS 9 CH_1PS 194 267 85 40 45 97
EPSILON ECHOS PLUS 15 CH_1PS 200 273 88 41 45 99
EPSILON ECHOS PLUS 9 HP_1PS 208 281 90 43 47 101
EPSILON ECHOS PLUS 15 HP_1PS 210 283 91 43 47 102