EasyManua.ls Logo

Whirlpool 72972 - Page 5

Whirlpool 72972
6 pages
Print Icon
To Next Page IconTo Next Page
To Next Page IconTo Next Page
To Previous Page IconTo Previous Page
To Previous Page IconTo Previous Page
Loading...
TECH SHEET - DO NOT DISCARD PAGE 5
FOR SERVICE TECHNICIAN'S USE ONLY PART NO. 3979119
120 VOLTS
FS2
FS1
VALVE NO.1
IGIGR
IGNITOR
50-500
HOLD
ASSIST
MAIN
22,000 BTU/HR
VALVE NO.2
4
13
2
5
FLAME
SENSOR
BLACK
L1 LINE -
WHITE - NEUTRAL N
DOOR
SWITCH
RED/WHITE
D2
DRIVE MOTOR
4M
MAIN
2.4-3.6
START
2.4-3.8
5M
6M
THERMISTOR
BLACK
DL
RED
EVENHEAT CONTROL
THERMAL FUSE
196 °F
HIGH LIMIT
THERMOSTAT
205 °F
TIMER
PT-1
DOOR
DRUM LAMP
MTR
P1-1
TIMER
T2
P1-2
MOIST.
T3
P1-3
TEMP.
T4
P1-4
NEUTRAL
P2-5
P2-6
SENSOR
P2-4
P2-3
P2-1
WRINKLE
GUARD
FABRIC
P3-6
P3-5
SIGNAL
P3-4
P3-3
NC
3M
1
4
3
2
1
4
5
P3-8
2
1
4
P3-7
D
D1
BLUE
BK
BLACK
BU
V
R
W
BU
BROWN
Y/R
WHITE
RED
W/R
BELT
SWITCH
G/Y
G/Y
WHITE
GRAY
WHITE
TA N
VIO
ORG
T/W
W/BK
BLUE
3V
BLUE
1V
HS1
HS2
TF1
TF2
MODEL
P2-2
WHITE
MOIST
GND
FS-1
FS-2
FS-3
WGUARD
SOFT
HEATER
RELAY
P3-2
HEATER
HI
P3-1
HEATER
LOW
RED
COM
NO
R/W
R/W
LOUD
BLUE
P2-7
BLUE
PK/BK
PTS
MOTOR
RELAY
PK/BK
BU
BLK
BU
BLK
COM
NO
MOTOR
START
START
SENSE
BU/BK
P1-5
RED
WHITE/RED
CENTRIFUGAL
SWITCH
P4-5
P4-4
WET
W/R
P4-8
DAMP
BLK
P4-6
COOL DOWN
W/BL
P4-7
W/V
P4-3
P4-2
P4-1
BLK
BLK
L1_
RETURN
W/R
WH
BLUE
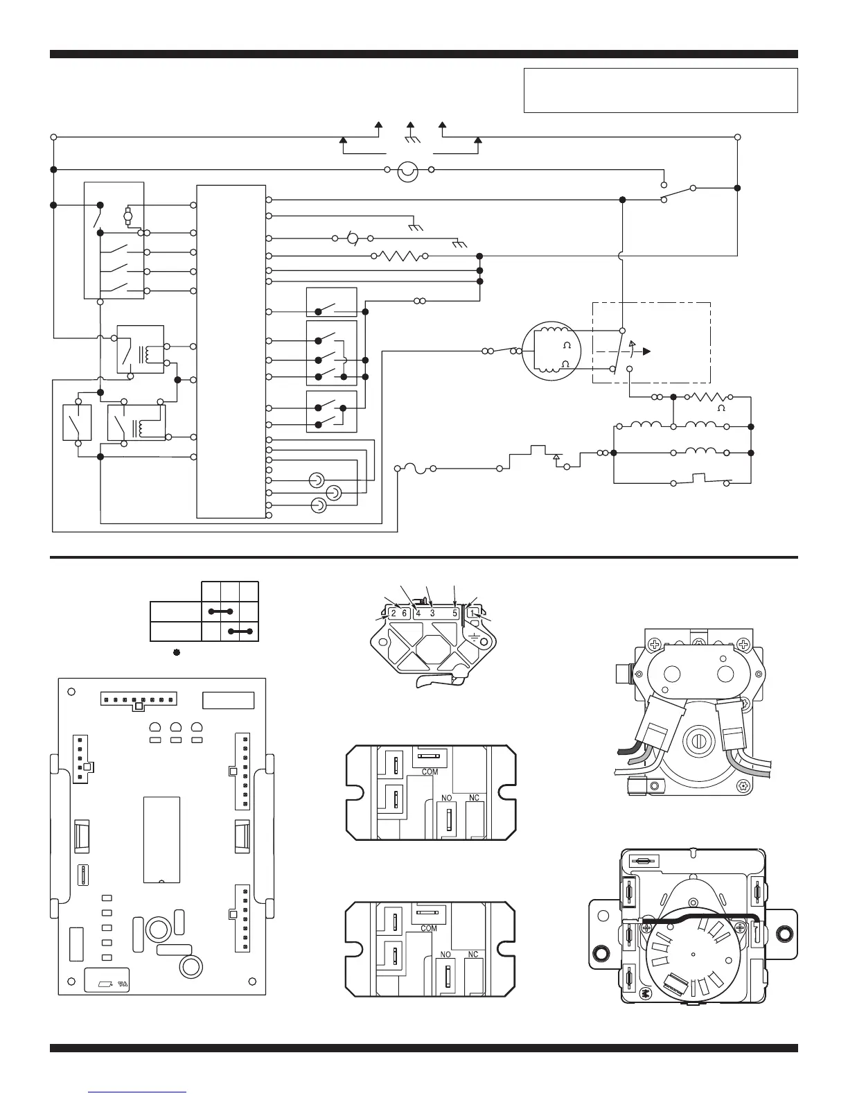
Gas Dryer Wiring Diagram
IMPORTANT: Electrostatic (static electricity)
discharge may cause damage to electronic control
assemblies. See page 1 for details.
Red
Black
Blue Violet White
Green/
Ye l l o w
Red
Pluggable Drive Motor Switch
PS01
DZ7
1
1
PS03
C3
U1
PT1
FSP
WHP:3976627
EH WG 3
DOTT & 433
WHP SOF TWARE N O.: 397 6631
R
100-1288 -00
YYDDD XXXX
DZ6
DZ5
DZ4
DZ3
R1
R16
C25
R2
R17
C2
1
PS02
PS04
TR3
TR4
TR2
C31 C30 C32
1
Even Heat Electronic
Control Assembly
B
U
B
K
B
K
R
V
W
Timer
Red
Red
Red/
White
Red/
White
Heater Relay
3M 5M 6M
=
Co
nt
ac
t
sc
l
osed
Contacts
Function
Start
Run
Centrifugal
Switch
(Motor)
Drum Size:
7.5 cubic feet
Drum Speed:
51.5 ± 3 RPM CW
Bl
ue
Bl
ue
Pink/
Black
Pink/
Black
Motor Relay
BLACK
BLUE
BLUE
WHITE
WHITE
WHITE
Gas Valve

Related product manuals