EasyManua.ls Logo

Whirlpool DWF 405 S - Circuit Diagram; Circuit Schematic; Symbol Legend

Whirlpool DWF 405 S
16 pages
Print Icon
To Next Page IconTo Next Page
To Next Page IconTo Next Page
To Previous Page IconTo Previous Page
To Previous Page IconTo Previous Page
Loading...
SERVICE
23.05.2002 / Page 8 DWF 405 S Whirlpool Europe
Doc. No: 4812 718 18048 8545 405 01770 Customer Service
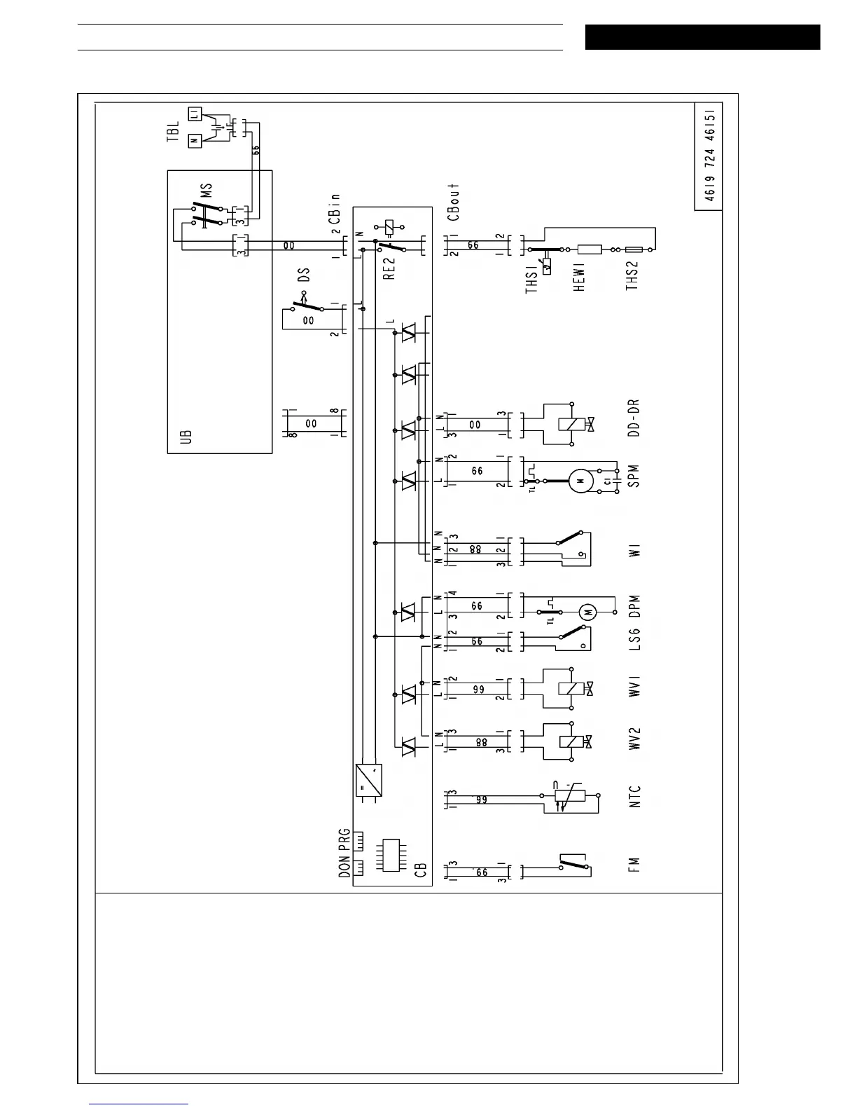
Circuit diagram
ASA/ Automatic salt adaption/
WHS Water hardness sensor
C1 Capacitor
CB Control board
CULCD Control unit LCD
DB Display board
DUB Display- and User board
DLB Timerswitch Delay
DPM Drain pump motor
DD Cleaning agent dosage
DON Turbidity sensor
DR Final rinse dosage
DS Door switch
DVH Diverter ventil high
DVL Diverter ventil low
FM Flow meter
HEWI Heating
IF Interference filter
LS6 Water leakage switch
L Line
MS Main switch
NTC Thermostat temp. sensor
N Neutral
OWI Water indicator, optical
PRG Plug to program
RV Water hardness switch
RE2 Heating relay
RR SA Reed relay salt
RR RA Reed relay rinsaid
SAB Sprayarm blocked
SPM Sprayarm motor
THS1 Safety thermostat
THS 2 Fuse
TBL Power supply terminal
TL Winding protective contact
UB User board
VM Fan ventilator
WV1 Water inlet valve
WV2 Water regenerating valve
WI Water indicator
ZW Zone washing
00 black
66 blue
88 grey
99 white
Connector Rast 2.5 on CB:
red marked:left hand side
black marked:right hand side

Related product manuals