EasyManua.ls Logo

Whirlpool LWF5370 - Instalación; Requisitos de Ubicación

Whirlpool LWF5370
Print Icon
To Next Page IconTo Next Page
To Next Page IconTo Next Page
To Previous Page IconTo Previous Page
To Previous Page IconTo Previous Page
Loading...
5
No se acerque demasiado a las flamas de los
quemadores, ni use ropa suelta, ya que se puede
encender y causar quemaduras.
Proporciónele el mantenimiento adecuado.
Utilice la estufa sólo en labores del hogar. No es un
aparato de uso comercial.
No obstruya las ranuras de la charola del horno.
De ser necesario desplazar o mover su estufa, no la
cargue o desplace tomándola de la jaladera, abra la
puerta del horno y tómela de la parte superior de la
cavidad de horno, y desplácela.
Instalación
“Este artefacto no está conectado a un
dispositivo de evacuación de los productos de
la combustión. Debe instalarse y conectarse de
acuerdo con los requisitos de instalación
vigentes. Se debe dar especial atención a los requisitos pertinentes sobre ventilación”.
Retire todos los adhesivos y elementos de empaque.
Identificar y separar los accesorios de la estufa.
Seleccione la mejor ubicación para su estufa, no debe
quedar expuesta a corrientes de aire y debe tener
espacio suficiente para abrir la puerta del horno.
No instale gabinetes o muebles de cocina encima de la
estufa.
Si instala campana extractora, colóquela a 61 cm como
mínimo desde la cubierta de la estufa.
Si su estufa cuenta con accesorios eléctricos, colóquela
cerca de un tomacorriente de pared.
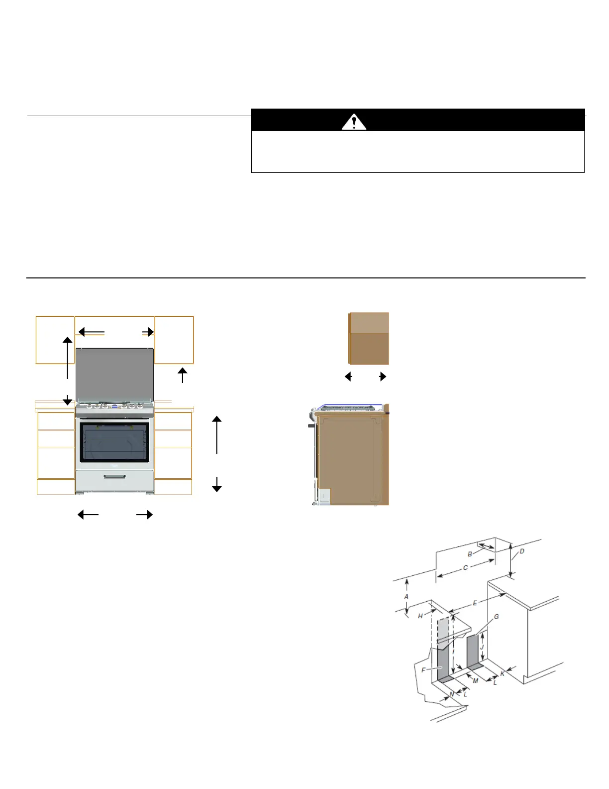
Requisitos de Ubicación
Espacios mínimos requeridos para la instalación (estas dimensiones deben de respetarse).
A. 46 cm distancia min. requerida entre la base superior del mueble o gabinete al
mueble superior del gabinete.
B. 33.0 cm max. Profundidad del gabinete superior.
C. 76.2 cm ancho min. Requerido en el gabinete superior.
D. Distancia min. 61 cm a partir de la cubierta que permita abrir el capelo.
E. 76.5 cm min. de ancho de apertura.
F. Esta área sombreada es la recomendada para salida de la instalación eléctrica.
G. Esta área sombreada es la recomendada para la instalación del tubo de gas rígido.
H. 5.1 cm espacio min. requerido del lado de la estufa al mueble o algún otro material
flamable.
I. 61.0 cm altura recomendada para la instalación del tubo de gas rígido.
J.25.4 cm altura recomendada para la instalación eléctrica.
K. 20.3 cm espacio entre pared del mueble o gabinete y espacio para la instalación de
tubo de gas rígido.
L. 12.7 cm dimensión recomendada de espacio para la instalación eléctrica y de tubo de
gas rígido.
M. 5.1 cm espacio min. requerido de pared posterior a respaldo estufa.
N. 7.6 cm espacio entre pared del mueble o gabinete y espacio para la instalación
eléctrica.
61
46
76.2
76.55
33
Riesgo de lesiones por exceso de peso
Use dos o más personas para mover e instalar su producto.
No seguir esta instrucción puede causar daños a su columna o heridas.
ADVERTENCIA
14-Sep-2015 11:56:11 EDT | RELEASED
In some European factories the letter "W" of the part code mentioned herein will be automatically
replaced by the number "4000" (e.g. "W12345678" becomes "400012345678")

Related product manuals