EasyManua.ls Logo

Williams 5001922A - Gas Piping Installation and Connections; Gas Piping Codes and Material Requirements; Gas Supply Line Setup and Leak Testing

Williams 5001922A
32 pages
Print Icon
To Next Page IconTo Next Page
To Next Page IconTo Next Page
To Previous Page IconTo Previous Page
To Previous Page IconTo Previous Page
Loading...
Installing Your Heater
Note: Minimum fresh air opening is 1 square inch per 1,000
Btu/hr.
GAS PIPING
State and local authorities have established codes regulating the
installation of gas burning equipment. Consult your gas supplier or
gas company for complete information. In the absence of local
codes, all aspects of the installation must comply with the National
Fuel Gas Code ANSI Z223.1. In Canada: Follow the CAN/CGA-
B149.1(2) Canadian Standard.
1. Use ½-inch pipe or semi-rigid tubing for natural and Liquefied
Petroleum Gases. DO NOT USE FLEXIBLE HOSE.
Appliance connectors of corrugated metal tubing and fittings
that are listed by a nationally recognized testing agency may
be used if accepted by the local code authorities. FOLLOW
THE MANUFACTURER’S INSTALLATION INSTRUCTIONS.
This type of connection may only be installed in the room
where the heater is located.
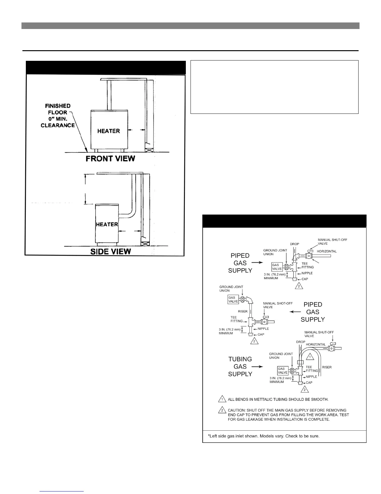
2. A manual shutoff valve and union must be installed in the gas
supply line just ahead of the connection to the heater. The
manual valve must include a 1/8-inch NPT plugged tapping
accessible for connection of a test gauge.
3. Unions in the gas supply lines should be of the ground joint
type. Compounds used on threaded pipe joints must be
resistant to the action of liquefied petroleum gases.
WARNING: When connecting field piping, use a
second wrench to keep the heater valve from
turning. Support field piping properly, stress and
over tightening could damage the gas valve and
result in dangerous gas leaks which can cause
dangerous conditions including property damage,
bodily injury, and even death.
4. A drip leg (Figure 2) should be installed to constitute a trap to
catch any condensate that may be in the gas. The drip leg
should be readily accessible for cleaning.
5. The heater must be disconnected from the gas supply system
and from the heaters individual shutoff valve when the system
is tested at a pressure in excess of 1/2 PSI.
6. Check all factory and field pipe joints for gas leaks before and
after lighting the heater. Use a soap solution. Never use a
match or open flame. Correct any leak (s), no matter how
small.
7. Piping supply shall be supported to prevent sagging damage
to the controls and hazardous gas leaks. To prevent freezing
where the supply pipe is exposed to cold air, wrap the pipe or
run it underground.
FIGURE 1 Minimum Required Clearances
FIGURE 2 Left Side Gas Inlet
A
B
C
OPEN IN FRONT TO
PROVIDE SERVICE,
ACCESS AND
CLEARANCE TO
COMBUSTIBLES.
OPEN IN FRONT TO
PROVIDE SERVICE,
ACCESS AND
CLEARANCE TO
COMBUSTIBLES.
1/8 IN NPT PLUGGED
HOLE FOR TEST
GUAGE

Related product manuals