EasyManua.ls Logo

Winflo WH102 - Page 5

Default Icon
22 pages
Print Icon
To Next Page IconTo Next Page
To Next Page IconTo Next Page
To Previous Page IconTo Previous Page
To Previous Page IconTo Previous Page
Loading...
5
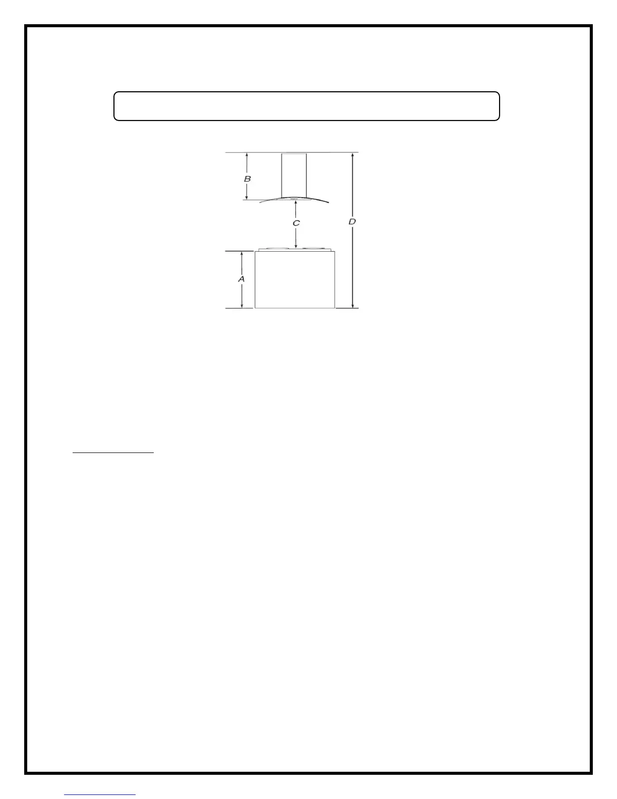
INSTALLATION DIMENSION RECOMMENDATIONS
For Island range hoods:
A. Countertop Height.
B. Hood height from ceiling to bottom of the range hood filter surface: D-A-C=B.
C. 24” minimum from cooking surface up to 36” maximum for Electric/Induction range tops. 27” minimum
from cooking surface up to 36” maximum for Gas range tops.
D. Floor to ceiling height.
Prior to installation
Unpack range hood and ensure all listed parts are in the box.
It is recommended for the vent system to be installed before hood is installed.
Before making cutouts, make sure there is proper clearance within the ceiling or walls for the exhaust
vent.
Determine which venting method to use: roof or wall.
It is recommended that a professional installer perform the range hood installation.

Related product manuals