EasyManua.ls Logo

Wolf 24 inch - Page 7

Wolf 24 inch
32 pages
Print Icon
To Next Page IconTo Next Page
To Next Page IconTo Next Page
To Previous Page IconTo Previous Page
To Previous Page IconTo Previous Page
Loading...
wolfappliance.com
|
7
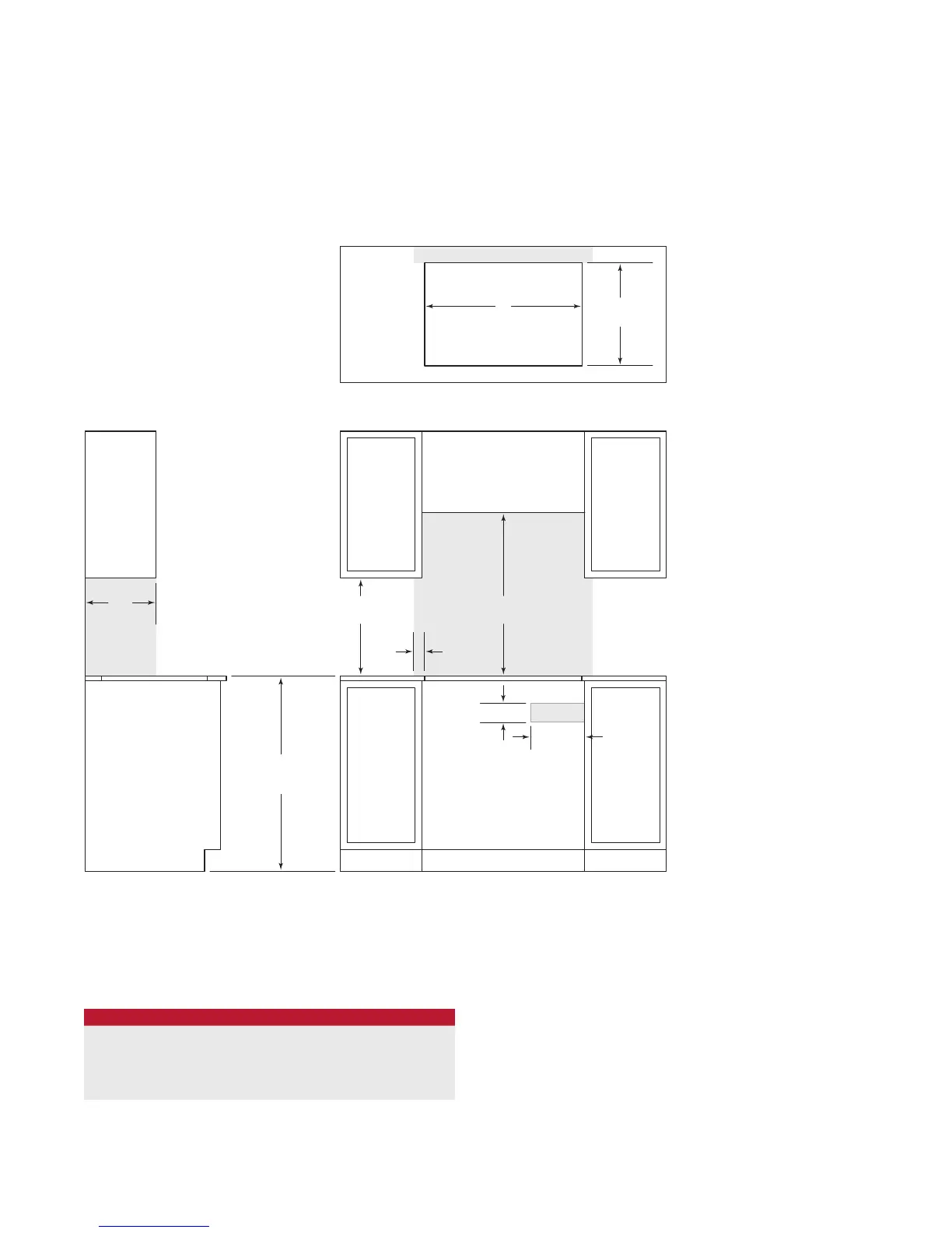
SPECIFICATIONS
E
COUNTERTOP CUT-OUT
10" (254)
4
1
/2" (114)
3
1
/2" (89)
FRONT VIEW
SIDE
VIEW
NO
TE: Shaded area above countertop indicates minimum clearance to combustible surfaces,
combus
tible materials cannot be located within this area.
El
ectrical supply location only applies to installations with built-in oven.
30"
(762)
13"
(330)
18"
(457)
2"
(51)
W
WIDTH
19
1
/2"
(495)
2
1
/
2
"
(64)
2
1
/2" (64)
36" (914) min
FLOOR TO
COUNTERTOP
CUT-OUT WIDTH
INDUCTION / ELECTRIC COOKTOP W
24" Induction 22
1
/8" (562)
30" Induction / Electric 29" (737)
36" Induction / Electric 35" (889)
24", 30" and 36" Cooktops
STANDARD INSTALLATION

Related product manuals