EasyManua.ls Logo

Wolf DD30 - Page 22

Wolf DD30
44 pages
Print Icon
To Next Page IconTo Next Page
To Next Page IconTo Next Page
To Previous Page IconTo Previous Page
To Previous Page IconTo Previous Page
Loading...
8 | Atención al cliente de Wolf 800.222.7820
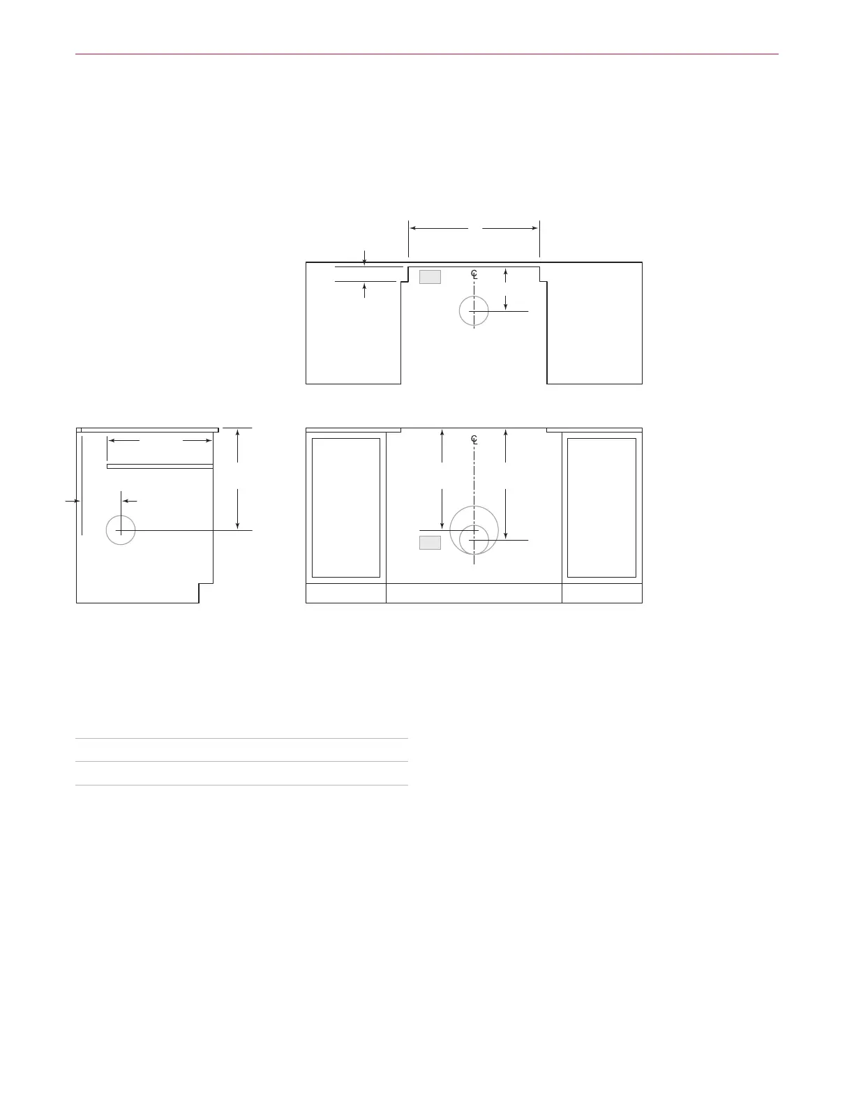
VISTA LATERAL
19" (483)
PROFUNDIDAD DE
LA PLATAFORMA
VISTA FRONTAL
*6" (152) detrás del recorte del mostrador cuando el extractor interno está montado en la parte posterior.
NOTA: extractor interno 6" (152) para descarga alrededor, a los lados, en la parte posterior o en la parte inferior. Extractor ennea y remoto
10" (254) para descarga alrededor o en la parte posterior. La línea central indica el centro del recorte del ventilador de tiro descendente.
21
1
/4"
(540)
8
1
/4"
(210)*
VISTA SUPERIOR
W
ANCHURA DEL RECORTE
PARA EL VENTILADOR
DE TIRO DESCENDENTE
8
1
/
4
"
(210)*
21
1
/4"
(540)
23
3
/8"
(594)
ABERTURA PARA ESTUFA
2
11
/16" (68)
E
E
Ventilador de tiro descendente
INSTALACIÓN CON ESTUFA CON QUEMADORES SELLADOS
ANCHURA DEL RECORTE W
DD30 27⁄" (699)
DD36 33⁄" (851)
Especificaciones

Related product manuals