EasyManua.ls Logo

Wolf DD36I - Safety Instructions; Important Safety Instructions; General Safety Requirements

Wolf DD36I
9 pages
Print Icon
To Next Page IconTo Next Page
To Next Page IconTo Next Page
To Previous Page IconTo Previous Page
To Previous Page IconTo Previous Page
Loading...
Planning Information
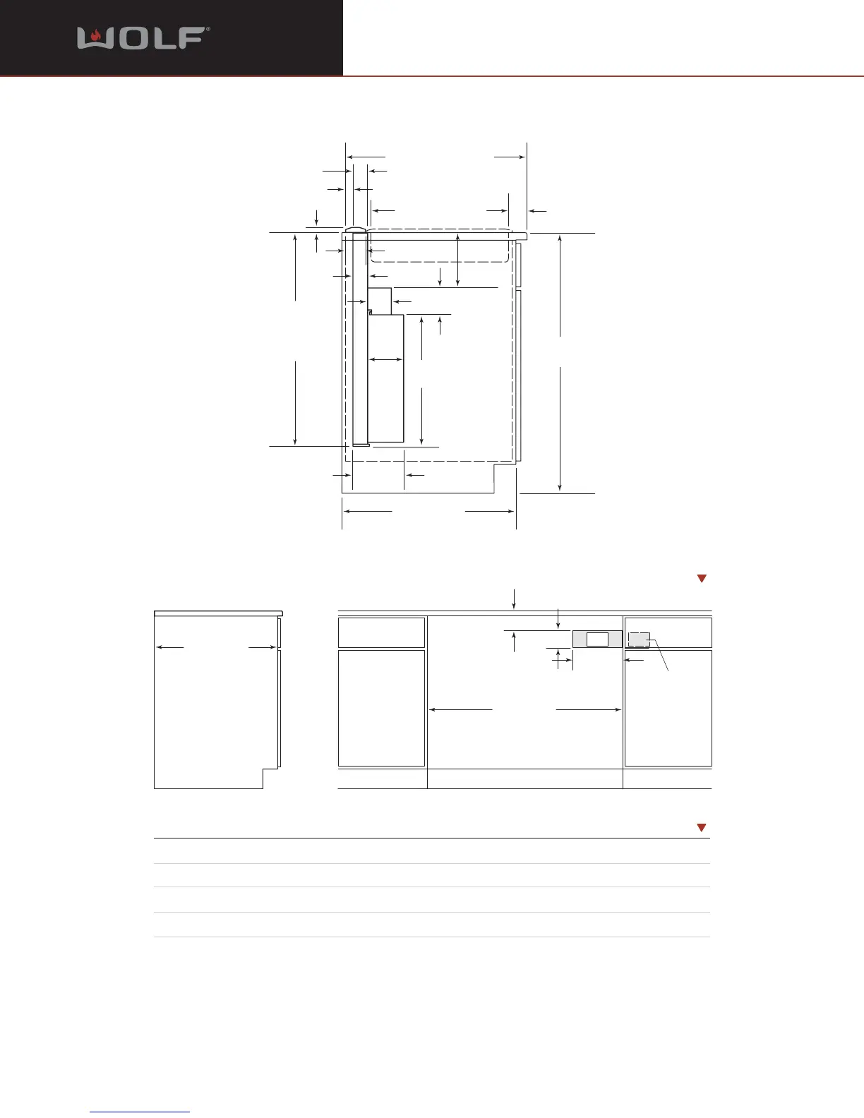
Models DD36I and DD36R Downdraft Systems
Dimensions in parentheses are in
millimeters unless otherwise specified.
4
2
1
/8
" (54)
19
1
/4
" (489)
COOKTOP CUT-OUT
DEPTH
36"
(914)
2
3
/8
" (60)
25
1
/8
" MIN (638)
OF FLAT COUNTERTOP*
.344"
29
5
/16
"
(745)
COUNTERTOP
TO BOTTOM OF
AIR BOX
18"
(457)
3
5
/8
"
(92)
3
1
/4
"
(83)
5"
(127)
7
11
/16
"
(197)
5
/8
"
(16)
2
1
/2
" MIN
(64)
WITH NO
RAISED LIP*
*AREAS OF POTENTIAL INTERFERENCE
24" MIN (610)
CABINET DEPTH
1
3
/4
" MIN (45)
BACK EDGE
OF COOKTOP
TO INSIDE OF
CABINET BACK*
7
1
/8
"
(181)
36"min (914)
E
3
1
/2" (89)
4"min (102)
10" (254)
ELECTRICAL LOCATION
IN CABINET BACK
24"min (610)
CABINET DEPTH
OPTIONAL
ELECTRICAL
LOCATION IN
ADJACENT RIGHT
SIDE CABINET
E
LOCATION OF ELECTRICAL
DIMENSIONS
Downdraft Cut-Out Width 33" (838)
Recommended Cabinet Width 39" (991)
Downdraft Cut-Out Depth 2
3
/4" (70)
Location of Electrical Within shaded area
See Installation Instructions shipped with unit for detailed specifications.

Other manuals for Wolf DD36I

Related product manuals