EasyManua.ls Logo

Wolf DF366 - Page 4

Wolf DF366
5 pages
Print Icon
To Next Page IconTo Next Page
To Next Page IconTo Next Page
To Previous Page IconTo Previous Page
To Previous Page IconTo Previous Page
Loading...
Planning Information
36" (914) Dual Fuel Ranges
MODELS DF366 / DF364C / DF364G
Dimensions in parentheses are in
millimeters unless otherwise specified.
4
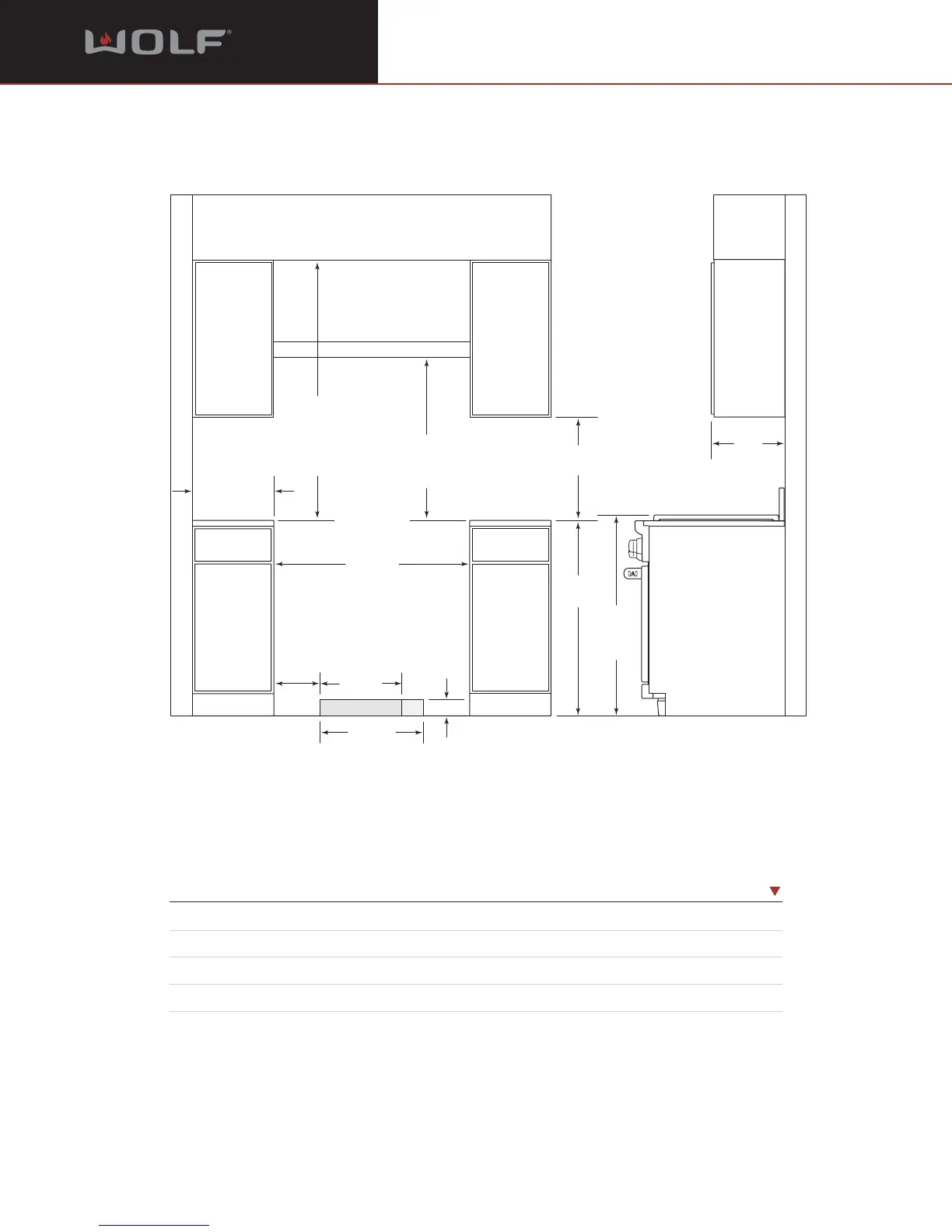
INSTALLATION SPECIFICATIONS
DIMENSIONS
Overall Width of Range 35
7
/8" (911)
Finished Rough Opening Width 36" (914)
Location of Gas Supply Within shaded area
Location of Electrical Within shaded area
See Installation Instructions shipped with unit for detailed specifications.
19" (483)
LOCATION OF
ELECTRICAL
36"
(914)
36
7
/8"
(937) TO
COOKING
SURFACE
VENTILATION HOOD
18"min (457)
TO COUNTERTOP
LOCATION OF GAS AND
ELECTRICAL EXTENDS 3" (76)
ON FLOOR FROM BACK WALL
36" (914)
FINISHED ROUGH OPENING WIDTH
3
1
/4"
(83)
8
1
/2"
(216)
15" (381)
LOCATION
OF GAS
SUPPLY
30"min (762) TO
36"max (914)
TO BOTTOM OF
VENTILATION HOOD
36"min (914)
COUNTERTOP
TO COMBUSTIBLE
MATERIALS
44"min (1118)
FOR CHARBROILER
ISLAND INSTALLATIONS: 12" (305) MINIMUM
CLEARANCE FROM BACK OF RANGE TO
COMBUSTIBLE REAR WALL ABOVE COUNTERTOP–
0" (0) TO NON-COMBUSTIBLE MATERIALS
13" max
(330)
6"min (152)
TO
COMBUSTIBLE
MATERIALS
(BOTH SIDES)

Other manuals for Wolf DF366

Related product manuals