EasyManua.ls Logo

Wolf DF486G - M Series Oven Styles

Wolf DF486G
5 pages
Print Icon
To Next Page IconTo Next Page
To Next Page IconTo Next Page
To Previous Page IconTo Previous Page
To Previous Page IconTo Previous Page
Loading...
Planning Information
48" (1219) Dual Fuel Ranges
MODEL DF486C / DF486G / DF484CG / DF484DG / DF484F
Dimensions in parentheses are in
millimeters unless otherwise specified.
4
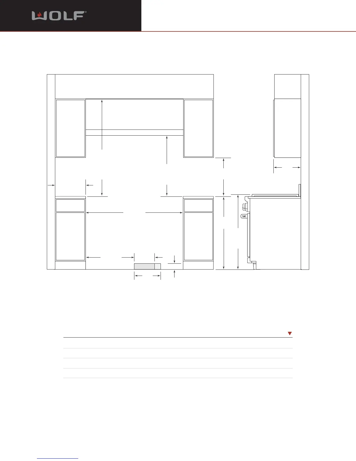
INSTALLATION SPECIFICATIONS
DIMENSIONS
Overall Width of Range 47
7
/8" (1216)
Finished Rough Opening Width 48" (1219)
Location of Gas Supply Within shaded area
Location of Electrical Within shaded area
See Installation Instructions shipped with unit for detailed specifications.
13"
(330)
LOCATION OF
ELECTRICAL
36"
(914)
36
7
/8"
(937) TO
COOKING
SURFACE
VENTILATION HOOD
LOCATION OF GAS AND
ELECTRICAL EXTENDS 3" (76)
ON FLOOR FROM BACK WALL
ISLAND INSTALLATIONS: 12" (305) MINIMUM
CLEARANCE FROM BACK OF RANGE TO
COMBUSTIBLE REAR WALL ABOVE COUNTERTOP
0" (0) TO NON-COMBUSTIBLE MATERIALS
48" (1219)
FINISHED ROUGH OPENING WIDTH
24" (610)
3
1
/4"
(83)
10"
(254)
LOCATION
OF GAS
SUPPLY
18"min (457)
TO COUNTERTOP
30"min (762) TO
36"max (914)
TO BOTTOM OF
VENTILATION HOOD
36"min (914)
COUNTERTOP
TO COMBUSTIBLE
MATERIALS
44"min (1118)
FOR CHARBROILER
13" max
(330)
6"min (152)
TO
COMBUSTIBLE
MATERIALS
(BOTH SIDES)

Other manuals for Wolf DF486G

Related product manuals