EasyManua.ls Logo

Wolf Dual Fuel Range - Page 17

Wolf Dual Fuel Range
32 pages
Print Icon
To Next Page IconTo Next Page
To Next Page IconTo Next Page
To Previous Page IconTo Previous Page
To Previous Page IconTo Previous Page
Loading...
wolfappliance.com | 7
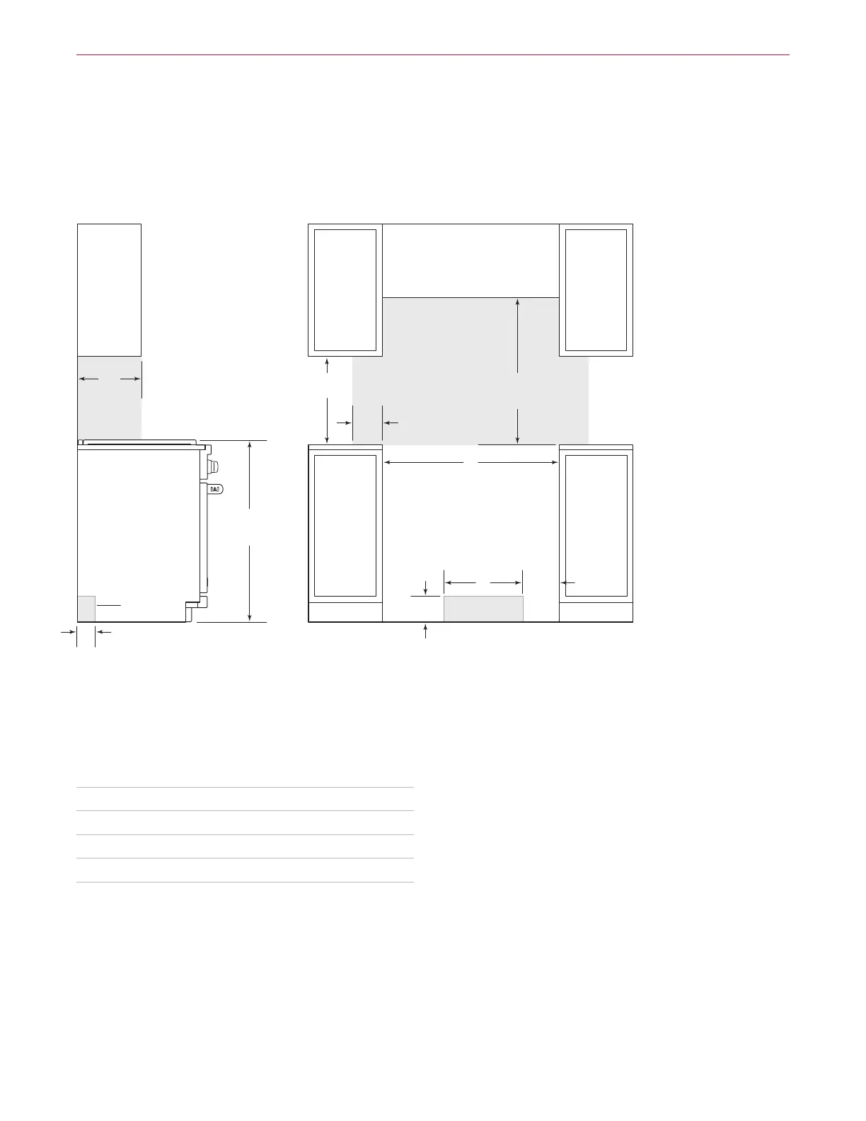
E
A
4
7
/
8
"
(124)
8
1
/2"
(216)
G
ELÉCTRICA Y
DE GAS EN LA
UBICACIÓN ‘A’
SOLAMENTE
VISTA FRONTALVISTA LATERAL
13"
(330)
18"
(457)
6"
(152)
36
7
/8" (937)
A LA SUPERFICIE
PARA COCINAR
W
ANCHO DE LA ABERTURA
30" (762) A 36" (914)
A LA PARTE INFERIOR DE LA
CAMPANA DE VENTILACIÓN
*
2"
(51)
*Sin campana de ventilación, se requiere una distancia mínima de 36" (914) desde el mostrador hasta los materiales combustibles,
y 44"
(1118) para la parrilla.
NOTA: La zona sombreada sobre el mostrador indica la distancianima a las superficies combustibles, los materiales combustibles
no se pueden colocar en esta área.
Para instalaciones en islas, se necesita una distancia mínima de 12(305) en la parte posterior de la estufa a la pared trasera
inflamable sobre el mostrador.
ANCHO DE LA ABERTURA ANCHO A
Estufa de 30" 30" (762) 10⁄" (260)
Estufa de 36" 36" (914) 16⁄" (413)
Estufa de 48" 48" (1219) 18⁄" (464)
Estufa de 60" 60" (1524) 18⁄" (464)
Especificaciones
Estufa de energía dual
INSTALACIÓN

Related product manuals