EasyManua.ls Logo

Wolf ICBCT15G/S - Page 9

Wolf ICBCT15G/S
76 pages
Print Icon
To Next Page IconTo Next Page
To Next Page IconTo Next Page
To Previous Page IconTo Previous Page
To Previous Page IconTo Previous Page
Loading...
457 mm min
914 mm
FLOOR TO
COUNTERTOP
762 mm
min
C
OUNTERTOP
TO COMBUSTIBLE
MATERIALS
762 mm OVEN OPENING
102 mm
254 mm
89 mm
E
SEE COUNTERTOP
CUT-OUT BELOW
229 mm TO
COMBUSTIBLE*
229 mm TO
COMBUSTIBLE*
64
mm*
SIDE
CABINET
330 mm
m
ax
737 mm
CUT-OUT WIDTH
COUNTERTOP CUT-OUT
FRONT
489 mm
CUT-OUT
DEPTH
64 mm min
*Minimum clearance from cooktop cut-out to combustible materials up to 457 mm above countertop.
NOTE: Gas and electrical location applies only to installation with built-in oven.
G
9
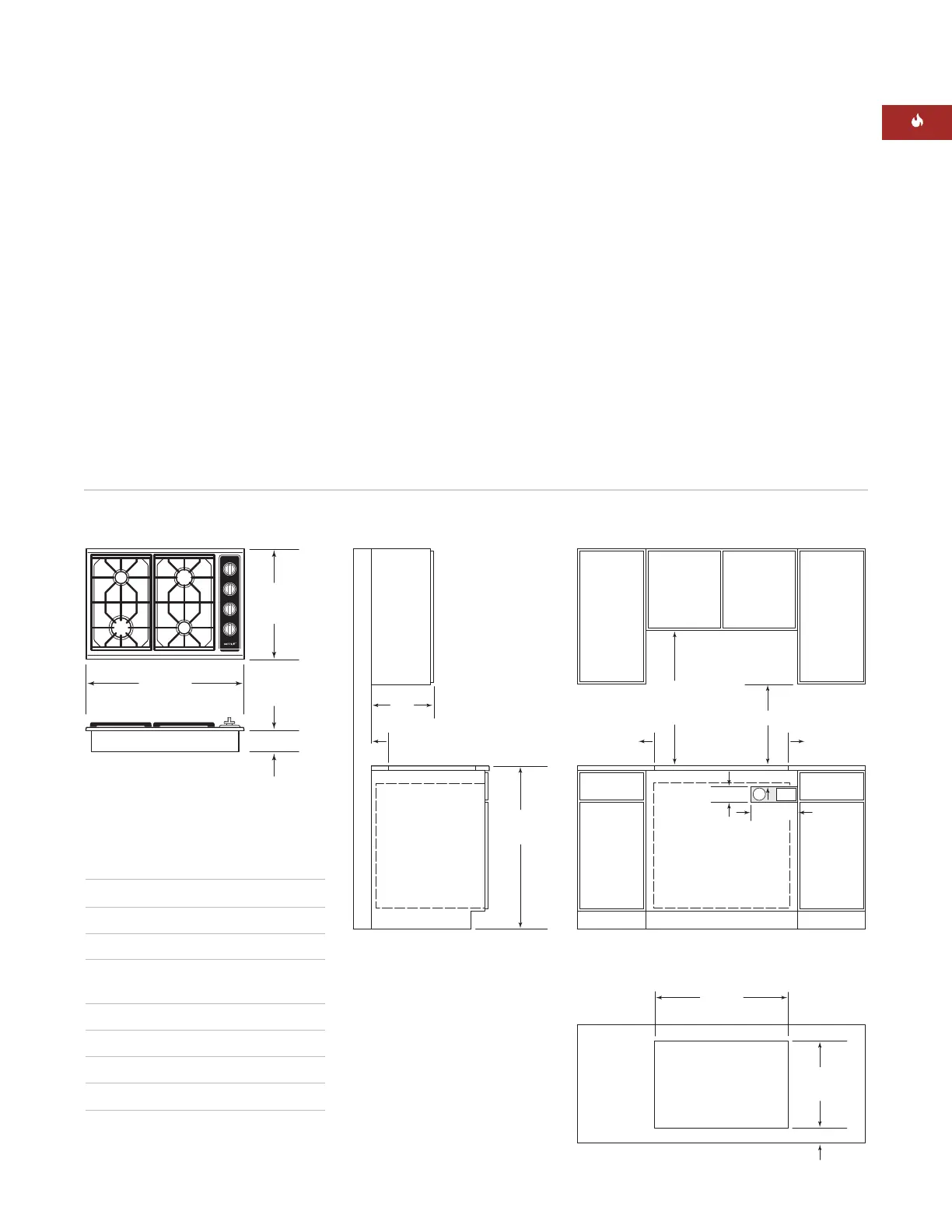
IN STA LL AT ION I N S T R U C T I O N S
Overall Dimensions
533 mm
FONDO
T
OTAL
762 mm
ANCHURA TOTAL
102 mm
IN STA LL AT ION S P E C I F I C AT I O N S
The illustrations below provide the overall
dimensions, countertop cut-out and installation
specifications for Model ICBCT30G.
IMPORTANT NOTE:
838 mm wide cabinets are
recommended for installation of Model
ICBCT30G.
A Wolf 762 mm single built-in oven may be
installed below Model ICBCT30G. For this
installation, unless you are using cabinets
deeper than 610 mm, it is recommended that
the electrical and gas supply be placed in the
base cabinet to the right of the oven. Refer to
installation instructions provided with the built-
in oven for additional specifications.
If the Model ICBCT30G is installed above
cabinets, the gas and electrical placement is not
critical. A grounded outlet needs to be placed
within 1.2 m of the right rear of the cooktop.
IMPORTANT NOTE:
When multiple cooktop
units are installed side by side, refer to the
countertop cut-out dimensions on page 11.
M O D E L I C B C T 3 0 G
D I M E N S I O N S
Overall Width 762 mm
Overall Height 102 mm
Overall Depth 533 mm
Recommended
Cabinet Width 838 mm
Minimum Cabinet Depth 578 mm
Minimum Height Clearance 102 mm
Cut-Out Width 737 mm
Cut-Out Depth 489 mm
Unit dimensions may vary to
±
3 mm.
I N S TA L L AT I O N S P E C I F I C AT I O N S M O D E L I C B C T 3 0 G

Related product manuals