EasyManua.ls Logo

Wolf SO30F/S - Page 15

Wolf SO30F/S
120 pages
Print Icon
To Next Page IconTo Next Page
To Next Page IconTo Next Page
To Previous Page IconTo Previous Page
To Previous Page IconTo Previous Page
Loading...
Wolf Built-In Ovens 15
wolfappliance.com/specs
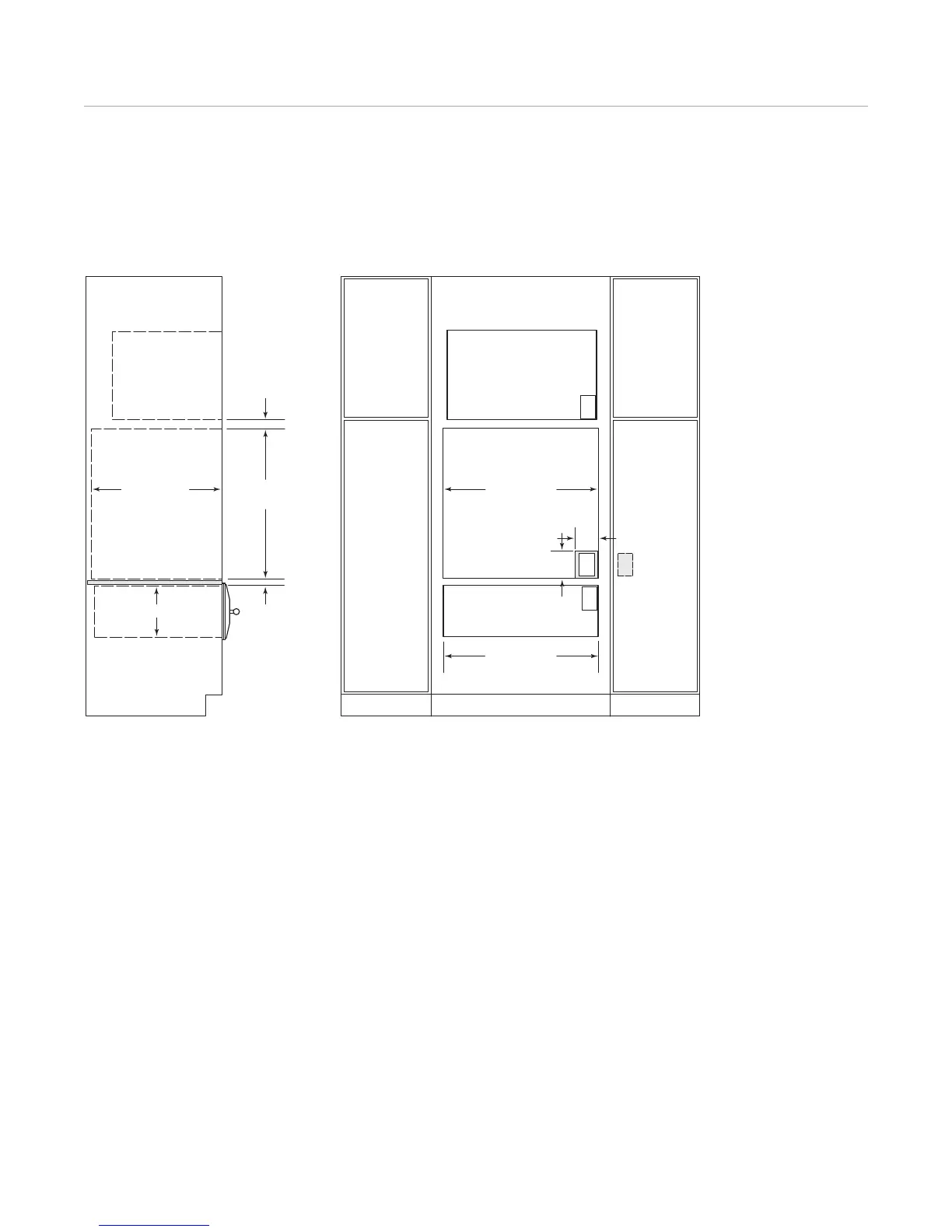
24" (610) min
OPENING DEPTH
FRONT VIEWSIDE VIEW
28
5
/8" (727)
WARMING DRAWER
OPENING WIDTH
28
1
/2" (724)
OVEN OPENING WIDTH
E
E
MICROWAVE
OPENING
27
3
/16"
(691)
1
1
/2" (38) min
E SERIES
1" (25) min
L SERIES
9
1
/8" (232)
3
/4" (19)
min
E
E
5"
(127)
4"
(102)
NOTES: Minimum base support for oven 250 lbs (113 kg).
Location of electrical supply within oven opening may require additional cabinet depth.
Dashed line represents profile of unit.
30" (762) L Series and E Series Single Oven
STANDARD INSTALLATION WITH MICROWAVE AND WARMING DRAWER

Other manuals for Wolf SO30F/S

Related product manuals