EasyManua.ls Logo

Wolf SO30F/S - Page 23

Wolf SO30F/S
120 pages
Print Icon
To Next Page IconTo Next Page
To Next Page IconTo Next Page
To Previous Page IconTo Previous Page
To Previous Page IconTo Previous Page
Loading...
Wolf Convection Steam Oven 23
wolfappliance.com/specs
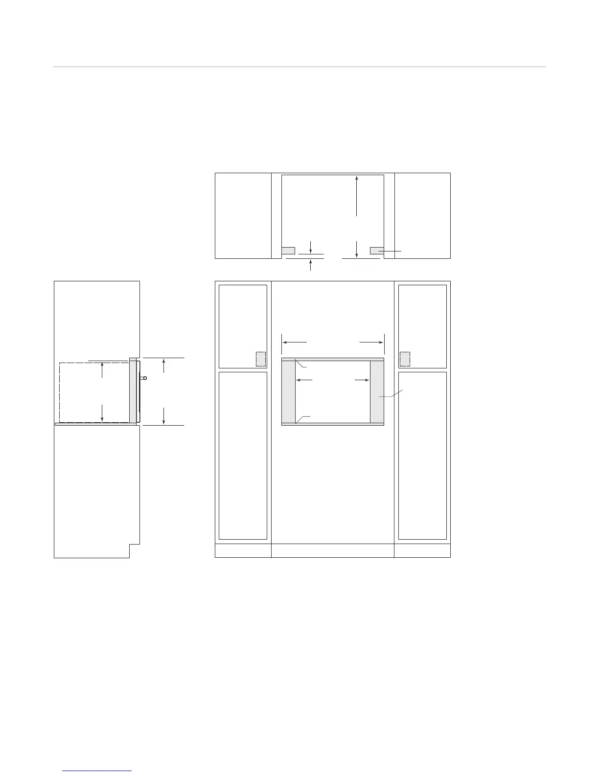
Flush Inset Installation
CONVECTION STEAM OVEN
17
11
/16" (449)
OPENING
HEIGHT
18
1
/8"
(460) min
FLUSH INSET
HEIGHT
SIDE CLEATS
23" (584) min
FLUSH INSET
DEPTH
1" (25)
NOTES: Minimum base support 100 lbs (45 kg).
Electrical supply must be located in adjacent cabinet within 3'
(.9 m) of opening.
Cleats may be visible and should be finished to match cabinetry.
Dashed line represents profile of unit.
FRONT VIEWSIDE VIEW
TOP VIEW
22
1
/4" (565)
OPENING WIDTH
30
1
/8" (765) min
FLUSH INSET WIDTH
5
/16"(8) TOP CLEAT
1
/8" (3)
BOTTOM CLEAT
3
15
/16" (100)
SIDE CLEATS
EE

Other manuals for Wolf SO30F/S

Related product manuals