EasyManua.ls Logo

Wolf SO30F/S - Page 44

Wolf SO30F/S
120 pages
Print Icon
To Next Page IconTo Next Page
To Next Page IconTo Next Page
To Previous Page IconTo Previous Page
To Previous Page IconTo Previous Page
Loading...
Wolf Induction and Electric Cooktops 44
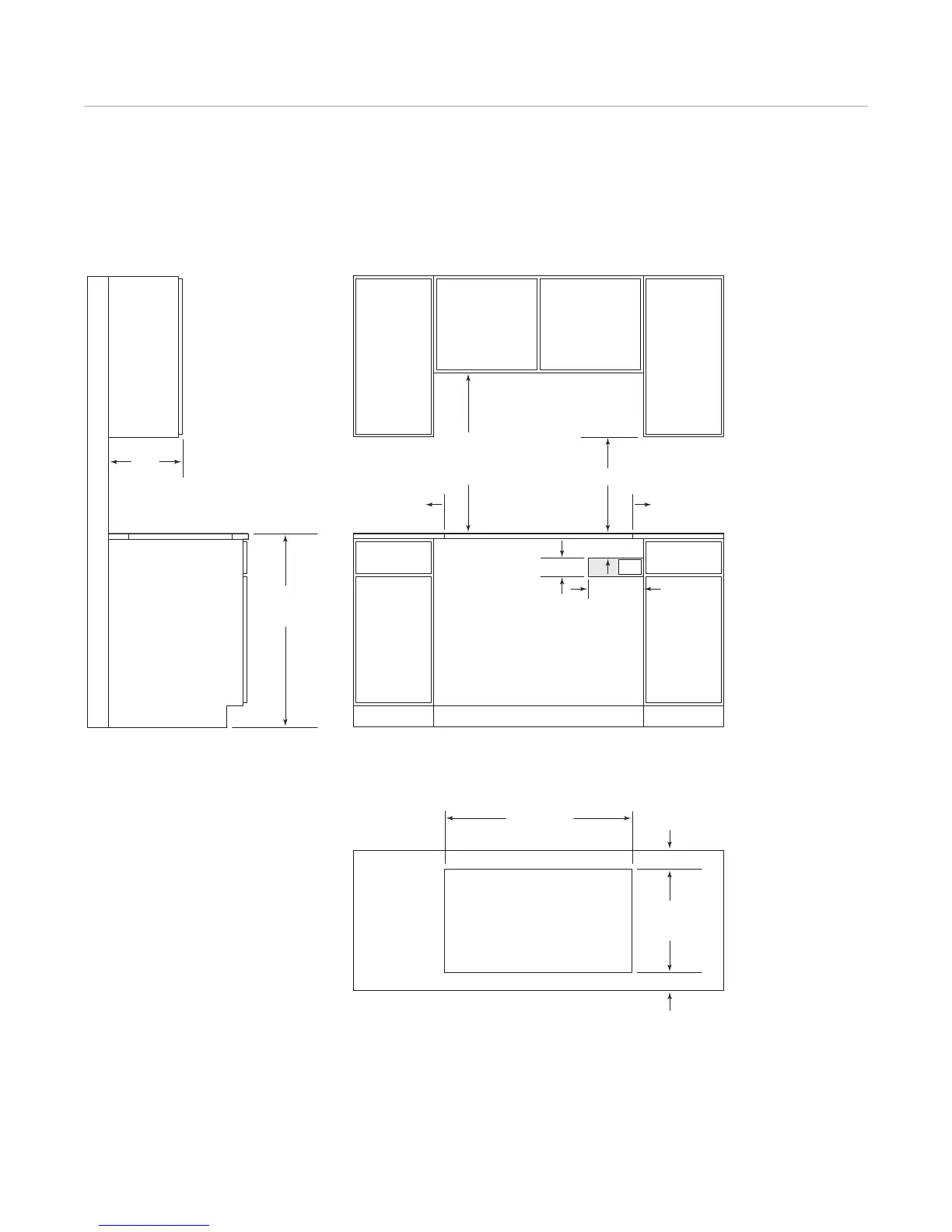
18" (457) min
36" (914)
FLOOR TO
COUNTERTOP
30" (762) min
COUNTERTOP
TO COMBUSTIBLE
MATERIALS
4
1
/2"
(
114
)
10" (254)
3
1
/2" (89)
E
SEE COUNTERTOP
CUT-OUT BELOW
34
3
/8" (873)
CUT-OUT WIDTH
COUNTERTOP CUT-OUT
FRONT
19
1
/4" (489)
CUT-OUT
DEPTH
2
1
/2" (64) min
2" (51) TO
COMBUSTIBLE*
2" (51) TO
COMBUSTIBLE*
SIDE
CABINET
13" (330)
max
2" (51) min*
FRONT VIEWSIDE VIEW
*Minimum clearance from cooktop cut-out to combustible materials up to 18" (457) above countertop.
NOTE: Electrical location applies only to installation with built-in oven.
36" (914) Framed Cooktop
STANDARD INSTALLATION

Other manuals for Wolf SO30F/S

Related product manuals