EasyManua.ls Logo

Wolf SO30F/S - Page 72

Wolf SO30F/S
120 pages
Print Icon
To Next Page IconTo Next Page
To Next Page IconTo Next Page
To Previous Page IconTo Previous Page
To Previous Page IconTo Previous Page
Loading...
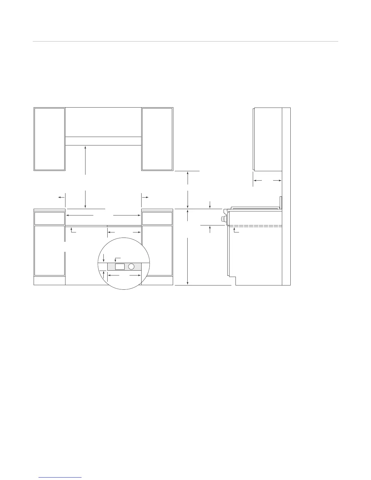
Wolf Sealed Bur ner Rangetops 72
36" (914)
OPENING WIDTH
30" (762) TO 36" (914)
TO BOTTOM OF
VENTILATION HOOD**
*Minimum clearance from rough opening to combustible materials up to 18" (457) above countertop.
**36"
(914) minimum clearance, 44" (1118) for charbroiler, from countertop to combustible materials without ventilation hood.
NOTE: For island installations, 12"
(305) minimum clearance from back of rangetop to combustible rear wall above countertop.
6" (152) TO
COMBUSTIBLE*
6" (152) TO
COMBUSTIBLE*
18" (457) min
36" (914)
FLOOR TO
COUNTERTOP
16" (406)
PLATFORM
TOP VIEW
E
G
16"
(406)
4"
(102)
BACK WALL
GAS AND ELECTRICAL
THROUGH BOTTOM OF
PLATFORM
PLATFORM
13" (330)
max
PLATFORM
7
1
/2" (191)
OPENING
HEIGHT
FRONT VIEW SIDE VIEW
36" (914) Sealed Bur ner Rangetop
INSTALLATION

Other manuals for Wolf SO30F/S

Related product manuals