EasyManua.ls Logo

Wolf SO30F/S - Page 81

Wolf SO30F/S
120 pages
Print Icon
To Next Page IconTo Next Page
To Next Page IconTo Next Page
To Previous Page IconTo Previous Page
To Previous Page IconTo Previous Page
Loading...
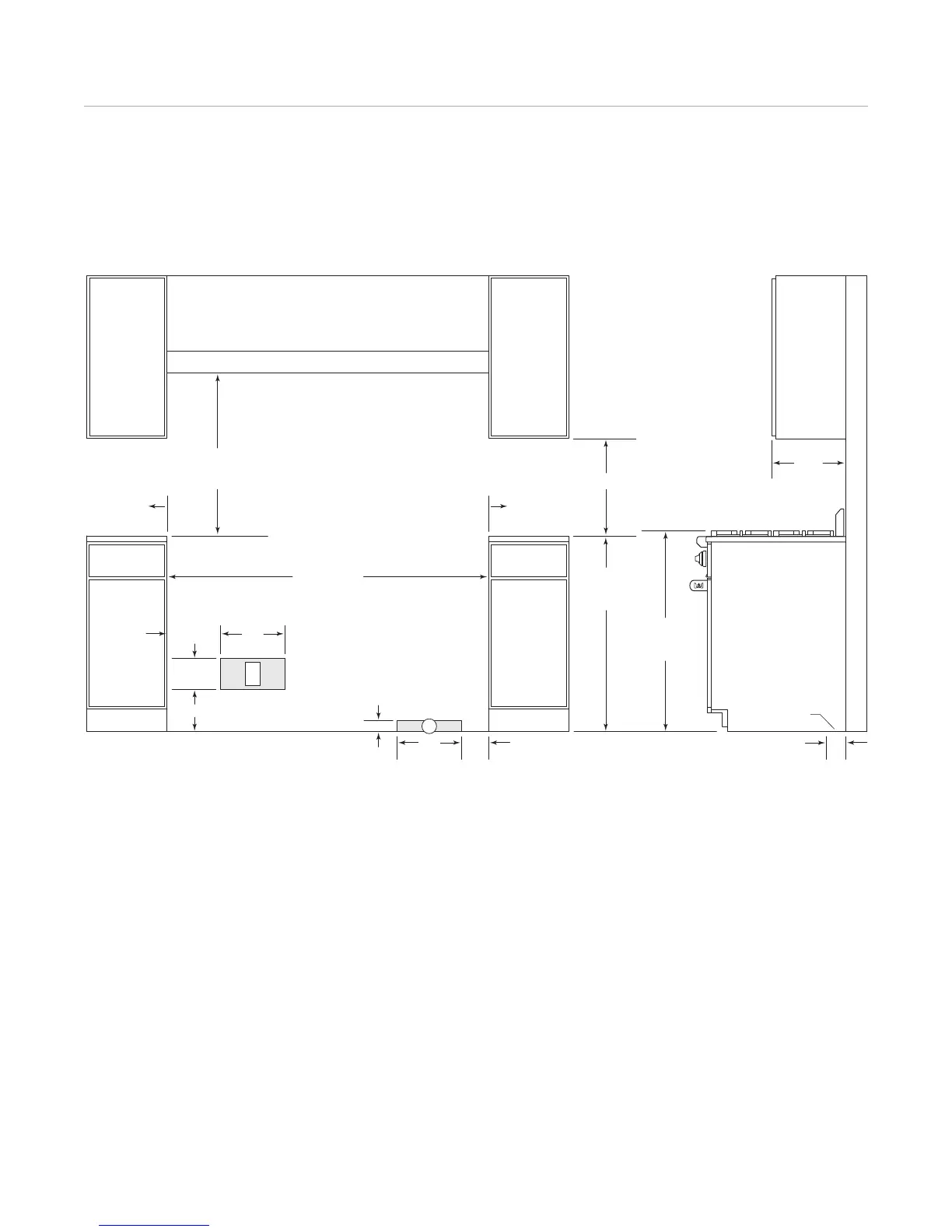
Wolf Gas Ranges 81
wolfappliance.com/specs
60
1
/4" (1530)
OPENING WIDTH
30" (762) TO 36" (914)
TO BOTTOM OF
VENTILATION HOOD**
*Minimum clearance from rough opening to combustible materials up to 18" (457) above countertop.
**44"
(1118) minimum clearance from countertop to combustible materials without ventilation hood.
NOTE: For island installations, 12"
(305) minimum clearance from back of range to combustible rear wall above countertop.
6" (152) TO
COMBUSTIBLE*
6" (152) TO
COMBUSTIBLE*
18" (457) min
36" (914)
FLOOR TO
COUNTERTOP
12"
(305)
10" (254)
12"
(305)
5"
(127)
G
2" (51)
37" (940)
TO COOKING
SURFACE
13" (330)
max
3"
(76)
LOCATION OF GAS AND
ELECTRICAL EXTENDS
ON FLOOR
SIDE
CABINET
E
7
3
/4" (197)
5
3
/4"
(146)
FRONT VIEW SIDE VIEW
60" (1527) Gas Range
INSTALLATION

Other manuals for Wolf SO30F/S

Related product manuals