EasyManua.ls Logo

Wolf SO30U - Page 15

Wolf SO30U
84 pages
Print Icon
To Next Page IconTo Next Page
To Next Page IconTo Next Page
To Previous Page IconTo Previous Page
To Previous Page IconTo Previous Page
Loading...
15
PLANNING
INFORMATION
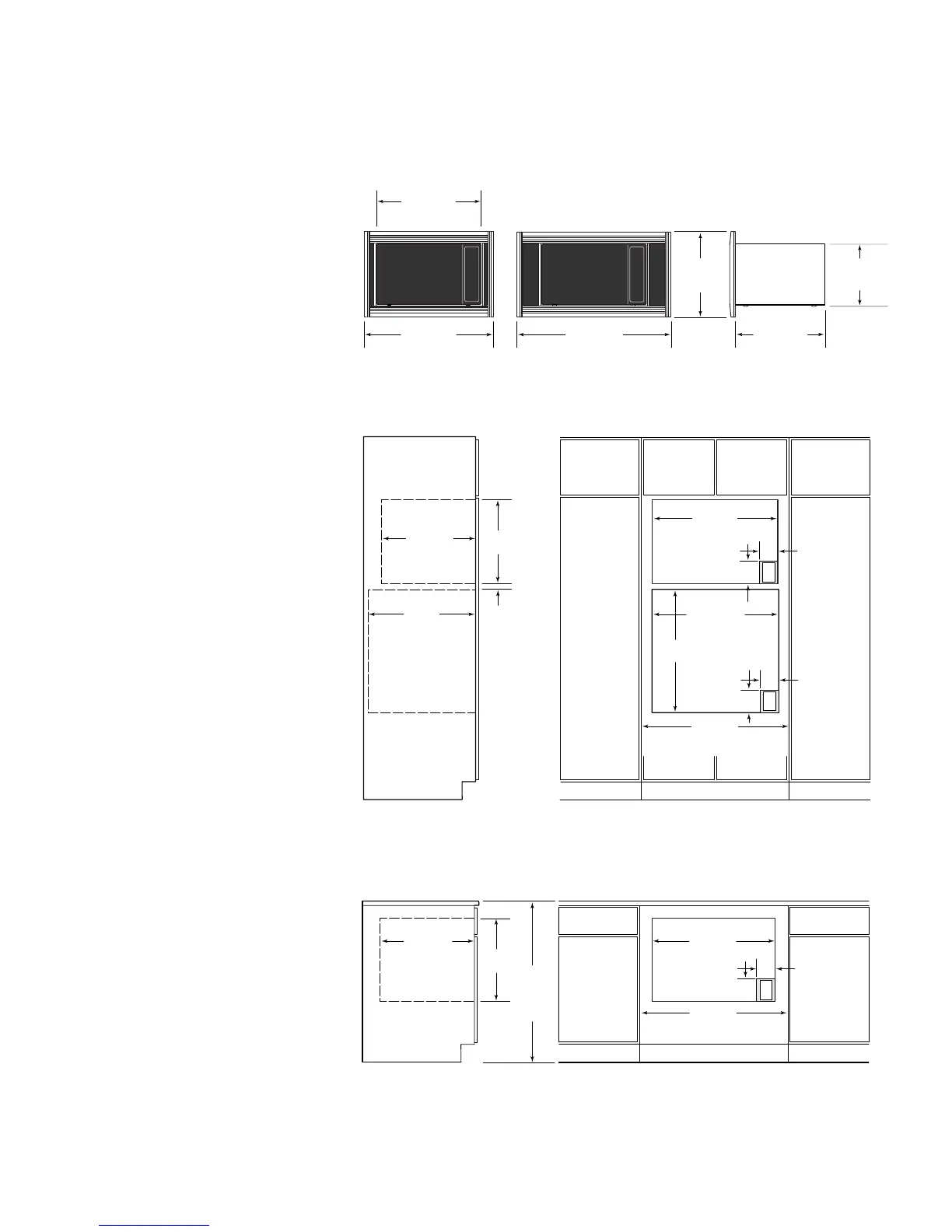
The Wolf convection microwave oven
can be used freestanding or with
optional 30" (762) or 36" (914) trim,
can be built-in to fit above a Wolf 30"
(762) or 36" (914) single oven.
The following illustrations will give
you an idea of the overall size that
you need to plan for in your installa-
tion. They also provide the finished
rough opening dimensions for the
different trim kits. The base platform
must be able to support 125 lbs
(57 kg).
IMPORTANT NOTE: In all instances,
where the microwave oven is built-in,
you must use one of Wolf's trim kits
to ensure proper ventilation.
Refer to the installation instructions
provided with the trim kit for detailed
specifications. These instructions can
also be found on the Wolf website.
When using the Wolf microwave oven
as a freestanding unit, allow 2" (51)
of airflow space on top, rear and both
sides. A minimum 20-1/8" (511)
cabinet depth is required.
Electrical Requirements
The Wolf microwave oven requires a
separate, grounded 110/120V, 60 Hz
power supply. The service should
have its own 15 amp circuit breaker
and a grounded 3-prong receptacle
should be located within the reach of
the 5' (1.5 m) power cord.
IMPORTANT NOTE: A ground fault
circuit interrupter (GFCI) is not
recommended and may cause inter-
ruption of operation.
You must follow all National Electrical
Code regulations. In addition, be
aware of local codes and ordinances
when installing your service.
W OLF C ONVECTION M ICROWAVE O VEN
Convection Microwave Oven – Overall Dimensions with 30" (762) and 36" (914) Trim
Pre-installation specifications for convection microwave with 30" (762) trim – installation
above 30" (762) oven. For 36" (914) trim, add 6" (152) to overall width dimensions.
33"(838)
RECOMMENDED CABINET WIDTH
30"min (762)
28" (711)
ROUGH OPENING WIDTH
20
1
/8"min
(511)
36"(914)
STANDARD
FLOOR TO
COUNTER
HEIGHT
CABINET SIDE VIEW
18
11
/16"
(475)
5"
(127)
4"
(102)
E
Pre-installation specifications for convection microwave with 30" (762) trim –
undercounter installation. For 36" (914) trim, add 6" (152) to overall width dimensions.
29
7
/8" (759)
30" (762) TRIM WIDTH
24
5
/8" (625)
FREESTANDING
WIDTH
19
7
/8" (505)
TRIM
HEIGHT
14
7
/8" (378)
FREESTANDING
HEIGHT
35
5
/8" (905)
36" (914) TRIM WIDTH
20
1
/8" (511)
BEHIND FRAME
24"min
(610)
27
3
/16"
(691)
28
1
/2" (724)
OVEN ROUGH
OPENING WIDTH
5"
(127)
4"
(102)
E
5"
(127)
4"
(102)
E
33"
(838)
RECOMMENDED CABINET WIDTH
30"min (762)
28" (711)
MICROWAVE ROUGH
OPENING WIDTH
20
1
/8"min
(511)
18
11
/16"
(475)
1
1
/4"min
(32)
CABINET SIDE VIEW

Related product manuals