EasyManua.ls Logo

Wolf SO30U - Page 22

Wolf SO30U
84 pages
Print Icon
To Next Page IconTo Next Page
To Next Page IconTo Next Page
To Previous Page IconTo Previous Page
To Previous Page IconTo Previous Page
Loading...
E
13
3
/8" (340)
CUT-OUT
WIDTH
30"
(762)
4"(102)
FRONT OF COUNTERTOP
13"
(330)
15"
(381)
15"
(381)
33" (838)
RECOMMENDED
CABINET WIDTH
2
1
/2"min
(64)
19
1
/4" (489)
COOKTOP
CUT-OUT DEPTH
13
3
/8" (340)
COOKTOP
CUT-OUT
WIDTH
19
1
/4" (489)
COOKTOP CUT-OUT
DEPTH
2
1
/2"min
(64)
18"
(457)
2"**
(51)
18"
(457)
2"**
(51)
24" OR 30"*
(610 or 762)
TO COOKING
SURFACE
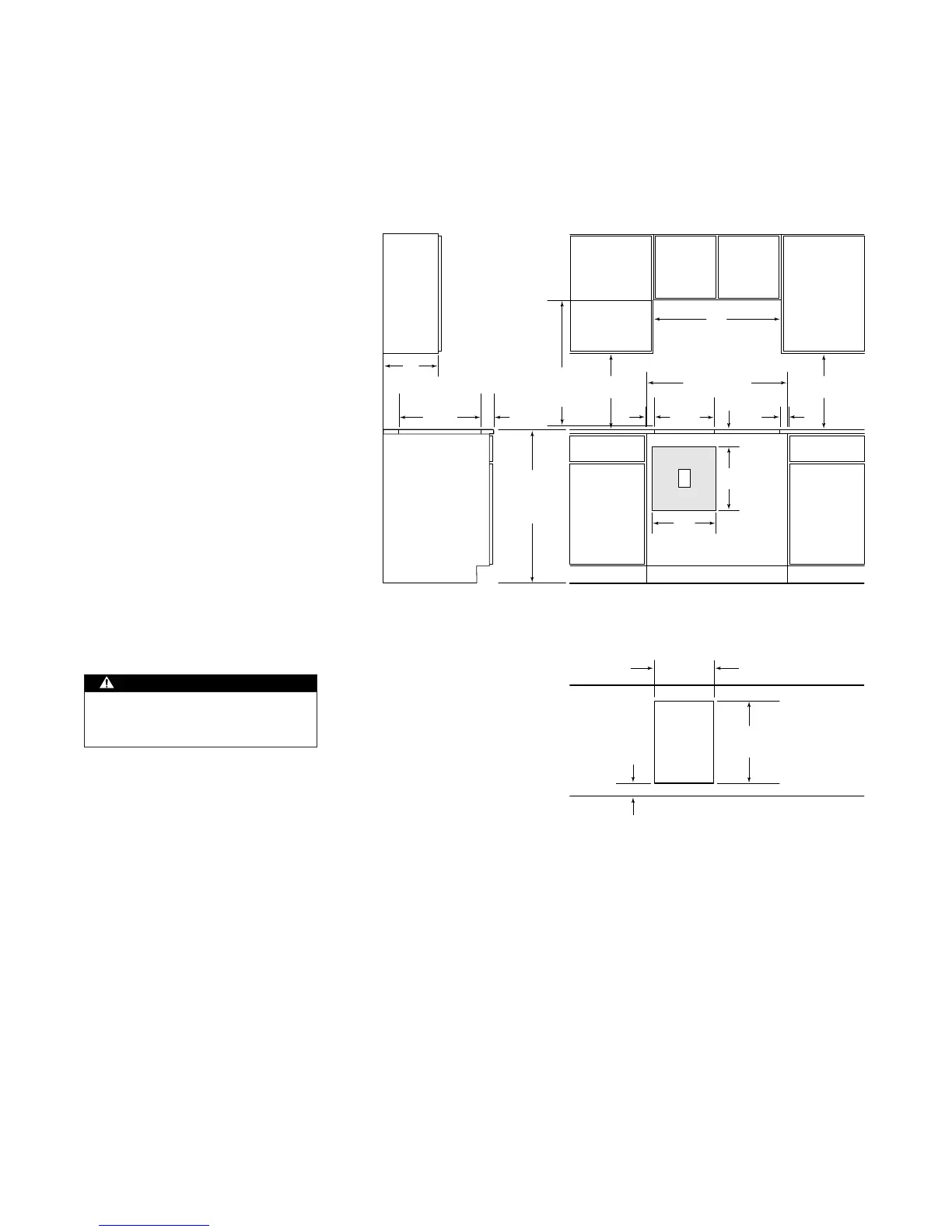
NOTE: Application shown allows for installation of two 15" (381) modules side-by-side.
* Minimum 24" (610) from protected cabinet or 30" (762) from unprotected cabinet to cooking surface.
** Minimum clearance from side edge of cooktop cut-out to combustible surface up to 18" (457) above cooking surface.
36"(914)
STANDARD
FLOOR TO
COUNTER
HEIGHT
CABINET SIDE VIEW
22
Cut-out dimensions and electrical placement for 15" (381) framed electric
cooktop, no oven or downdraft.
15" (381) FRAMED
ELECTRIC COOKTOP
The Wolf 15" (381) framed electric
cooktop requires a separate,
grounded 4-wire 240V, 15 amp
service with its own circuit breaker.
It has a 4' (1.2 m) flexible 3-wire
conduit for connection at the electri-
cal supply. Locate electrical within the
shaded area shown in the illustration.
At 240V this cooktop is rated at 3.4
Kw and at 208V rated at 2.6 Kw with
a minimum 15 amp service.
When multiple 15" (381) modules are
installed side by side, refer to the
countertop cut-out dimensions on
page 35.
IMPORTANT NOTE: If the 15" (381)
cooktop is to be used with any
combination of additional cooktop
units or modules with a filler strip,
the cut-out width increases to 14"
(356).
W OLF F RAMED E LECTRIC C OOKTOPS
Dimensions in parentheses are in millimeters unless otherwise specified.
WARNING
This cooktop is intended for
indoor use.

Related product manuals