EasyManua.ls Logo

Wolf SO30U - Page 24

Wolf SO30U
84 pages
Print Icon
To Next Page IconTo Next Page
To Next Page IconTo Next Page
To Previous Page IconTo Previous Page
To Previous Page IconTo Previous Page
Loading...
24
34
3
/8" (873)
COOKTOP CUT-OUT WIDTH
FRONT OF COUNTERTOP
13"
(330)
2
1
/2"min
(64)
19
1
/4" (489)
COOKTOP
CUT-OUT DEPTH
E
10"
(254)
36"
(914)
39"(991)
RECOMMENDED CABINET WIDTH
36-INCH OVEN ROUGH OPENING
34
3
/8" (873)
COOKTOP CUT-OUT WIDTH
3
3
/4"min
(95)
3
1
/2"(89)
4"(102)
24"min
(610)
4"
(102)
10"
(254)
3
1
/2"(89)
E
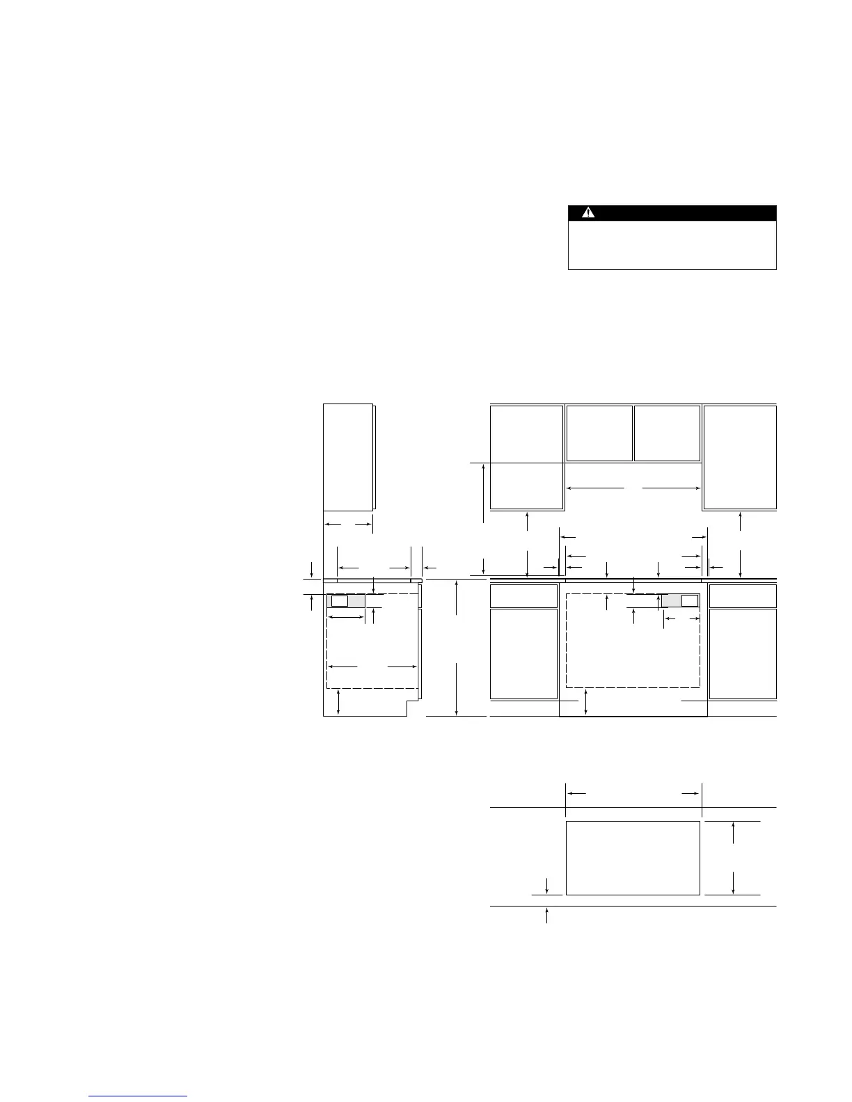
* Minimum 24" (610) from protected cabinet or 30" (762) from unprotected cabinet to cooking surface.
** Minimum clearance from side edge of cooktop cut-out to combustible surface up to 18" (457) above cooking surface.
ELECTRICAL
LOCATION IN
ADJACENT RIGHT
SIDE CABINET
19
1
/4" (489)
COOKTOP CUT-OUT
DEPTH
2
1
/2"min
(64)
24" OR 30"*
(610 or 762)
TO COOKING
SURFACE
18"
(457)
2"**
(51)
18"
(457)
2"**
(51)
4
3
/4"(121) minimum
7
3
/4"(197) recommended
4
3
/4"(121) min
7
3
/4"(197) rec
36"(914)
STANDARD
FLOOR TO
COUNTER
HEIGHT
Cut-out dimensions and electrical placement for 36" (914) framed electric cooktop
above 36" (914) single oven.
36" (914) FRAMED
ELECTRIC COOKTOP
Wolf recommends using 39" (991)
cabinets with the 36" (914) cooktop.
A Wolf 36" (914) single oven may be
installed below the 36" (914) framed
electric cooktop. Refer to the illustra-
tion for specifics on cut-out dimen-
sions and electrical placement.
When an oven is installed below the
cooktop, it is recommended that
the electrical supply be placed in the
adjacent base cabinet within the
shaded area shown in the illustration.
The top right area in the oven cavity
is available, but will make installation
difficult. The bottom cabinet support
must be able to support 250 lbs
(113 kg).
The Wolf 36" (914) framed electric
cooktop requires a separate,
grounded 3-wire 240V, 50 amp
service with its own circuit breaker.
It is provided with a 4' (1.2 m)
flexible 3-wire conduit for connection
at the electrical supply.
At 240V this cooktop is rated at 9.4
Kw and at 208V rated at 7.1 Kw with
a minimum 40 amp service.
When a 36" (914) oven is installed
below a cooktop, it is recommended
that the rough opening for the oven
be 7-3/4" (197) from the floor to ease
the use of the oven door.
W OLF F RAMED E LECTRIC C OOKTOPS
Dimensions in parentheses are in millimeters unless otherwise specified.
WARNING
This cooktop is intended for
indoor use.
When multiple cooktop units are
installed side by side, refer to the
countertop cut-out dimensions on
page 35.
IMPORTANT NOTE: If the 36" (914)
cooktop is to be used with any combi-
nation of additional cooktop units or
modules with a filler strip, the cut-out
width increases to 35" (889).

Related product manuals