EasyManua.ls Logo

Wolf SO30U - Page 27

Wolf SO30U
84 pages
Print Icon
To Next Page IconTo Next Page
To Next Page IconTo Next Page
To Previous Page IconTo Previous Page
To Previous Page IconTo Previous Page
Loading...
At 240V this cooktop is rated at 6.8
Kw and at 208V rated at 5.2 Kw with
a minimum 30 amp service.
27
W OLF U NFRAMED E LECTRIC C OOKTOPS
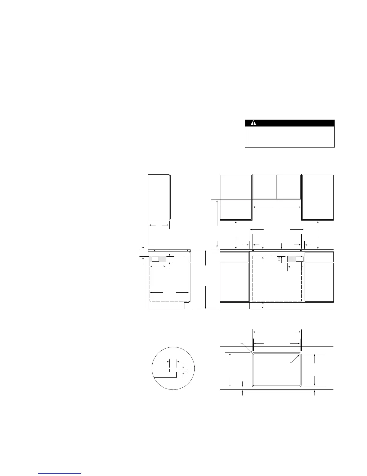
Countertop cut-out dimensions and electrical placement for 30" (762) unframed
electric cooktop above 30" (762) single oven.
30"
(762)
4"(102)
13"
(330)
33" (838)
RECOMMENDED
CABINET WIDTH
10"
(254)
3
1
/2"(89)
E
30-INCH OVEN
ROUGH OPENING
4
3
/4"min
(121)
24"min
(610)
10"
(254)
3
1
/2"(89)
E
* Minimum 24" (610) from protected cabinet or 30" (762) from unprotected cabinet to cooking surface.
** Minimum clearance from side edge of cooktop cut-out to combustible surface up to 18" (457) above cooking surface.
ELECTRICAL
LOCATION IN
ADJACENT RIGHT
SIDE CABINET
24" OR 30"*
(610 or 762)
TO COOKING
SURFACE
18"
(457)
2"**
(51)
18"
(457)
2"**
(51)
36"(914)
STANDARD
FLOOR TO
COUNTER
HEIGHT
28
3
/8" (721) COOKTOP
CUT-OUT WIDTH
1
5
/16" (33)
RADIUS
2
7
/16" (62)
19
3
/8" (492)
COOKTOP
CUT-OUT DEPTH
SEE COUNTERTOP
CUT-OUT BELOW
7
/16" (11) RADIUS
SEE COUNTERTOP
CUT-OUT BELOW
30
1
/8"*
(
765
)
RECESSED AREA FOR
FLUSH MOUNT INSTALLATION ONLY
FRONT OF COUNTERTOP
1
9
/16" (40)
21
1
/8"*(537)
RECESSED AREA
FOR FLUSH MOUNT
INSTALLATION ONLY
4"min
(102)
4"min
(102)
* Minimum dimension, but may be exceeded by up to 1/8" (3).
RECESSED AREA FOR
FLUSH MOUNT INSTALLATION ONLY
5
/16"
(
24
)
7
/8"
(22) max
COUNTERTOP
PROFILE
30" (762) UNFRAMED
ELECTRIC COOKTOP
Wolf recommends using 33" (838)
cabinets with the 30" (762) cooktop.
The Wolf 30" (762) unframed electric
cooktop can be mounted flush with
the top of the countertop or as a
frameless installation sitting on top of
the countertop surface. In either
installation the cooktop cut-out
dimensions are the same. If it is to be
mounted flush with the countertop,
you will need to provide a recessed
area surrounding the cooktop cut-
out. Refer to the countertop cut-out
dimensions in the illustration.
IMPORTANT NOTE: If the cooktop is
to be mounted flush with the coun-
tertop, fabrication of the recessed
area must take place before the final
countertop installation. A template
for the countertop cut-out will be
provided with the cooktop.
A Wolf 30" (762) single oven may be
installed below the 30" (762)
unframed electric cooktop. Refer to
the illustration for specifics on cut-out
dimensions and electrical placement.
When an oven is installed below the
cooktop, it is recommended that
the electrical supply be placed in the
adjacent base cabinet within the
shaded area shown in the illustration.
The top right area in the oven cavity
is available, but will make installation
difficult. The bottom cabinet support
must be able to support 250 lbs
(113 kg).
WARNING
This cooktop is intended for
indoor use.
The Wolf 30" (762) unframed
electric cooktop requires a separate,
grounded 3-wire 240V, 40 amp
service with its own circuit breaker.
It has a 4' (1.2 m) flexible 3-wire
conduit for connection at the electri-
cal supply.

Related product manuals