EasyManua.ls Logo

Wolf SO30U - Page 51

Wolf SO30U
84 pages
Print Icon
To Next Page IconTo Next Page
To Next Page IconTo Next Page
To Previous Page IconTo Previous Page
To Previous Page IconTo Previous Page
Loading...
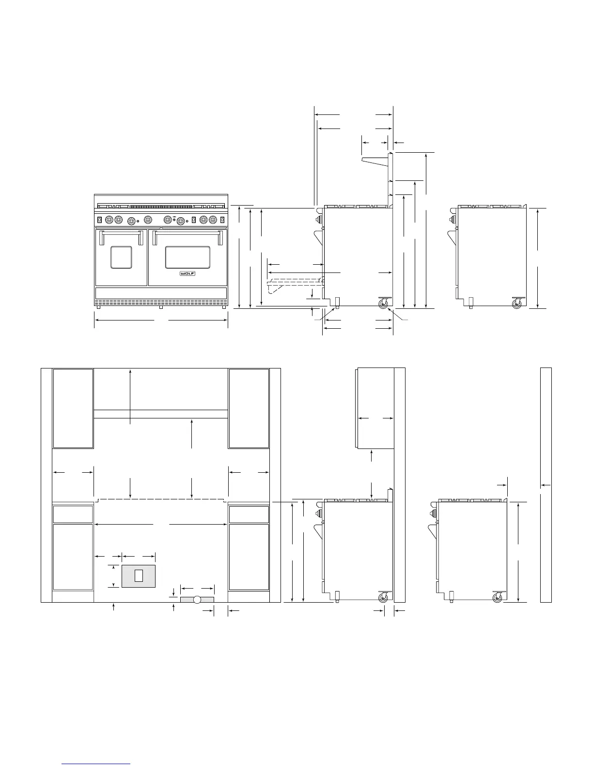
*30"min (762)
SURFACE BURNERS AND
GRIDDLE
*36"min (914)
CHARBROILER
*44"min (1118)
ALL 60" (1524) RANGES
30"(762) TO 36"(914)
COOKING SURFACE TO
BOTTOM OF
VENTILATION HOOD
VENTILATION HOOD
COMBUSTIBLE CONSTRUCTION
18"min (457)
TO COOKING
SURFACE
13"max
(330)
CABINET
DEPTH
**
LOCATION OF GAS SUPPLY EXTENDS
3" (76) ON FLOOR FROM BACK WALL
B
FINISHED ROUGH OPENING WIDTH
COOKING SURFACE
6"min
(152)
TO
COMBUSTIBLE
MATERIALS
6"min
(152)
TO
COMBUSTIBLE
MATERIALS
E
G
ED
5
1
/2"
(140)
5"
(127)
2"
(51)
3"
(76)
8"
(203)
*
MINIMUM DISTANCE FROM COOKING SURFACE
TO BOTTOM OF COMBUSTIBLE CONSTRUCTION
36"max
(914)
37"
(940)
COOKING
SURFACE
36"
(914)
ISLAND INSTALLATION:
NO SIDE WALL OR REAR WALL
ABOVE COOKING SURFACE
PENINSULA INSTALLATION:
NO SIDE WALL ABOVE
COOKING SURFACE
***
12" (305) MINIMUM CLEARANCE TO
COMBUSTIBLE MATERIALS –
0" (0) TO NON-COMBUSTIBLE MATERIALS
***
ISLAND
INSTALLATION
LOCATION OF
ELECTRICAL
C
**
LOCATION OF
GAS SUPPLY
A
OVERALL WIDTH
35
1
/2"
(902)
36"
(914)
36"
(914)
37"
(940)
COOKING
SURFACE
41
3
/4"
(1060)
5" (127)
RISER
10" (254)
RISER
20" (508)
RISER
46
3
/4"
(1187)
56
3
/4"
(1441)
2
1
/2"
(64)
27
1
/4" (692)
28
3
/8" (721)
OVERALL DEPTH
25
1
/4"(641)
24
1
/2" (622)
3" (76) FRONT LEGS WITH
1" (25) HEIGHT ADJUSTMENT
REAR CASTERS ALLOW
1" (25) HEIGHT ADJUSTMENT
43
3
/8" (1102)
19
1
/8" (486)
9
1
/4"
(235)
1
3
/4"
(44)
ISLAND OR PENINSULA
INSTALLATION
51
INSTALLATION DIMENSIONS
W OLF G AS R ANGES
NOTE: Refer to the chart on the previous page for dimensions referenced by letters in the illustrations.
Dimensions in parentheses are in millimeters unless otherwise specified.

Related product manuals