EasyManua.ls Logo

Wolf Sub-Zero ICBIG15/S - Page 11

Wolf Sub-Zero ICBIG15/S
72 pages
Print Icon
To Next Page IconTo Next Page
To Next Page IconTo Next Page
To Previous Page IconTo Previous Page
To Previous Page IconTo Previous Page
Loading...
11
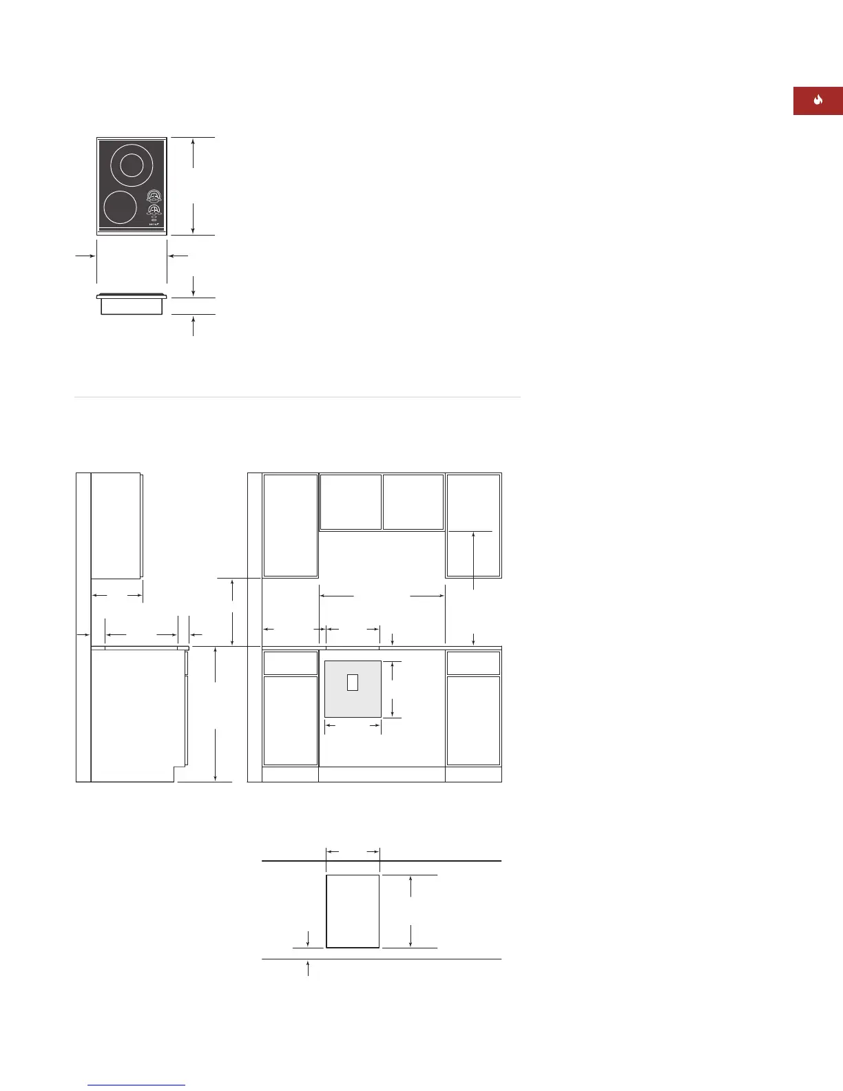
E
102 mm
381 mm
381
mm
51 mm min*
CUT-OUT TO
COMBUSTIBLE
MATERIALS
(BOTH SIDES)
340 mm
COOKTOP CUT-OUT
WIDTH
340 mm
COOKTOP CUT-OUT
WIDTH
838 mm
RECOMMENDED
CABINET WIDTH
457 mm
NOTE: Application shown allows for installation of two 381 mm modules side-by-side with 838 mm recommended cabinet width. 457 mm
recommended cabinet width for installation of single 381 mm cooktop or module. *Minimum clearance from both side edges of cooktop cut-out
to combustible materials up to 457 mm above countertop. **Minimum clearance from rear edge of cooktop cut-out to combustible materials up
to 457 mm above countertop.
489 mm
COOKTOP CUT-OUT
DEPTH
64 mm
min
914 mm
STANDARD
FLOOR TO
COUNTERTOP
HEIGHT
330 mm
max
762 mm
COUNTERTOP TO
COMBUSTIBLE
MATERIALS
ABOVE COOKTOP
FRONT OF COUNTERTOP
64 mm
min
489 mm
COOKTOP
CUT-OUT DEPTH
51**
mm
533 mm
OVERALL
DEPTH
381 mm
OVERALL WIDTH
89 mm
OVERALL DIMENSIONS
Model ICT15E/S
INSTALLATION SPECIFICATIONS
Model ICT15E/S
Countertop Cut-Out Dimensions
WOLF ELECTRIC COOKTOPS
SPECIFICATIONS
381 mm Framed Electric Cooktop
Overall Width 381 mm
Overall Height 89 mm
Overall Depth 533 mm
Heating Elements Two
Temperature Zones Three
Max Element Power 750 W / 2200 W
(dual)
Max Element Power 1200 W
(single)
Cabinet Depth 578 mm min
Height Clearance 102 mm min
Cut-Out Width* 340 mm
Cut-Out Depth 489 mm
Electrical Supply 220-240 V AC, 50/60 Hz
15 amp dedicated circuit
Conduit 1.2 m flexible 3-wire
Electrical Rating 3.4 kW at 240 V
Shipping Weight 14 kg
*If the 381 mm cooktop is to be used with
any combination of additional cooktop units or
modules with a filler strip, the cut-out width
increases to 356 mm.
The outer diameter of the heating elements are
229 mm and 165 mm.
Unit dimensions may vary to ± 3 mm.
INSTALLATION
Refer to installation
instructions shipped with
each Wolf product for
detailed specifications.
MODEL OPTIONS
381 mm Framed Electric Cooktop
Classic Trim Finish ICT15E/S

Related product manuals