EasyManua.ls Logo

Wolf Sub-Zero ICBIG15/S - Page 12

Wolf Sub-Zero ICBIG15/S
72 pages
Print Icon
To Next Page IconTo Next Page
To Next Page IconTo Next Page
To Previous Page IconTo Previous Page
To Previous Page IconTo Previous Page
Loading...
12
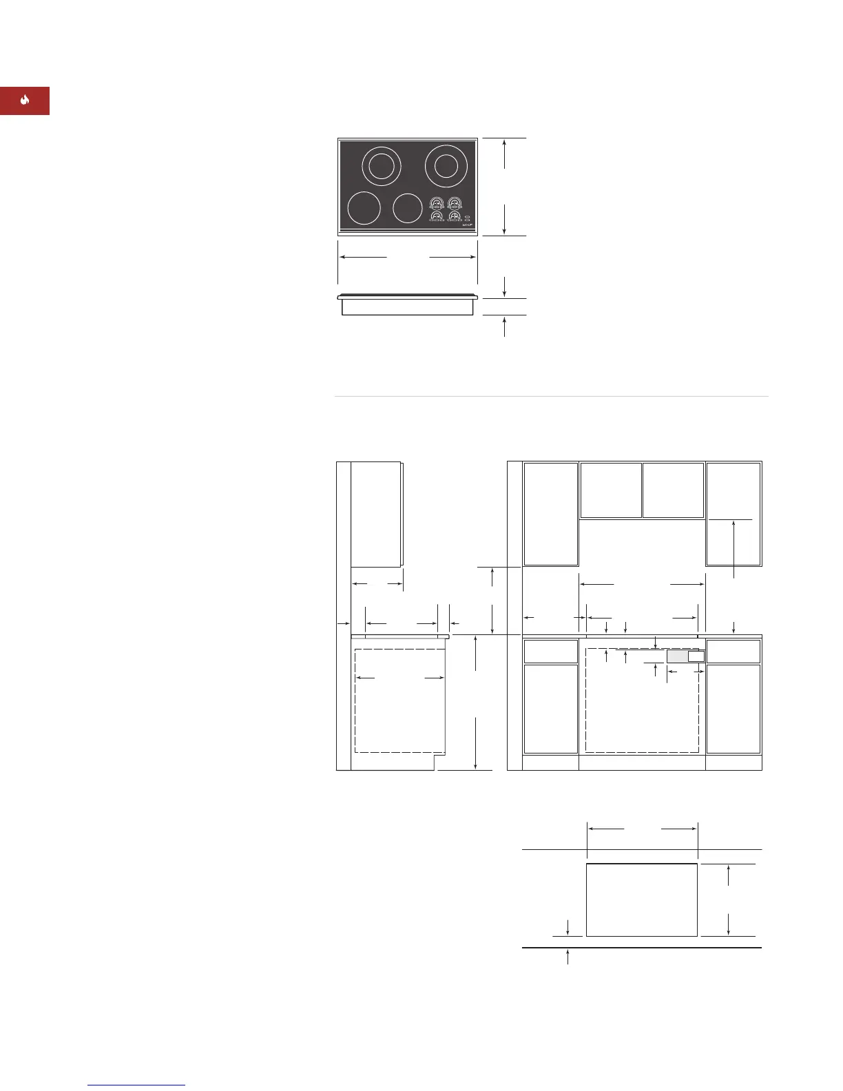
51 mm min*
CUT-OUT TO
COMBUSTIBLE
MATERIALS
(BOTH SIDES)
457
mm
489 mm
COOKTOP CUT-OUT
DEPTH
64 mm
min
914 mm
STANDARD
FLOOR TO
COUNTERTOP
HEIGHT
330 mm
max
762 mm
COUNTERTOP TO
COMBUSTIBLE
MATERIALS
ABOVE COOKTOP
610 mm min
*Minimum clearance from both side edges of cooktop cut-out to combustible materials up to 457 mm above countertop.
**Minimum clearance from rear edge of cooktop cut-out to combustible materials up to 457 mm above countertop.
102 mm
254
mm
89 mm
95 mm
min
762 mm OVEN OPENING
E
721 mm COOKTOP
CUT-OUT WIDTH
721 mm
COOKTOP CUT-OUT WIDTH
FRONT OF COUNTERTOP
64 mm
min
489 mm
COOKTOP
CUT-OUT DEPTH
838 mm
RECOMMENDED
CABINET WIDTH
762 mm min
51**
mm
533 mm
OVERALL
DEPTH
762 mm
OVERALL WIDTH
89 mm
Countertop Cut-Out Dimensions
OVERALL DIMENSIONS
762 mm Framed Electric Cooktop
INSTALLATION SPECIFICATIONS
762 mm Framed Electric Cooktop
SPECIFICATIONS
762 mm Framed Electric Cooktop
Overall Width 762 mm
Overall Height 89 mm
Overall Depth 533 mm
Heating Elements Four
Temperature Zones Six
Max Element Power 750 W / 2200 W and
(two dual) 950 W / 1900 W
Max Element Power 1200 W and 1500 W
(two single)
Cabinet Width 838 mm rec
762 mm min
Cabinet Depth 578 mm min
Height Clearance 102 mm min
Cut-Out Width* 721 mm
Cut-Out Depth 489 mm
Electrical Supply 220-240 V AC, 50/60 Hz
40 amp dedicated circuit
Conduit 1.2 m flexible 3-wire
Electrical Rating 6.8 kW at 240 V
Shipping Weight 20 kg
*If the 762 mm cooktop is to be used with
any combination of additional cooktop units or
modules with a filler strip, the cut-out width
increases to 737 mm.
The outer diameter of the heating elements are
229 mm, 216 mm, 179 mm and 165 mm.
WOLF ELECTRIC COOKTOPS
INSTALLATION OPTIONS
A Wolf 762 mm single oven may be installed
below the Wolf 762 mm framed electric
cooktop. For this installation, unless you are
using cabinets deeper than 610 mm, it is
recommended that the electrical supply be
placed in the base cabinet to the right of the
oven. A Wolf 914 mm single oven may also
be installed below the Wolf 762 mm framed
electric cooktop. Refer to pages 6 and 7 for
additional specifications.
Refer to installation instructions shipped with
each Wolf product for detailed specifications.
Unit dimensions may vary to ± 3 mm.
MODEL OPTIONS
762 mm Framed Electric Cooktop
Classic Trim Finish ICT30E/S

Related product manuals