EasyManua.ls Logo

Wolf Sub-Zero ICBIG15/S - Page 13

Wolf Sub-Zero ICBIG15/S
72 pages
Print Icon
To Next Page IconTo Next Page
To Next Page IconTo Next Page
To Previous Page IconTo Previous Page
To Previous Page IconTo Previous Page
Loading...
13
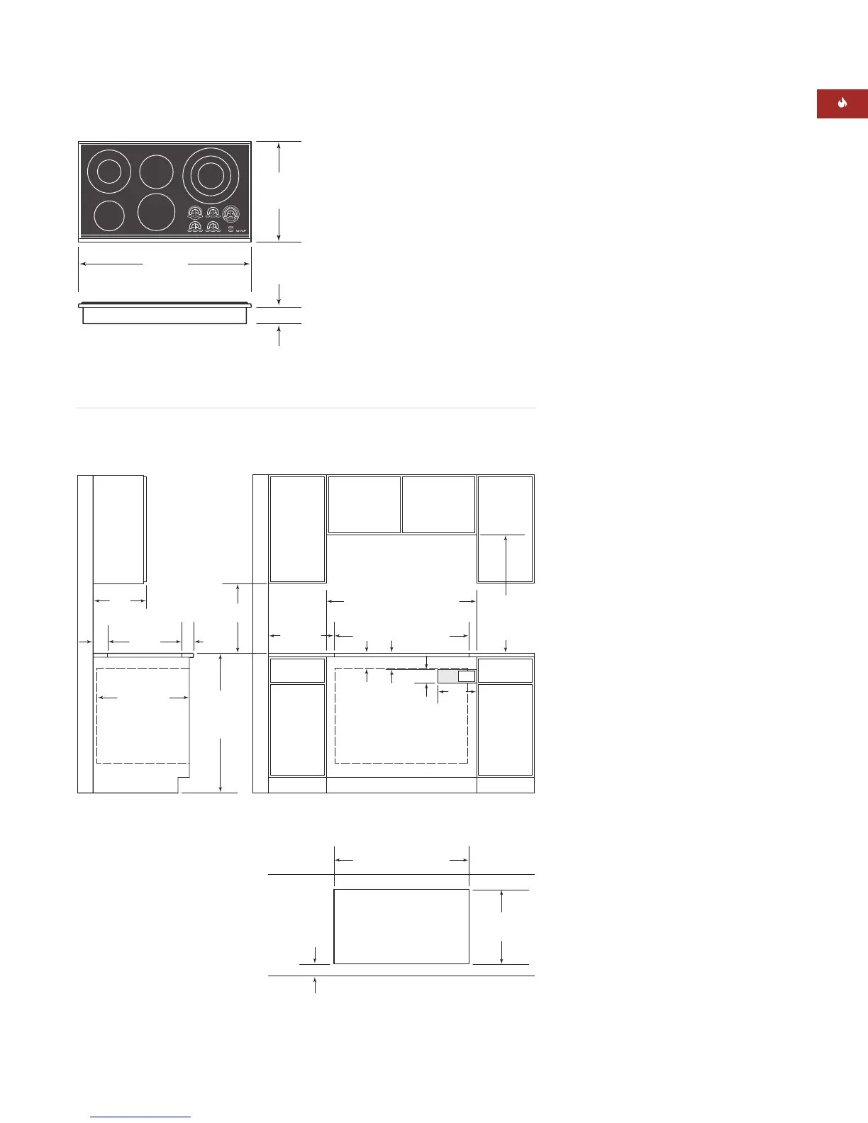
51 mm min*
CUT-OUT TO
COMBUSTIBLE
MATERIALS
(BOTH SIDES)
457
mm
489 mm
COOKTOP CUT-OUT
DEPTH
64 mm
min
914 mm
STANDARD
FLOOR TO
COUNTERTOP
HEIGHT
330 mm
max
762 mm
COUNTERTOP TO
COMBUSTIBLE
MATERIALS
ABOVE COOKTOP
610 mm min
*Minimum clearance from both side edges of cooktop cut-out to combustible materials up to 457 mm above countertop.
**Minimum clearance from rear edge of cooktop cut-out to combustible materials up to 457 mm above countertop.
873 mm
COOKTOP CUT-OUT WIDTH
873 mm
COOKTOP CUT-OUT WIDTH
991 mm
RECOMMENDED CABINET WIDTH
914 mm min
102 mm
254
mm
89 mm
914 mm OVEN OPENING
95 mm
min
E
64 mm
min
FRONT OF COUNTERTOP
489 mm
COOKTOP
CUT-OUT DEPTH
51**
mm
533 mm
OVERALL
DEPTH
914 mm
OVERALL WIDTH
89 mm
OVERALL DIMENSIONS
914 mm Framed Electric Cooktop
INSTALLATION SPECIFICATIONS
914 mm Framed Electric Cooktop
Countertop Cut-Out Dimensions
WOLF ELECTRIC COOKTOPS
SPECIFICATIONS
914 mm Framed Electric Cooktop
Overall Width 914 mm
Overall Height 89 mm
Overall Depth 533 mm
Heating Elements Five
Temperature Zones Eight
Max Element Power 1050 W / 2200 W /
(triple) 2700 W
Max Element Power 750 W / 2200 W
(dual)
Max Element Power 1200 W, 1500 W
(three single) and 1800 W
Cabinet Width 991 mm rec
914 mm min
Cabinet Depth 578 mm min
Height Clearance 102 mm min
Cut-Out Width* 873 mm
Cut-Out Depth 489 mm
Electrical Supply 220-240 V AC, 50/60 Hz
50 amp dedicated circuit
Conduit 1.2 m flexible 3-wire
Electrical Rating 9.4 kW at 240 V
Shipping Weight 27 kg
*If the 914 mm cooktop is to be used with
any combination of additional cooktop units or
modules with a filler strip, the cut-out width
increases to 889 mm.
The outer diameter of the heating elements
are 302 mm, 232 mm, 200 mm, 181 mm and
165 mm.
INSTALLATION OPTIONS
A Wolf 914 mm single oven may be installed
below the Wolf 914 mm framed electric
cooktop. For this installation, unless you are
using cabinets deeper than 610 mm, it is
recommended that the electrical supply be
placed in the base cabinet to the right of the
oven. A Wolf 762 mm single oven may also
be installed below the Wolf 914 mm framed
electric cooktop. Refer to pages 6 and 7 for
additional specifications.
When a 914 mm oven is installed below a
cooktop, it is recommended that the rough
opening for the oven be 197 mm from the
floor to ease the use of the oven door.
Unit dimensions may vary to ± 3 mm.
MODEL OPTIONS
914 mm Framed Electric Cooktop
Classic Trim Finish ICT36E/S

Related product manuals