EasyManua.ls Logo

Wolf Sub-Zero ICBIG15/S - Page 17

Wolf Sub-Zero ICBIG15/S
72 pages
Print Icon
To Next Page IconTo Next Page
To Next Page IconTo Next Page
To Previous Page IconTo Previous Page
To Previous Page IconTo Previous Page
Loading...
17
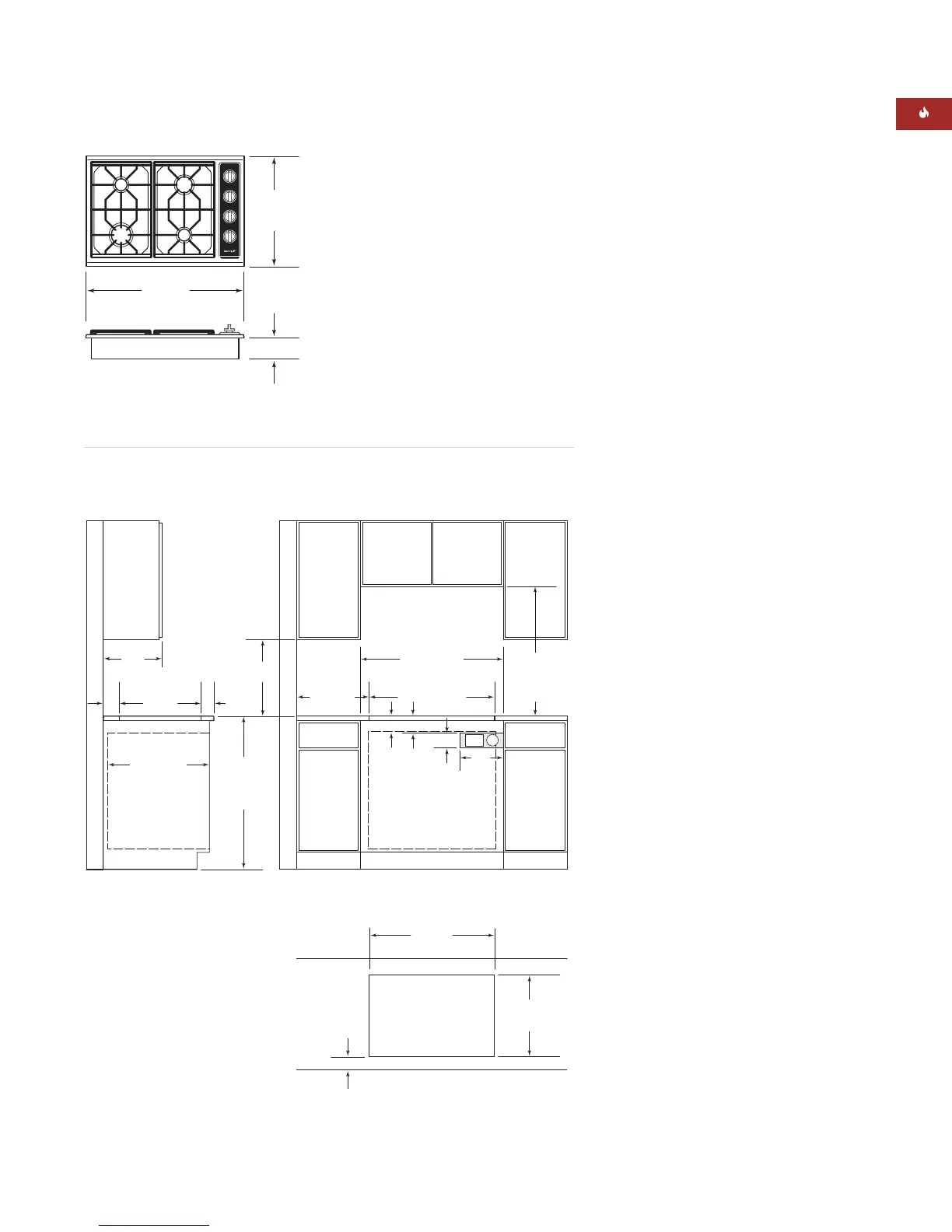
WOLF GAS COOKTOPS
229 mm min*
CUT-OUT TO
COMBUSTIBLE
MATERIALS
(BOTH SIDES)
457
mm
489 mm
COOKTOP CUT-OUT
DEPTH
64 mm
min
914 mm
STANDARD
FLOOR TO
COUNTERTOP
HEIGHT
330 mm
max
762 mm
COUNTERTOP TO
COMBUSTIBLE
MATERIALS
ABOVE COOKTOP
64**
mm
610 mm min
*Minimum clearance from both side edges of cooktop cut-out to combustible materials up to 457 mm above countertop.
**Minimum clearance from rear edge of cooktop cut-out to combustible materials up to 457 mm above countertop.
102 mm
254
mm
89 mm
E
95 mm
min
G
762 mm OVEN OPENING
737 mm COOKTOP
CUT-OUT WIDTH
737 mm
COOKTOP CUT-OUT WIDTH
FRONT OF COUNTERTOP
64 mm
min
489 mm
COOKTOP
CUT-OUT DEPTH
838 mm
RECOMMENDED
CABINET WIDTH
762 mm min
533 mm
OVERALL
DEPTH
762 mm
OVERALL WIDTH
102 mm
Countertop Cut-Out Dimensions
OVERALL DIMENSIONS
762 mm Gas Cooktop
INSTALLATION SPECIFICATIONS
762 mm Gas Cooktop
SPECIFICATIONS
762 mm Gas Cooktop
Overall Width 762 mm
Overall Height 102 mm
Overall Depth 533 mm
Burner Rating (1) 5.0 kW with .2 kW
delivered at simmer
(1) 4.0 kW with .2 kW
delivered at simmer
(2) 3.2 kW with .1 kW
delivered at simmer
Cabinet Width 838 mm rec
762 mm min
Cabinet Depth 578 mm min
Height Clearance 102 mm min
Cut-Out Width 737 mm
Cut-Out Depth 489 mm
Electrical Supply 220-240 V AC, 50/60 Hz
15 amp dedicated circuit
Gas Rating 15.4 kW
Shipping Weight 23 kg
Unit dimensions may vary to ± 3 mm.
INSTALLATION OPTIONS
A Wolf 762 mm single oven may be installed
below the Wolf 762 mm gas cooktop. For this
installation, unless you are using cabinets
deeper than 610 mm, it is recommended that
the electrical and gas supply be placed in the
base cabinet to the right of the oven. Refer
to page 6 for additional specifications.
Unit dimensions may vary to ± 3 mm.
MODEL OPTIONS
762 mm Gas Cooktop
Classic / Natural Gas
ICBCT30G/S
Classic / LP Gas ICBCT30G/S-LP

Related product manuals