EasyManua.ls Logo

Wolf Sub-Zero ICBIG15/S - Page 18

Wolf Sub-Zero ICBIG15/S
72 pages
Print Icon
To Next Page IconTo Next Page
To Next Page IconTo Next Page
To Previous Page IconTo Previous Page
To Previous Page IconTo Previous Page
Loading...
18
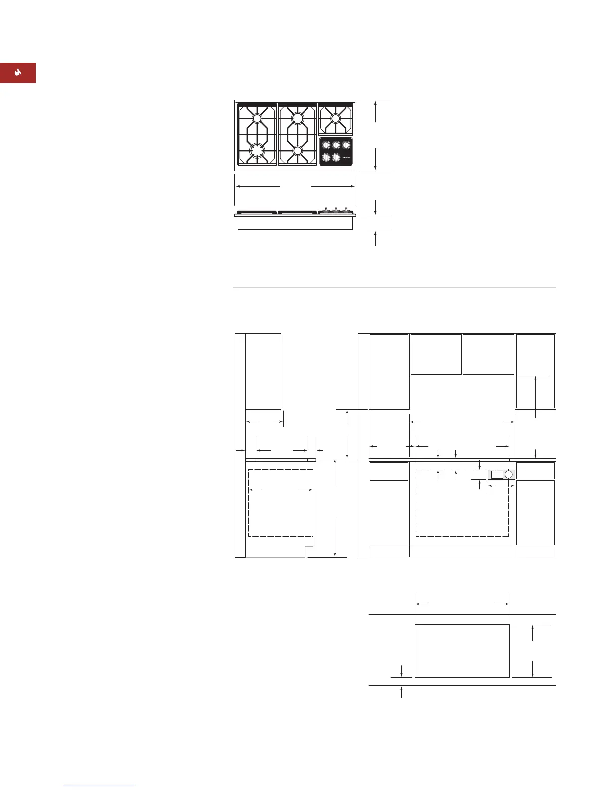
WOLF GAS COOKTOPS
229 mm min*
CUT-OUT TO
COMBUSTIBLE
MATERIALS
(BOTH SIDES)
457
mm
489 mm
COOKTOP CUT-OUT
DEPTH
64 mm
min
914 mm
STANDARD
FLOOR TO
COUNTERTOP
HEIGHT
330 mm
max
762 mm
COUNTERTOP TO
COMBUSTIBLE
MATERIALS
ABOVE COOKTOP
64**
mm
610 mm min
*Minimum clearance from both side edges of cooktop cut-out to combustible materials up to 457 mm above countertop.
**Minimum clearance from rear edge of cooktop cut-out to combustible materials up to 457 mm above countertop.
889 mm
COOKTOP CUT-OUT WIDTH
889 mm
COOKTOP CUT-OUT WIDTH
991 mm
RECOMMENDED CABINET WIDTH
914 mm min
102 mm
254
mm
89 mm
E
G
914 mm OVEN OPENING
95 mm
min
64 mm
min
FRONT OF COUNTERTOP
489 mm
COOKTOP
CUT-OUT DEPTH
533 mm
OVERALL
DEPTH
914 mm
OVERALL WIDTH
102 mm
OVERALL DIMENSIONS
914 mm Gas Cooktop
INSTALLATION SPECIFICATIONS
914 mm Gas Cooktop
Countertop Cut-Out Dimensions
SPECIFICATIONS
914 mm Gas Cooktop
Overall Width 914 mm
Overall Height 102 mm
Overall Depth 533 mm
Burner Rating (1) 5.0 kW with .2 kW
delivered at simmer
(1) 4.0 kW with .2 kW
delivered at simmer
(3) 3.2 kW with .1 kW
delivered at simmer
Cabinet Width 991 mm rec
914 mm min
Cabinet Depth 578 mm min
Height Clearance 102 mm min
Cut-Out Width 889 mm
Cut-Out Depth 489 mm
Electrical Supply 220-240 V AC, 50/60 Hz
15 amp dedicated circuit
Gas Rating 18.6 kW
Shipping Weight 30 kg
INSTALLATION OPTIONS
A Wolf 914 mm single oven may be installed
below the Wolf 914 mm gas cooktop. For this
installation, unless you are using cabinets
deeper than 610 mm, it is recommended that
the electrical and gas supply be placed in the
base cabinet to the right of the oven. A Wolf
762 mm single oven may also be installed
below the Wolf 914 mm gas cooktop. Refer
to pages 6 and 7 for additional specifications.
When a 914 mm oven is installed below a
cooktop, it is recommended that the rough
opening for the oven be 197 mm from the
floor to ease the use of the oven door.
Refer to installation instructions shipped with
each Wolf product for detailed specifications.
Unit dimensions may vary to ± 3 mm.
MODEL OPTIONS
914 mm Gas Cooktop
Classic / Natural Gas
ICBCT36G/S
Classic / LP Gas ICBCT36G/S-LP

Related product manuals