EasyManua.ls Logo

Wolf Sub-Zero ICBIG15/S - Page 37

Wolf Sub-Zero ICBIG15/S
72 pages
Print Icon
To Next Page IconTo Next Page
To Next Page IconTo Next Page
To Previous Page IconTo Previous Page
To Previous Page IconTo Previous Page
Loading...
37
WOLF DUAL FUEL RANGES
SPECIFICATIONS
914 mm Dual Fuel Range
Overall Width 911 mm
Overall Height
(to cooking surface) 937 mm
Overall Depth 749 mm
Overall Oven
Interior Capacity 153 L
Overall Interior Dim 762 mm x 419 mm
(W x H x D) x 483 mm
Usable Interior Dim 673 mm x 419 mm
(W x H x D) x 416 mm
Opening Width 914 mm
Electrical Supply 220-240 V AC, 50/60 Hz
30 amp dedicated
circuit
Electrical Rating 5.2 kW at 240 V
Total Amps 21.7
Shipping Weight 202213 kg
MODEL OPTIONS
914 mm Dual Fuel Range
Four Surface Burners
Charbroiler IDF364C
Griddle IDF364G
Natural gas models listed;
for LP gas add (-LP) to the
model number.
IMPORTANT NOTE: A
minimum 254 mm riser is
required when installing a
914 mm dual fuel range
with a charbroiler or griddle
against a combustible
surface.
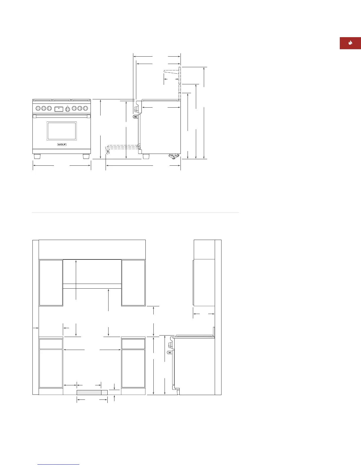
INSTALLATION
Refer to installation
instructions shipped with
each Wolf product for
detailed specifications.
483 mm
LOCATION OF
ELECTRICAL
914 mm
937 mm
TO
COOKING
SURFACE
VENTILATION HOOD
457 mm min
TO COUNTERTOP
LOCATION OF GAS AND
ELECTRICAL EXTENDS 76 mm
ON FLOOR FROM BACK WALL
914 mm
FINISHED ROUGH OPENING WIDTH
83 mm
216
mm
381 mm
LOCATION
OF GAS
SUPPLY
762 mm min TO
914 mm max
TO BOTTOM OF
VENTILATION HOOD
914 mm min
COUNTERTOP
TO COMBUSTIBLE
MATERIALS
1118 mm min
FOR CHARBROILER
ISLAND INSTALLATIONS: 305 mm MINIMUM
CLEARANCE FROM BACK OF RANGE TO
COMBUSTIBLE REAR WALL ABOVE COUNTERTOP
0 mm TO NON-COMBUSTIBLE MATERIALS
330 mm
max
152 mm min
TO
COMBUSTIBLE
MATERIALS
(BOTH SIDES)
911 mm
OVERALL WIDTH
1064
mm
WITH
127 mm
RISER
1191
mm
WITH
254 mm
RISER
1445
mm
WITH
508 mm
RISER
1194 mm
616 mm
699 mm
235
mm
749 mm
OVERALL DEPTH
LEGS AND CASTERS ALLOW
54 mm HEIGHT ADJUSTMENT
911 mm
937 mm
OVERALL
HEIGHT TO
COOKING
SURFACE
INSTALLATION SPECIFICATIONS
914 mm Dual Fuel Range
OVERALL DIMENSIONS
914 mm Dual Fuel Range
Unit dimensions may vary to ± 3 mm.

Related product manuals