EasyManua.ls Logo

Wolf Sub-Zero ICBIG15/S - Page 38

Wolf Sub-Zero ICBIG15/S
72 pages
Print Icon
To Next Page IconTo Next Page
To Next Page IconTo Next Page
To Previous Page IconTo Previous Page
To Previous Page IconTo Previous Page
Loading...
38
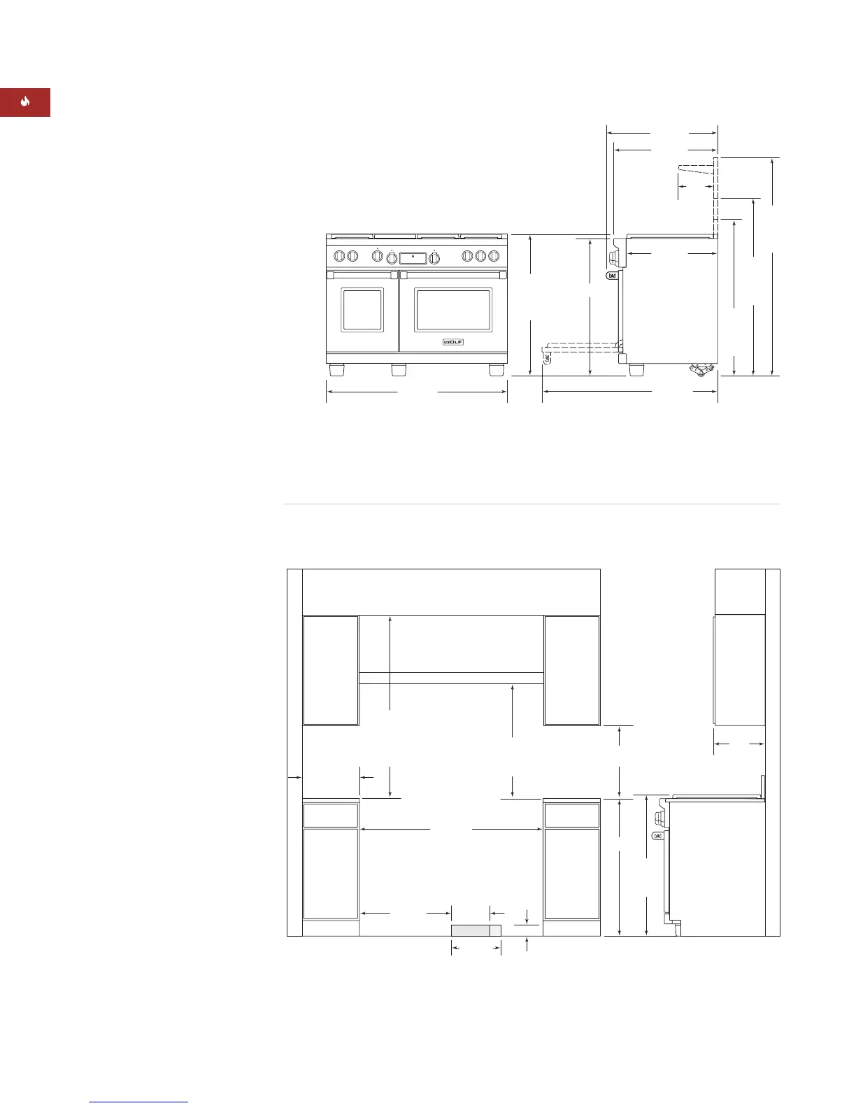
330 mm
LOCATION OF
ELECTRICAL
914 mm
937 mm
TO
COOKING
SURFACE
VENTILATION HOOD
LOCATION OF GAS AND
ELECTRICAL EXTENDS 76 mm
ON FLOOR FROM BACK WALL
ISLAND INSTALLATIONS: 305 mm MINIMUM
CLEARANCE FROM BACK OF RANGE TO
COMBUSTIBLE REAR WALL ABOVE COUNTERTOP
0 mm TO NON-COMBUSTIBLE MATERIALS
1219 mm
FINISHED ROUGH OPENING WIDTH
610 mm
83 mm
254 mm
LOCATION
OF GAS
SUPPLY
457 mm min
TO COUNTERTOP
762 mm min TO
914 mm max
TO BOTTOM OF
VENTILATION HOOD
914 mm min
COUNTERTOP
TO COMBUSTIBLE
MATERIALS
1118 mm min
FOR CHARBROILER
330 mm
max
152 mm min
TO
COMBUSTIBLE
MATERIALS
(BOTH SIDES)
1216 mm
OVERALL WIDTH
1064
mm
WITH
127 mm
RISER
1191
mm
WITH
254 mm
RISER
1445
mm
WITH
508 mm
RISER
1194 mm
616 mm
699 mm
235
mm
749 mm
OVERALL DEPTH
LEGS AND CASTERS ALLOW
54 mm HEIGHT ADJUSTMENT
911 mm
937 mm
OVERALL
HEIGHT TO
COOKING
SURFACE
INSTALLATION SPECIFICATIONS
1219 mm Dual Fuel Range
OVERALL DIMENSIONS
1219 mm Dual Fuel Range
SPECIFICATIONS
1219 mm Dual Fuel Range
Overall Width 1216 mm
Overall Height
(to cooking surface) 937 mm
Overall Depth 749 mm
Large Oven
Overall Interior Cap 127 L
Overall Interior Dim 635 mm x 419 mm
(W x H x D) x 483 mm
Usable Interior Dim 546 mm x 419 mm
(W x H x D) x 416 mm
Small Oven
Overall Interior Cap 71 L
Overall Interior Dim 356 mm x 419 mm
(W x H x D) x 483 mm
Usable Interior Dim 295 mm x 419 mm
(W x H x D) x 416 mm
Opening Width 1219 mm
Electrical Supply 220-240 V AC, 50/60 Hz
50 amp dedicated
circuit
Electrical Rating 10.2 kW at 240 V
Total Amps 42.5
Shipping Weight 302340 kg
MODEL OPTIONS
1219 mm Dual Fuel Range
Six Surface Burners
Charbroiler IDF486C
Griddle IDF486G
Four Surface Burners
Charbroiler and
Griddle IDF484CG
French Top IDF484F
Natural gas models listed;
for LP gas add (-LP) to the
model number.
IMPORTANT NOTE: A
minimum 254 mm riser is
required for all 1219 mm dual
fuel range models installed
against a combustible surface.
Unit dimensions may vary to ± 3 mm.
WOLF DUAL FUEL RANGES

Related product manuals