EasyManua.ls Logo

Wolf Sub-Zero ICBIG15/S - Page 39

Wolf Sub-Zero ICBIG15/S
72 pages
Print Icon
To Next Page IconTo Next Page
To Next Page IconTo Next Page
To Previous Page IconTo Previous Page
To Previous Page IconTo Previous Page
Loading...
39
WOLF DUAL FUEL RANGES
SPECIFICATIONS
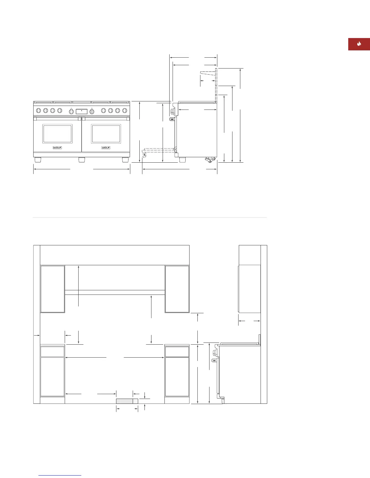
1524 mm Dual Fuel Range
Overall Width 1527 mm
Overall Height
(to cooking surface) 937 mm
Overall Depth 749 mm
Overall Oven Interior
Capacity (per oven) 127 L
Overall Interior Dim 635 mm x 419 mm
(W x H x D) x 483 mm each
Usable Interior Dim 546 mm x 419 mm
(W x H x D) x 416 mm each
Opening Width 1530 mm
Electrical Supply 220-240 V AC, 50/60 Hz
50 amp dedicated
circuit
Electrical Rating 10.2 kW at 240 V
Total Amps 42.5
Shipping Weight 397431 kg
MODEL OPTIONS
1524 mm Dual Fuel Range
Six Surface Burners
French Top IDF606F
Charbroiler and
Griddle IDF606CG
Natural gas models listed;
for LP gas add (-LP) to the
model number.
IMPORTANT NOTE: A
minimum 254 mm riser is
required for all 1524 mm dual
fuel range models installed
against a combustible surface.
INSTALLATION
Refer to installation
instructions shipped with
each Wolf product for
detailed specifications.
330 mm
LOCATION OF
ELECTRICAL
914 mm
937 mm
TO
COOKING
SURFACE
VENTILATION HOOD
LOCATION OF GAS AND
ELECTRICAL EXTENDS 76 mm
ON FLOOR FROM BACK WALL
83 mm
787 mm
254 mm
LOCATION
OF GAS
SUPPLY
1530 mm
FINISHED ROUGH OPENING WIDTH
457 mm min
TO COUNTERTOP
762 mm min TO
914 mm max
TO BOTTOM OF
VENTILATION HOOD
914 mm min
COUNTERTOP
TO COMBUSTIBLE
MATERIALS
1118 mm min
FOR CHARBROILER
ISLAND INSTALLATIONS: 305 mm MINIMUM
CLEARANCE FROM BACK OF RANGE TO
COMBUSTIBLE REAR WALL ABOVE COUNTERTOP
0 mm TO NON-COMBUSTIBLE MATERIALS
330 mm
max
152 mm min
TO
COMBUSTIBLE
MATERIALS
(BOTH SIDES)
1527 mm
OVERALL WIDTH
1064
mm
WITH
127 mm
RISER
1191
mm
WITH
254 mm
RISER
1445
mm
WITH
508 mm
RISER
1194 mm
616 mm
699 mm
235
mm
749 mm
OVERALL DEPTH
LEGS AND CASTERS ALLOW
54 mm HEIGHT ADJUSTMENT
911 mm
937 mm
OVERALL
HEIGHT TO
COOKING
SURFACE
INSTALLATION SPECIFICATIONS
1524 mm Dual Fuel Range
OVERALL DIMENSIONS
1524 mm Dual Fuel Range
Unit dimensions may vary to ± 3 mm.

Related product manuals