EasyManua.ls Logo

Wolf Sub-Zero ICBIG15/S - Page 43

Wolf Sub-Zero ICBIG15/S
72 pages
Print Icon
To Next Page IconTo Next Page
To Next Page IconTo Next Page
To Previous Page IconTo Previous Page
To Previous Page IconTo Previous Page
Loading...
43
WOLF SEALED BURNER RANGETOPS
MODEL OPTIONS
762 mm Sealed Burner
Rangetops
Four Surface
Burners ICBSRT304
Natural gas model listed;
for LP gas add (-LP) to the
model number.
INSTALLATION
Refer to installation
instructions shipped with
each Wolf product for
detailed specifications.
SPECIFICATIONS
762 mm Sealed Burner Rangetop
Overall Width 759 mm
Overall Height
(to cooking surface) 216 mm
Overall Depth 724 mm
Opening Width 762 mm
Opening Height 191 mm
(platform to countertop)
Opening Depth 1219 mm
Electrical Supply 220-240 V AC
50/60 Hz, 15 amp
dedicated circuit
Shipping Weight 73 kg
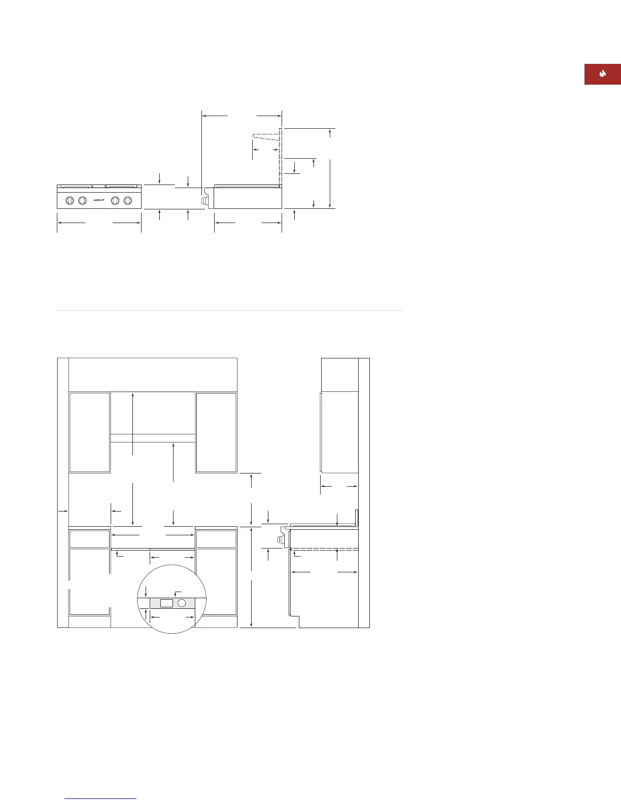
VENTILATION
HOOD
762 mm
OPENING WIDTH
762 mm min
TO 914 mm max
TO BOTTOM OF
VENTILATION HOOD
762 mm min
COUNTERTOP
TO COMBUSTIBLE
MATERIALS
19 mm
PLATFORM
TOP VIEW
OF PLATFORM
E
G
406 mm
406 mm
102 mm
BACK
WALL
ISLAND INSTALLATIONS: 305 mm MINIMUM
CLEARANCE FROM BACK OF RANGETOP TO
COMBUSTIBLE REAR WALL ABOVE COUNTERTOP–
0 mm TO NON-COMBUSTIBLE MATERIALS
LOCATION OF GAS AND
ELECTRICAL SUPPLY CUT-OUT
WITHIN SHADED AREA
THROUGH BOTTOM OF
PLATFORM
914 mm
457 mm min
TO COUNTERTOP
19 mm
PLATFORM
216
mm
COOKING
SURFACE
191 mm
610 mm
330 mm
max
152 mm min
TO
COMBUSTIBLE
MATERIALS
(BOTH SIDES)
759 mm
OVERALL WIDTH
616 mm
318
mm
WITH
127 mm
RISER
445
mm
WITH
254 mm
RISER
699 mm
WITH 508 mm
RISER
724 mm
OVERALL DEPTH
216 mm
OVERALL
HEIGHT
COOKING
SURFACE
191
mm
235
mm
INSTALLATION SPECIFICATIONS
762 mm Sealed Burner Rangetop
OVERALL DIMENSIONS
762 mm Sealed Burner Rangetop
Unit dimensions may vary to ± 3 mm.

Related product manuals