EasyManua.ls Logo

Wolf Sub-Zero ICBIG15/S - Page 44

Wolf Sub-Zero ICBIG15/S
72 pages
Print Icon
To Next Page IconTo Next Page
To Next Page IconTo Next Page
To Previous Page IconTo Previous Page
To Previous Page IconTo Previous Page
Loading...
44
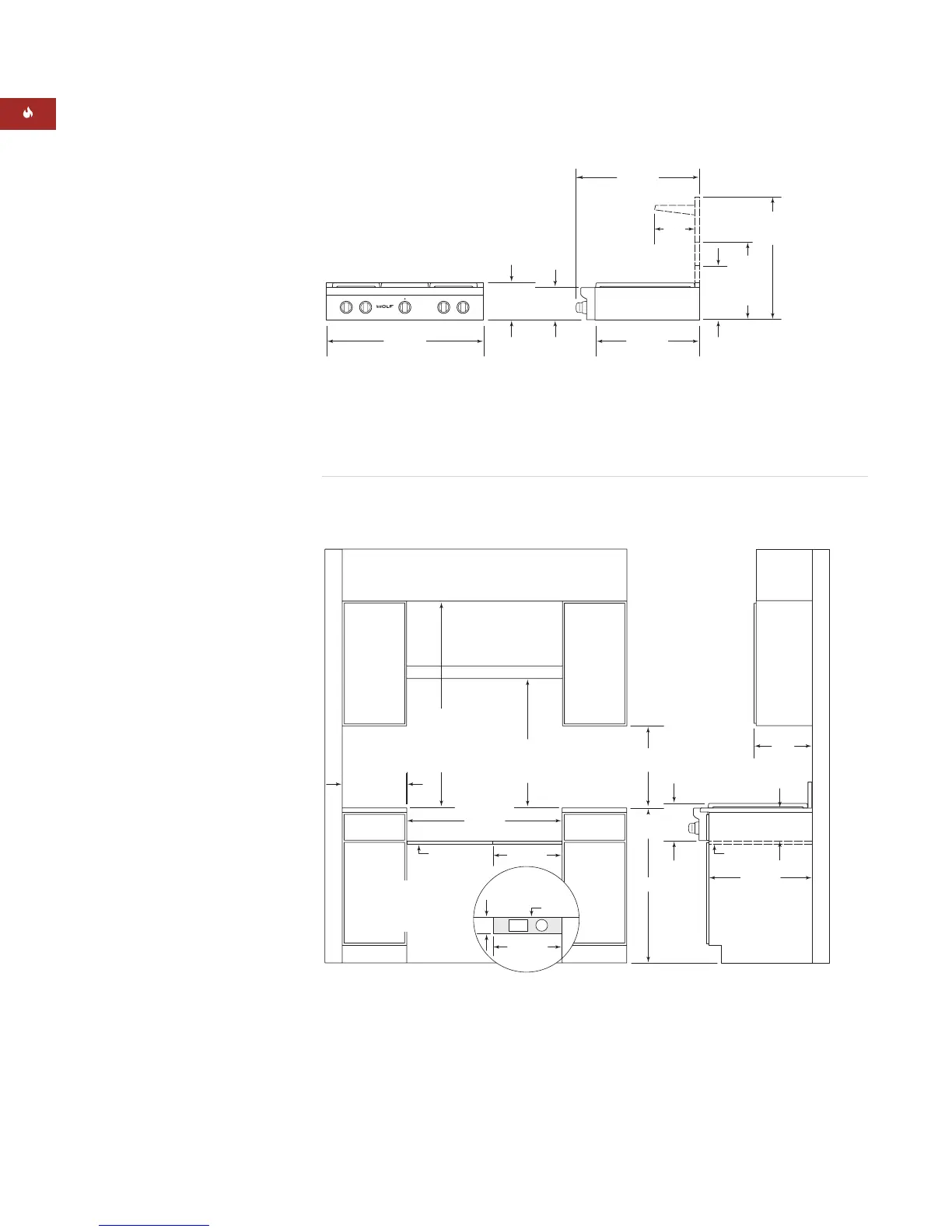
VENTILATION HOOD
914 mm
FINISHED ROUGH OPENING WIDTH
762 mm min TO
914 mm min
TO BOTTOM OF
VENTILATION HOOD
914 mm min
COUNTERTOP
TO COMBUSTIBLE
MATERIALS
1118 mm min
FOR CHARBROILER
19 mm
PLATFORM
TOP VIEW
OF PLATFORM
E
G
406 mm
406 mm
102 mm
BACK
WALL
ISLAND INSTALLATIONS: 305 mm MINIMUM
CLEARANCE FROM BACK OF RANGETOP TO
COMBUSTIBLE REAR WALL ABOVE COUNTERTOP–
0 mm TO NON-COMBUSTIBLE MATERIALS
LOCATION OF GAS AND
ELECTRICAL SUPPLY CUT-OUT
WITHIN SHADED AREA
THROUGH BOTTOM OF
PLATFORM
914 mm
457 mm min
TO COUNTERTOP
19 mm
PLATFORM
216
mm
COOKING
SURFACE
191 mm
610 mm
330 mm
max
152 mm min
TO
COMBUSTIBLE
MATERIALS
(BOTH SIDES)
911 mm
OVERALL WIDTH
616 mm
318
mm
WITH
127 mm
RISER
445
mm
WITH
254 mm
RISER
699 mm
WITH 508 mm
RISER
724 mm
OVERALL DEPTH
216 mm
OVERALL
HEIGHT
COOKING
SURFACE
191
mm
235
mm
INSTALLATION SPECIFICATIONS
914 mm Sealed Burner Rangetop
OVERALL DIMENSIONS
914 mm Sealed Burner Rangetop
Unit dimensions may vary to ± 3 mm.
SPECIFICATIONS
914 mm Sealed Burner Rangetop
Overall Width 911 mm
Overall Height
(to cooking surface) 216 mm
Overall Depth 724 mm
Opening Width 914 mm
Opening Height 191 mm
(platform to countertop)
Opening Depth 1219 mm
Electrical Supply 220-240 V AC
50/60 Hz, 15 amp
dedicated circuit
Shipping Weight 86–100 kg
MODEL OPTIONS
914 mm Sealed Burner
Rangetops
Four Surface Burners
Charbroiler ICBSRT364C
Griddle ICBSRT364G
Natural gas models listed;
for LP gas add (-LP) to the
model number.
IMPORTANT NOTE: A minimum
254 mm riser is required for
charbroiler (C) or griddle (G)
models installed against a
combustible surface.
WOLF SEALED BURNER RANGETOPS

Related product manuals