EasyManua.ls Logo

Wolf Sub-Zero ICBIG15/S - Page 52

Wolf Sub-Zero ICBIG15/S
72 pages
Print Icon
To Next Page IconTo Next Page
To Next Page IconTo Next Page
To Previous Page IconTo Previous Page
To Previous Page IconTo Previous Page
Loading...
52
1118 mm min
COUNTERTOP
TO COMBUSTIBLE
MATERIALS
762 mm TO 914 mm
COUNTERTOP
TO BOTTOM OF
VENTILATION HOOD
VENTILATION HOOD
1530 mm
FINISHED ROUGH OPENING WIDTH
ISLAND INSTALLATIONS: 305 mm MINIMUM CLEARANCE FROM BACK
OF RANGE TO COMBUSTIBLE REAR WALL ABOVE COUNTERTOP –
0 mm TO NON-COMBUSTIBLE MATERIALS
G
127 mm
51
mm
305
mm
E
305
mm
254
mm
140 mm
203
mm
LOCATION OF GAS SUPPLY EXTENDS
76 mm ON FLOOR FROM BACK WALL
76
mm
914 mm
457 mm min
TO COUNTERTOP
940 mm
TO
COOKING
SURFACE
330 mm
max
152 mm min
TO
COMBUSTIBLE
MATERIALS
(BOTH SIDES)
1524 mm
OVERALL WIDTH
914 mm
940 mm
OVERALL
HEIGHT TO
COOKING
SURFACE
64 mm
622 mm
641 mm
LEGS AND CASTERS ALLOW
25 mm HEIGHT ADJUSTMENT
1102 mm
1187
mm
WITH
254 mm
RISER
1441
mm
WITH
508 mm
RISER
692 mm
235
mm
721 mm
OVERALL DEPTH
1060
mm
WITH
127 mm
RISER
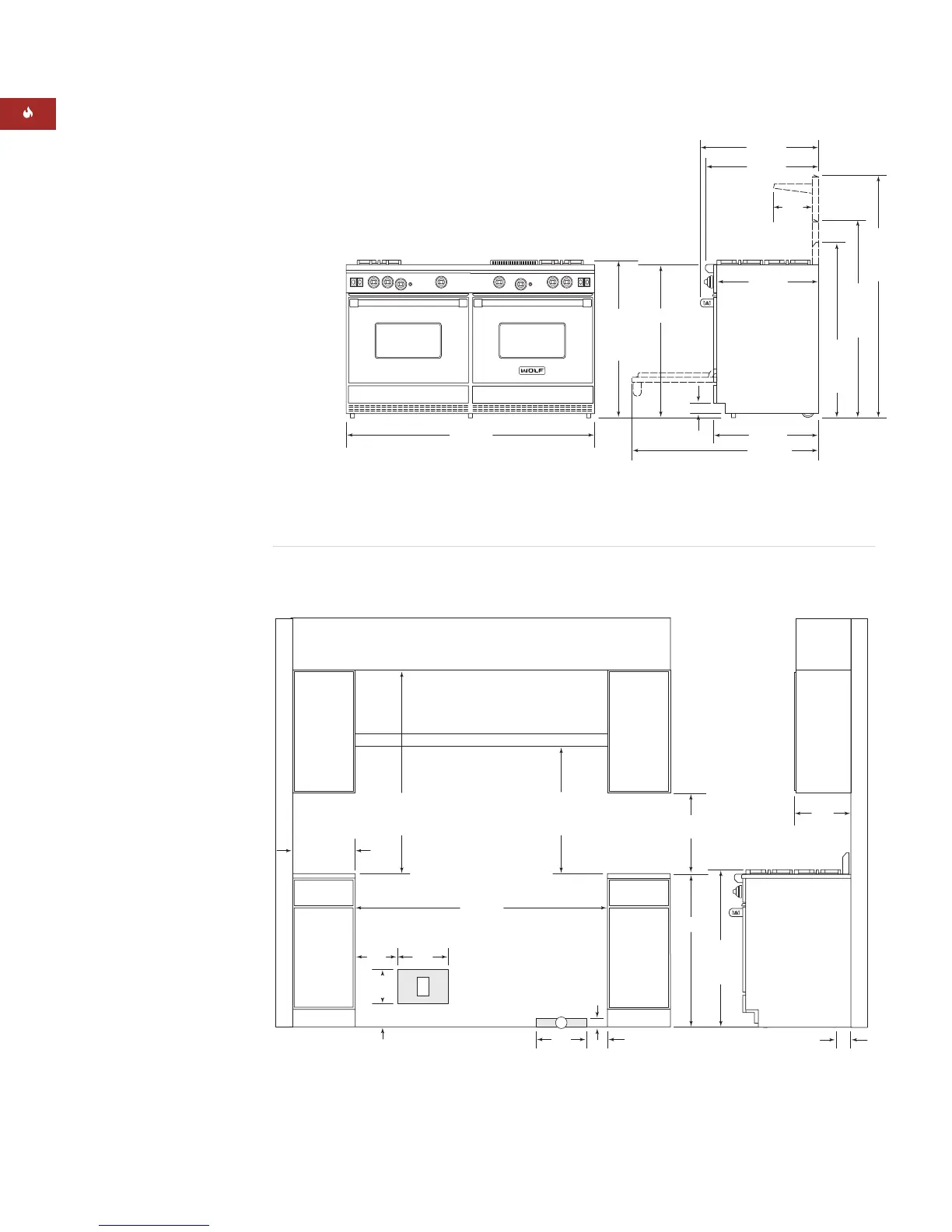
INSTALLATION SPECIFICATIONS
1524 mm Gas Range
OVERALL DIMENSIONS
1524 mm Gas Range
SPECIFICATIONS
1524 mm Gas Range
Overall Width 1524 mm
Overall Height
(to cooking surface) 940 mm
Overall Depth 721 mm
Overall Oven Interior
Capacity (per oven) 125 L
Overall Interior Dim 610 mm x 473 mm
(W x H x D) x 432 mm each
Usable Interior Dim 610 mm x 419 mm
(W x H x D) x 432 mm each
Opening Width 1530 mm
Electrical Supply 220-240 V AC, 50/60 Hz
15 amp dedicated
circuit
Power Cord 1.8 m 3-prong
Shipping Weight 397431 kg
MODEL OPTIONS
1524 mm Gas Range
Four Surface Burners
Charbroiler and
Griddle IR606CG
Natural gas models listed;
for LP gas add (-LP) to the
model number.
IMPORTANT NOTE: A
minimum 254 mm riser is
required when installing a gas
range with a charbroiler or
griddle against a combustible
surface.
Unit dimensions may vary to ± 3 mm.
WOLF GAS RANGES
INSTALLATION
Refer to installation
instructions shipped with
each Wolf product for
detailed specifications.

Related product manuals