EasyManua.ls Logo

Wolf Sub-Zero ICBIG15/S - Page 55

Wolf Sub-Zero ICBIG15/S
72 pages
Print Icon
To Next Page IconTo Next Page
To Next Page IconTo Next Page
To Previous Page IconTo Previous Page
To Previous Page IconTo Previous Page
Loading...
55
WOLF GAS RANGETOPS
SPECIFICATIONS
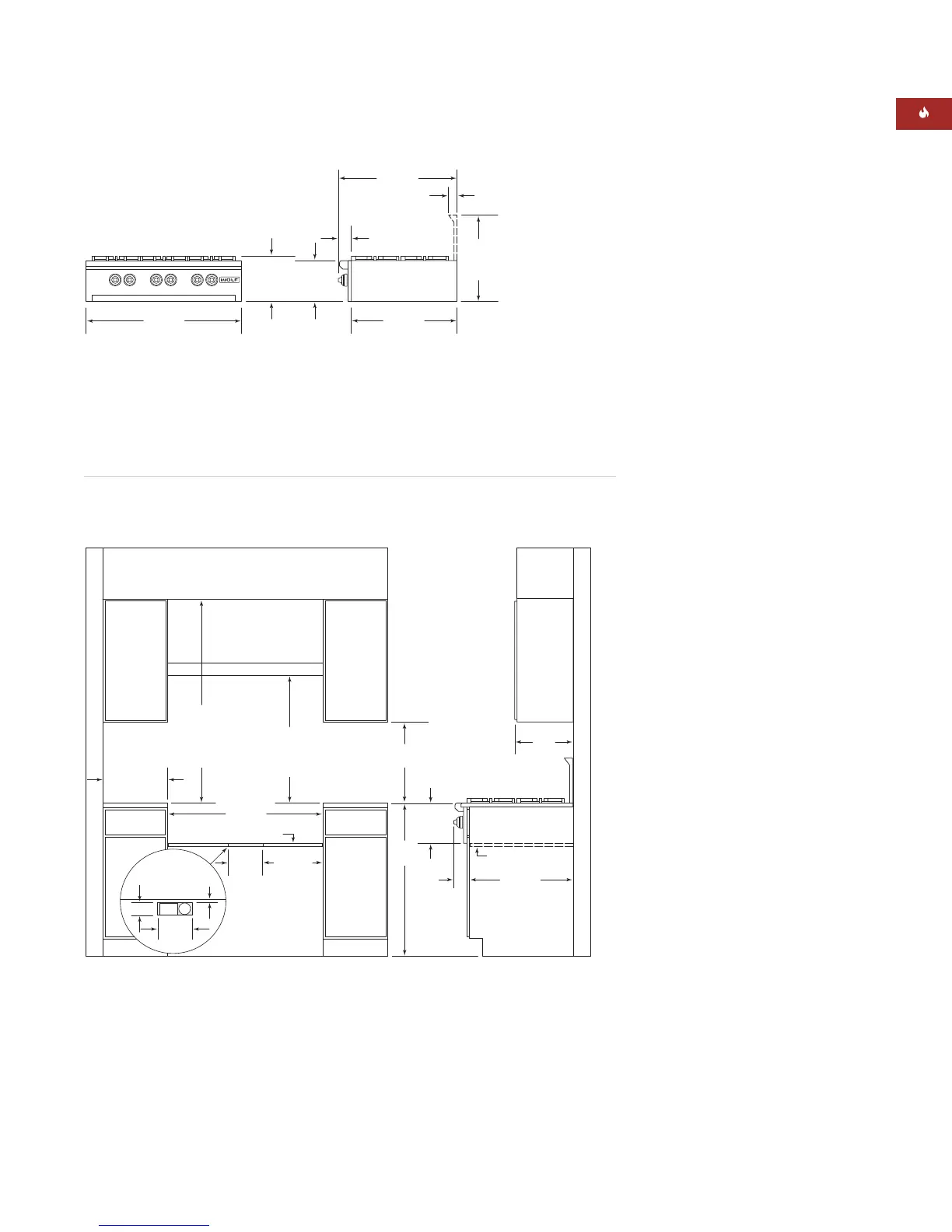
914 mm Gas Rangetop
Overall Width 914 mm
Overall Height
(to cooking surface) 267 mm
Overall Depth 692 mm
Opening Width 921 mm
Opening Height 241 mm
(platform to countertop)
Electrical Supply 220-240 V AC, 50/60 Hz
15 amp dedicated
circuit
Power Cord 1.8 m 3-prong
Shipping Weight 86100 kg
MODEL OPTIONS
914 mm Gas Rangetop
Four Surface Burners
Charbroiler IRT364C
Griddle IRT364G
Natural gas models listed;
for LP gas add (-LP) to the
model number.
IMPORTANT NOTE: In non-
island applications, a riser is
required when installing a
914 mm gas rangetop against
a combustible surface.
INSTALLATION
Refer to installation
instructions shipped with
each Wolf product for
detailed specifications.
356 mm
203
mm
921 mm
FINISHED ROUGH OPENING WIDTH
19 mm PLATFORM
TOP VIEW
OF PLATFORM
E
G
203
mm
76 mm
BACK WALL
13 mm
70
mm
ISLAND INSTALLATIONS: 305 mm MINIMUM
CLEARANCE FROM BACK OF RANGETOP TO
COMBUSTIBLE REAR WALL ABOVE COUNTERTOP
0 mm TO NON-COMBUSTIBLE MATERIALS
19 mm PLATFORM
241 mm
OPENING
HEIGHT
610 mm
330 mm
max
914
mm
457 mm min
TO COUNTERTOP
LOCATION OF
GAS AND ELECTRICAL
SUPPLY CUT-OUT
WITHIN SHADED AREA
THROUGH BOTTOM OF
PLATFORM
762 mm min
TO 914 mm max
COUNTERTOP
TO BOTTOM OF
VENTILATION HOOD
152 mm min
TO
COMBUSTIBLE
MATERIALS
(BOTH SIDES)
762 mm min
COUNTERTOP
TO COMBUSTIBLE
MATERIALS
914 mm min
FOR CHARBROILER
VENTILATION HOOD
914 mm
OVERALL WIDTH
508 mm
WITH
267 mm
RISER
610 mm
692 mm
OVERALL DEPTH
TO KNOBS
70 mm
267 mm
OVERALL
HEIGHT
241 mm
COOKING
SURFACE
51 mm
INSTALLATION SPECIFICATIONS
914 mm Gas Rangetop
OVERALL DIMENSIONS
914 mm Gas Rangetop
Unit dimensions may vary to ± 3 mm.

Related product manuals