EasyManua.ls Logo

Wolf Sub-Zero ICBIG15/S - Page 56

Wolf Sub-Zero ICBIG15/S
72 pages
Print Icon
To Next Page IconTo Next Page
To Next Page IconTo Next Page
To Previous Page IconTo Previous Page
To Previous Page IconTo Previous Page
Loading...
56
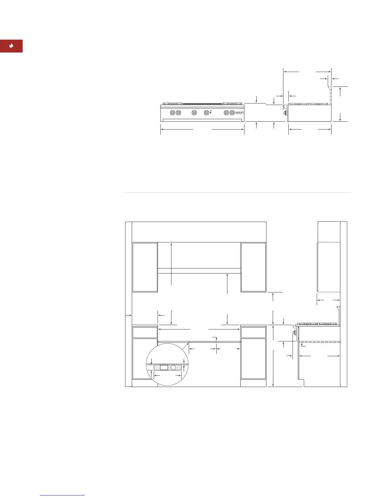
VENTILATION HOOD
356 mm
406 mm
LOCATION OF GAS AND
ELECTRICAL SUPPLY CUT-OUT
WITHIN SHADED AREA
THROUGH BOTTOM OF
PLATFORM
TOP VIEW
OF PLATFORM
E
G
406 mm
76 mm
BACK WALL
13 mm
1226 mm
FINISHED ROUGH OPENING WIDTH
19 mm PLATFORM
152 mm min
TO
COMBUSTIBLE
MATERIALS
(BOTH SIDES)
762 mm min
TO 914 mm max
COUNTERTOP
TO BOTTOM OF
VENTILATION HOOD
762 mm min
COUNTERTOP
TO COMBUSTIBLE
MATERIALS
914 mm min
FOR CHARBROILER
70
mm
ISLAND INSTALLATIONS: 305 mm MINIMUM
CLEARANCE FROM BACK OF RANGETOP TO
COMBUSTIBLE REAR WALL ABOVE COUNTERTOP
0 mm TO NON-COMBUSTIBLE MATERIALS
19 mm PLATFORM
241 mm
OPENING
HEIGHT
610 mm
330 mm
max
914
mm
457 mm min
TO COUNTERTOP
1219 mm
OVERALL WIDTH
508 mm
WITH
267 mm
RISER
610 mm
692 mm
OVERALL DEPTH
TO KNOBS
70 mm
267 mm
OVERALL
HEIGHT
241 mm
51 mm
COOKING
SURFACE
INSTALLATION SPECIFICATIONS
1219 mm Gas Rangetop
OVERALL DIMENSIONS
1219 mm Gas Rangetop
SPECIFICATIONS
1219 mm Gas Rangetop
Overall Width 1219 mm
Overall Height
(to cooking surface) 267 mm
Overall Depth 692 mm
Opening Width 1226 mm
Opening Height 241 mm
(platform to countertop)
Electrical Supply 220-240 V AC, 50/60 Hz
15 amp dedicated
circuit
Power Cord 1.8 m 3-prong
Shipping Weight 100127 kg
MODEL OPTIONS
1219 mm Gas Rangetop
Six Surface Burners
Charbroiler IRT486C
Griddle IRT486G
Four Surface Burners
Charbroiler and
Griddle IRT484CG
French Top IRT484F
Natural gas models listed;
for LP gas add (-LP) to the
model number.
IMPORTANT NOTE: In non-
island applications, a riser is
required when installing a
1219 mm gas rangetop
against a combustible
surface.
Unit dimensions may vary to ± 3 mm.
WOLF GAS RANGETOPS

Related product manuals