EasyManua.ls Logo

Wolf Sub-Zero ICBIG15/S - Page 6

Wolf Sub-Zero ICBIG15/S
72 pages
Print Icon
To Next Page IconTo Next Page
To Next Page IconTo Next Page
To Previous Page IconTo Previous Page
To Previous Page IconTo Previous Page
Loading...
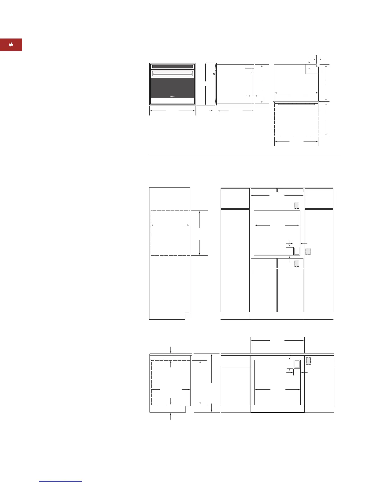
SPECIFICATIONS
762 mm Built-In Single Oven
Overall Dimensions 759 mm x 699 mm
(W x H x D) x 610 mm
Door Clearance 527 mm
Overall Oven
Interior Capacity 127 L
Overall Interior Dim 635 mm x 419 mm
(W x H x D) x 483 mm
Usable Interior Dim 546 mm x 419 mm
(W x H x D) x 416 mm
Cabinet Width 838 mm rec
762 mm min
Cabinet Depth 610 mm min
Min Base Support 113 kg
Opening Width 724 mm
Opening Height 691 mm
Trim Overlaps 5 mm top
3 mm bottom
19 mm each side
Electrical Supply 220-240 V AC, 50/60 Hz
30 amp dedicated circuit
Conduit 1.2 m flexible 4-wire
Electrical Rating 5.1 kW at 240 V
Total Amps 21
Shipping Weight 124 kg
MODEL OPTIONS
762 mm Built-In Single Oven
Unframed / Classic ISO30U/S
INSTALLATION OPTIONS
The Wolf 762 mm single oven may be
installed below a Wolf 762 mm electric or
gas cooktop. Unless you are using cabinets
deeper than 610 mm, it is recommended that
the electrical supply be placed in the base
cabinet to the right of the oven within reach
of the conduit. The Wolf 762 mm single oven
may also be installed below a Wolf 914 mm
electric or gas cooktop.
The Wolf 762 mm single oven may be
installed in combination with a Wolf warming
drawer.
A Wolf 762 mm single oven may be installed
next to another 762 mm single oven. You
must allow for a 64 mm space between the
oven rough openings. Also, a separate inner
wall is required for each oven between
openings.
Refer to installation instructions shipped with
each Wolf product for detailed specifications.
6
BUILT-IN OVENS
691 mm
OPENING
HEIGHT
724 mm
OPENING WIDTH
127
mm
102
mm
610 mm min
OPENING DEPTH
E E
E
E
838 mm
RECOMMENDED CABINET WIDTH
762 mm min
ELECTRICAL LOCATION
WITHIN OPENING
APPLIES ONLY TO
CABINETS DEEPER
THAN 610 mm
E
E
127
mm
121 mm min
838 mm
RECOMMENDED CABINET WIDTH
762 mm min
95 mm min
914 mm
STANDARD
FLOOR TO
COUNTER
HEIGHT
691 mm
OPENING
HEIGHT
724 mm
OPENING WIDTH
102
mm
610 mm min
OPENING DEPTH
ELECTRICAL
LOCATION WITHIN
OPENING APPLIES
ONLY TO CABINETS
DEEPER THAN 610 mm
610 mm
BEHIND FRAME
699 mm
716 mm
711 mm
759 mm
610 mm
CONDUIT
CHANNEL
OPEN OVEN DOOR
TOP VIEW
76 mm
527 mm
32 mm
48 mm
48 mm
RIGHT SIDE VIEW
662 mm
INSIDE
SIDE TRIM
OVERALL DIMENSIONS
762 mm Built-In Single Oven
INSTALLATION SPECIFICATIONS
762 mm Built-In Single Oven
Wall Application
Undercounter Installation
Unit dimensions may vary to ± 3 mm.
IMPORTANT NOTE: Unless you are using cabinets
deeper than 610 mm, it is recommended that the
electrical supply be placed in an adjacent cabinet within
reach of the conduit. Choose the location shown in the
illustrations that best suits your installation.

Related product manuals