EasyManua.ls Logo

Wolf Sub-Zero ICBIG15/S - Page 7

Wolf Sub-Zero ICBIG15/S
72 pages
Print Icon
To Next Page IconTo Next Page
To Next Page IconTo Next Page
To Previous Page IconTo Previous Page
To Previous Page IconTo Previous Page
Loading...
7
BUILT-IN OVENS
611 mm
OPENING
HEIGHT
876 mm
OPENING WIDTH
127
mm
E
991 mm
RECOMMENDED CABINET WIDTH
914 mm min
610 mm min
OPENING DEPTH
E
E
E
102
mm
ELECTRICAL LOCATION
WITHIN OPENING APPLIES
ONLY TO CABINETS
DEEPER THAN 610 mm
95 mm min
E
127
mm
991 mm
RECOMMENDED CABINET WIDTH
914 mm min
197 mm rec
121 mm min
611 mm
OPENING
HEIGHT
876 mm
OPENING WIDTH
610 mm min
OPENING DEPTH
102
mm
914 mm
STANDARD
FLOOR TO
COUNTER
HEIGHT
ELECTRICAL LOCATION
WITHIN OPENING APPLIES
ONLY TO CABINETS
DEEPER THAN 610 mm
E
610 mm
BEHIND FRAME
619
mm
905 mm
610 mm
584 mm
INSIDE
SIDE TRIM
CONDUIT
CHANNEL
OPEN OVEN DOOR
TOP VIEW
867 mm
870 mm
76
mm
451 mm
32 mm
48 mm
48 mm
RIGHT SIDE VIEW
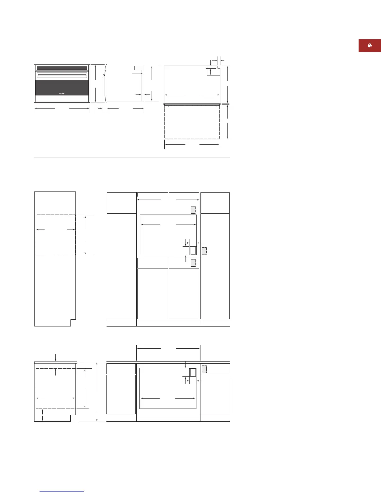
OVERALL DIMENSIONS
914 mm Built-In Single Oven
INSTALLATION SPECIFICATIONS
914 mm Built-In Single Oven
Wall Application
SPECIFICATIONS
914 mm Built-In Single Oven
Overall Dimensions 905 mm x 619 mm
(W x H x D) x 610 mm
Door Clearance 451 mm
Overall Oven
Interior Capacity 125 L
Overall Interior Dim 762 mm x 337 mm
(W x H x D) x 483 mm
Usable Interior Dim 673 mm x 337 mm
(W x H x D) x 416 mm
Cabinet Width 991 mm rec
914 mm min
Cabinet Depth 610 mm min
Min Base Support 113 kg
Opening Width 876 mm
Opening Height 611 mm
Trim Overlaps 5 mm top
3 mm bottom
19 mm each side
Electrical Supply 220-240 V AC, 50/60 Hz
30 amp dedicated circuit
Conduit .9 m flexible 4-wire
Electrical Rating 5.1 kW at 240 V
Total Amps 21
Shipping Weight 131 kg
Undercounter Installation
INSTALLATION OPTIONS
The Wolf 914 mm single oven may be installed
below a Wolf 914 mm electric or gas cooktop.
Unless you are using cabinets deeper than 610
mm, it is recommended that the electrical
supply be placed in the base cabinet to the
right of the oven within reach of the conduit.
The 914 mm single oven may also be installed
below a Wolf 762 mm framed electric cooktop,
but not below a 762 mm unframed electric
cooktop or 762 mm gas cooktop. When
installed below a cooktop, it is recommended
that the opening for the oven be 197 mm from
the floor to ease the use of the oven door.
The Wolf 914 mm single oven may be installed
above or below a Wolf warming drawer with
integrated drawer front.
A Wolf 914 mm single oven may be installed
directly above another 914 mm oven. You must
allow enough space between the oven rough
openings to accommodate a base support for
the top oven. A 914 mm single oven may be
installed next to another 914 mm oven. You
must allow for a 64 mm space between the
oven rough openings. Also, a separate inner
wall is required for each oven between
openings. Each base cabinet support must be
able to support 113 kg.
Unit dimensions may vary to ± 3 mm.
IMPORTANT NOTE: Unless you are using cabinets
deeper than 610 mm, it is recommended that the
electrical supply be placed in an adjacent cabinet within
reach of the conduit. Choose the location shown in the
illustrations that best suits your installation.
MODEL OPTIONS
914 mm Built-In Single Oven
Unframed / Classic ISO36U/S

Related product manuals