EasyManua.ls Logo

XtraVac CM800 - Part list

XtraVac CM800
41 pages
Print Icon
To Next Page IconTo Next Page
To Next Page IconTo Next Page
To Previous Page IconTo Previous Page
To Previous Page IconTo Previous Page
Loading...
XtraVac CM800 Chamber Machine Operation and Parts Manual
XtraVac Packaging Machines 419 E. 11th Ave. North Kansas City, MO 64116 USA
CM800 Chamber Machine +1 (800) 729-2999 Sales@XtraVac.com
36
A
B
C
D
E
A
B
C
D
E
PAGE
07
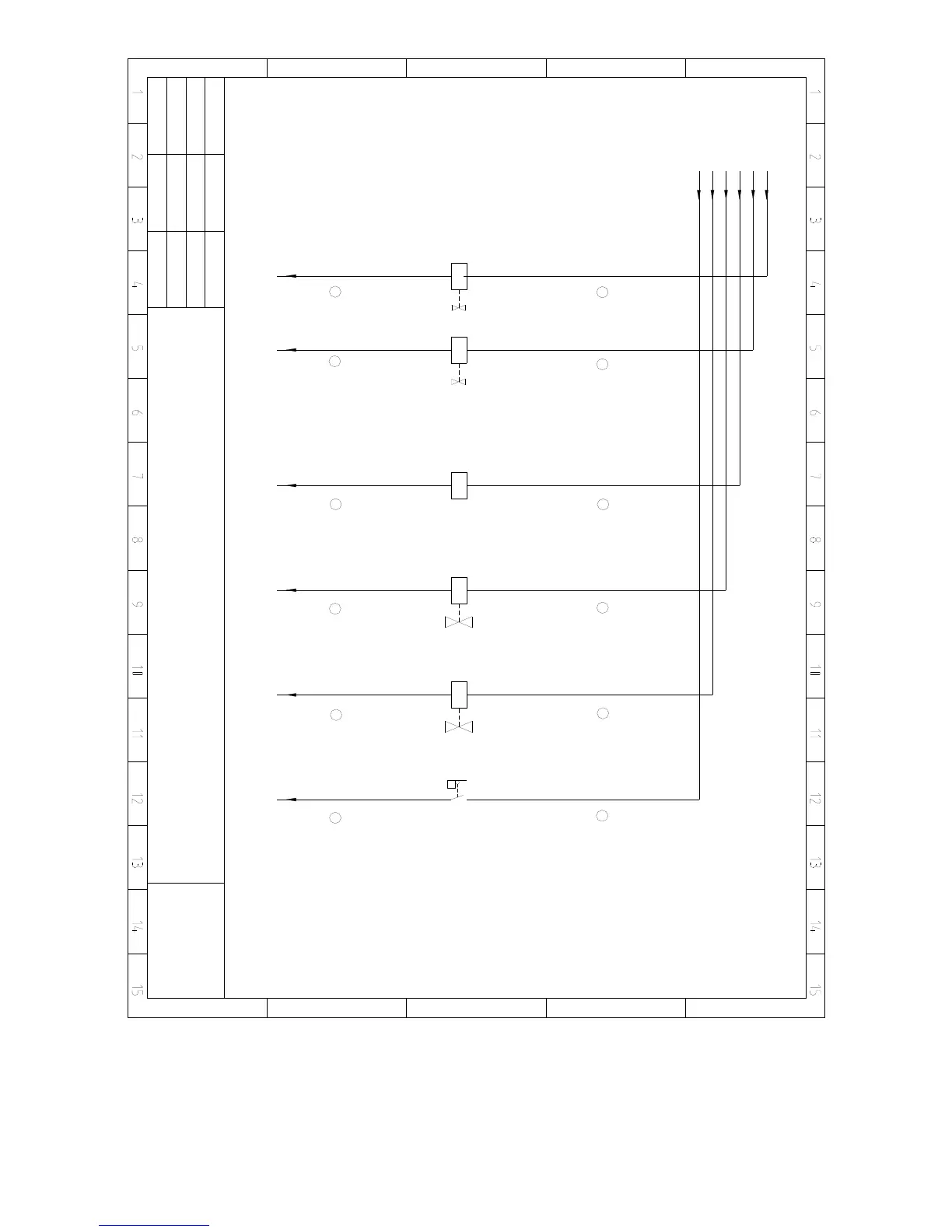
Control circuit diagram
DATE NAME
PROCESSED
CHECKED
STANDARD
Y1 K1 Y3 Y4
1345
6
7
9
10
11
12
9101112
7
LS1
COM
NO
Y2
8
2
8
6.13D 1
6.13D 2
6.13D 3
6.12D 4
6.12D 5
6.12D 6
6.11D 6.11D 6.11D 6.10D 6.10D 6.10D

Related product manuals