EasyManua.ls Logo

Yale ESC030AC - Page 50

Yale ESC030AC
134 pages
Print Icon
To Next Page IconTo Next Page
To Next Page IconTo Next Page
To Previous Page IconTo Previous Page
To Previous Page IconTo Previous Page
Loading...
STATUS
CODE
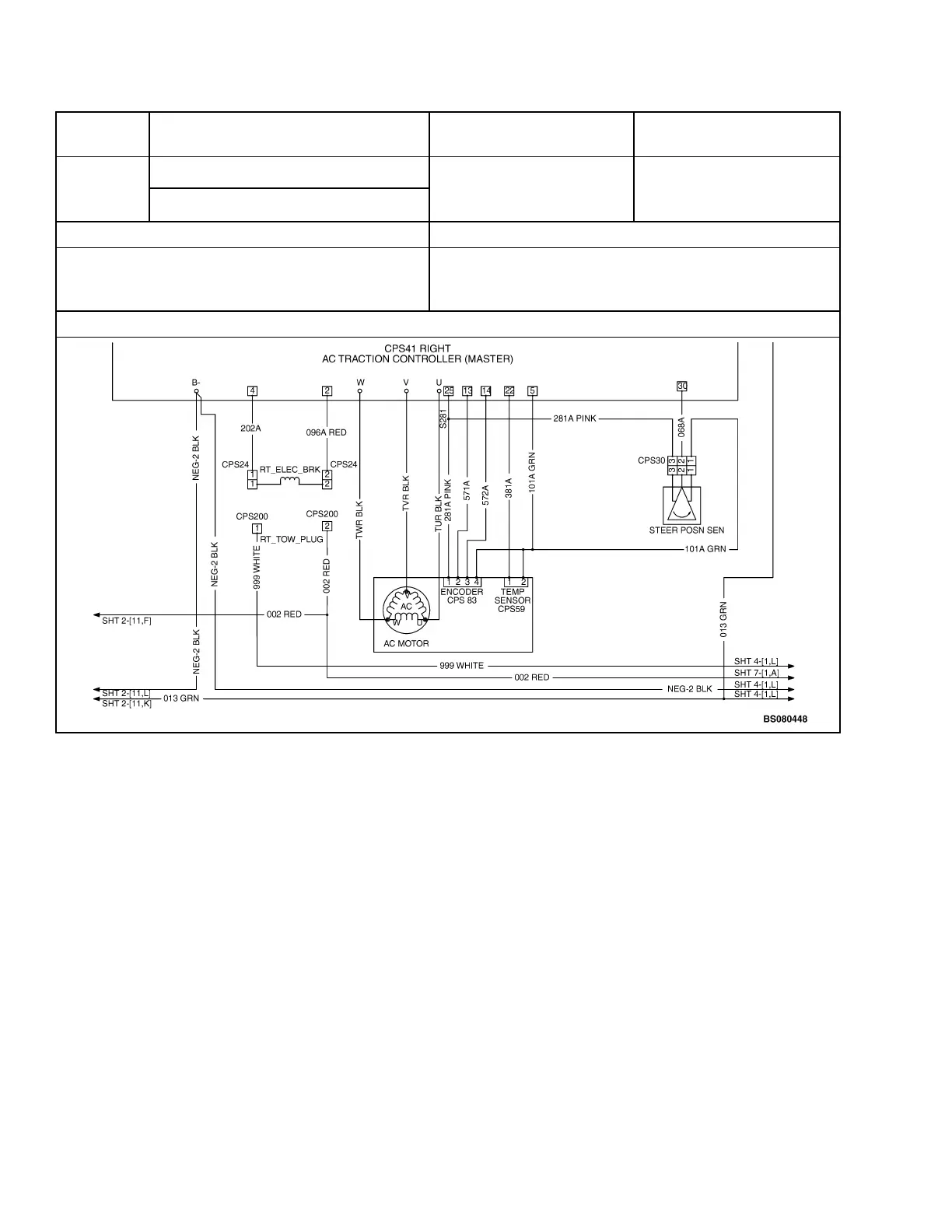
DISPLAY MESSAGE RECOVERY METHOD CIRCUIT
12576-3 4 12576 Re-key only LH or RH Traction
Node 3 ( 4 )
DESCRIPTION BEHAVIOR
Traction U, V, W bridge voltage out of range (low
or high) with MOSFETs off -
(LH Node 4, RH Node 3)
Traction Disabled.
Probable Causes and Test Procedures
Troubleshooting 2200 YRM 1415
46

Related product manuals