EasyManua.ls Logo

Yale ESC030AC - Page 51

Yale ESC030AC
134 pages
Print Icon
To Next Page IconTo Next Page
To Next Page IconTo Next Page
To Previous Page IconTo Previous Page
To Previous Page IconTo Previous Page
Loading...
STATUS
CODE
DISPLAY MESSAGE RECOVERY METHOD CIRCUIT
12576-3 4
(cont)
12576 Re-key only LH or RH Traction
Node 3 ( 4 )
DESCRIPTION BEHAVIOR
Traction U, V, W bridge voltage out of range (low
or high) with MOSFETs off - (LH Node 4,
RH Node 3)
Traction Disabled.
Probable Causes and Test Procedures
4. Verify proper KEY-IN voltage to controller:
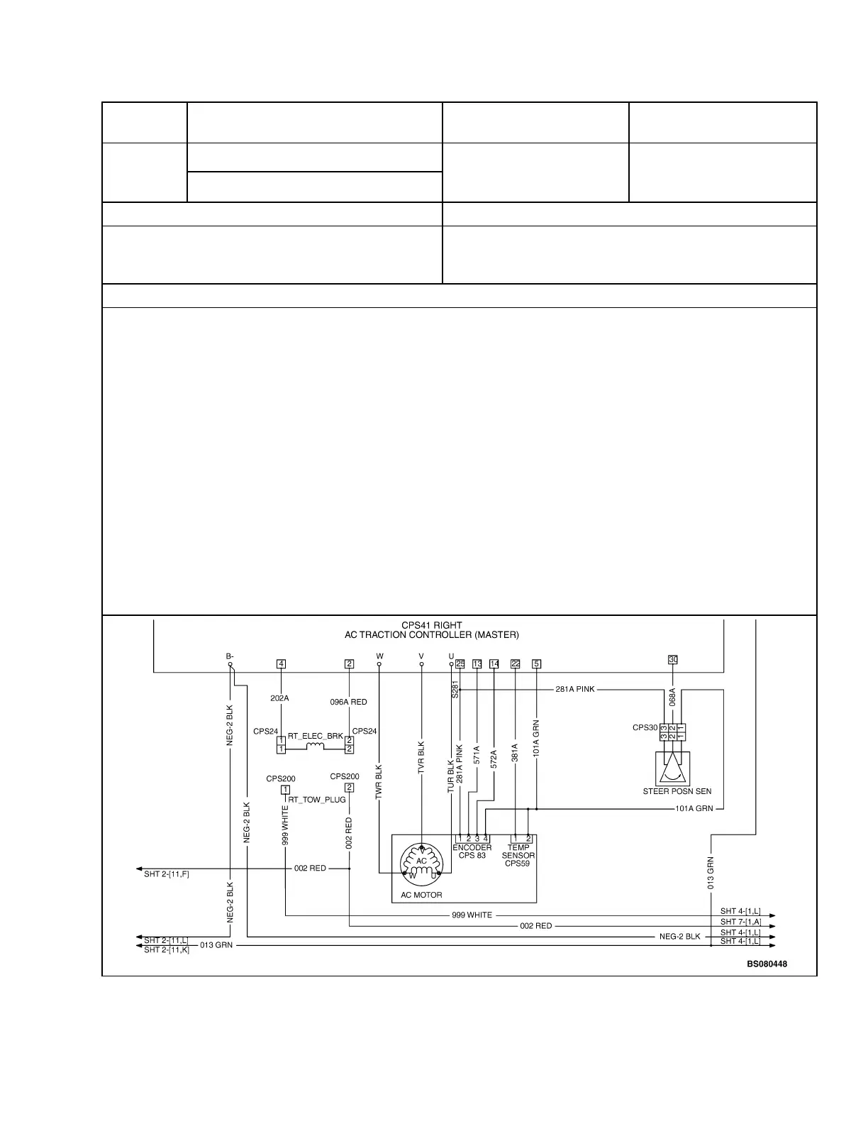
a. Ensure B+ Voltage exists between Pin 10 and the B− terminal of the controller with KEY-SW ON:
YES- Proceed to step 5.
NO- Proceed to step 4b.
b. Inspect NEG-2 BLK cable for continuity between B− Battery connector and B− terminal of the con-
troller.
YES- Proceed to step 4c.
NO- Repair NEG-2 wire / crimp terminal / check bolt torque.
c. Verify power wire continuity from Pin 10 to KEY-SW IGN terminal.
d. Verify KEY-SW continuity between BAT and IGN terminals when switched to "ON."
YES- Check for blown FU1 fuse.
NO- Replace faulty KEY-SW Inspect GND (NEG-2 BLK) wire, and POS (RED 010) for
proper connections.
5. Controller at fault, contact Resident Service Engineering through the Contact Management System.
2200 YRM 1415 Troubleshooting
47

Related product manuals