EasyManua.ls Logo

York D*SC480 - Control Wiring Conns. W;O Status Panel

York D*SC480
25 pages
To Next Page IconTo Next Page
To Next Page IconTo Next Page
To Previous Page IconTo Previous Page
To Previous Page IconTo Previous Page
Loading...
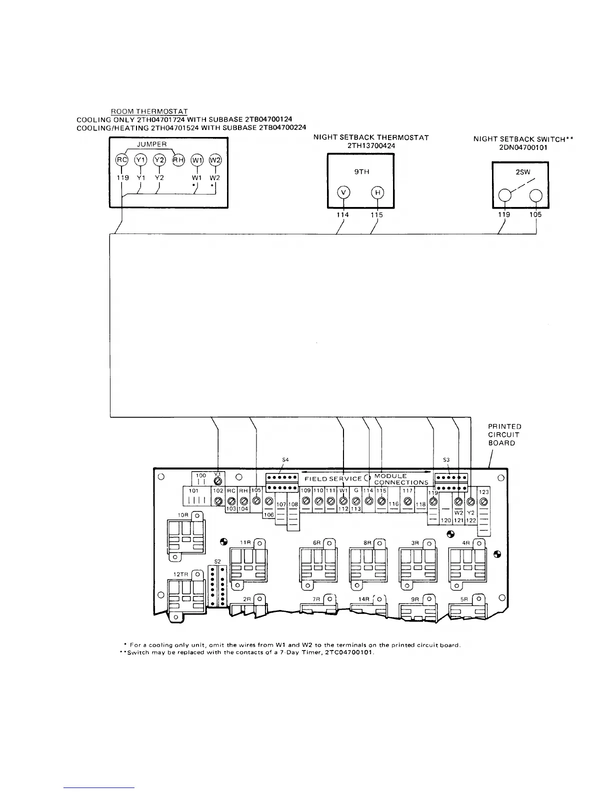
FIG. 9 - CONTROL WIRING CONNECTIONS WITHOUT STATUS
PANEL
530.25-N3Y
Unitary Products Group 7

Table of Contents

Related product manuals